linkedin pixel
Fullskärm
Fullskärm
externalLinkIconAlla bilder
Villa6 rok180 + 55775 m² tomt

Fakta om bostaden

  • Pris11 500 000 kr
  • BoendetypVilla
  • Antal rum6 rok
  • Boyta180
  • UpplåtelseformFriköpt
  • Biarea55
  • Tomtarea775 m²
  • Kvadratmeterpris (kr/m²) 63 889 kr/m²
  • Byggnadsår2009
  • Dagar på Boneojanuari 2026

Beskrivning

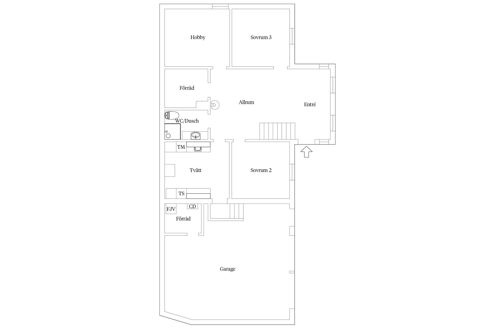
På en lättskött och harmonisk trädgårdstomt reser sig denna arkitektritade villa – ett hem som kombinerar modern elegans med genomtänkt funktionalitet. Huset, uppfört 2009, rymmer 180 välplanerade kvadratmeter där exklusiva materialval, omsorgsfulla detaljer och en smart planlösning samspelar för att skapa ett boende utöver det vanliga.

Redan vid första steget in möts du av ett ljusfyllt hem där de generösa fönsterpartierna och de arkitektoniskt spännande vinklarna skapar både rymd och karaktär. Här får ljuset flöda fritt och varje rum känns inbjudande och levande.

Det stilrena, specialritade köket är öppet och socialt, och flyter naturligt samman med vardagsrummets generösa sällskapsytor – en perfekt plats för långa middagar, avkopplade helgfrukostar och minnesvärda stunder med familj och vänner. Hemmet erbjuder fyra sovrum, där tre ligger samlade på entréplan i en egen avdelning tillsammans med ett mysigt allrum – en idealisk lösning för barnfamiljen eller för dig som vill ha en tydlig avgränsning mellan sociala ytor och privatliv.

Här finns även två moderna och smakfullt inredda badrum, en gästtoalett, en välutrustad tvättstuga samt gott om smart förvaring – allt utformat för att ge en smidig och bekväm vardag.

Till fastigheten hör dessutom ett rymligt dubbelgarage med generös takhöjd. Uteplatsen i soligt sydvästläge, delvis under tak, bjuder in till långa sommarkvällar, grillmiddagar och avkoppling i eftermiddagssolen.

Nysäter är ett idylliskt område som omges av naturens alla möjligheter – sjöar, badplatser och skogsstigar. Endast ett stenkast bort ligger Örtjärn, med badbrygga och sandstrand sommartid, och vackra isar perfekta för skridskor och skidåkning under vintern. Här finns också motionsspår vid Finnsjön, närhet till både förskola och skola samt goda kommunikationer med X4-linjen som trafikerar området frekvent.
Mölnlycke-Nysäter, Härryda

Nysätervägen 2

Villa6 rok180 + 55775 m² tomt

Mäklare

Mäklare

AwardBadge
Årets Mäklarkedja 2024, 2025
Vinnare av Boneo Awards
banner

Tjänster

Bolån

Räkna på bolån för Nysätervägen 2
nordeaAlltid personlig ränta på ditt bolånRäkna här
Jämför bolån från olika banker!
lanekollPersonlig hjälp hela vägen hem!Räkna direkt!
Bostaden du tittar på matchar med 75 personer i BoneoMatch™

Hur många vill köpa din bostad?

Vi matchar din bostad mot över 500 000 köpsugna personer som går på visningar just nu.

Loading...
Mölnlycke-Nysäter, Härryda

Nysätervägen 2

Villa6 rok180 + 55775 m² tomt

Mäklare

Mäklare

AwardBadge
Årets Mäklarkedja 2024, 2025
Vinnare av Boneo Awards