linkedin pixel
Tillbaka till sökresultatet
Fullskärm
Fullskärm
Tillbaka till sökresultatet
externalLinkIconAlla bilder
Villa6 rok196 + 151 030 m² tomt

Fakta om bostaden

  • Pris12 995 000 kr
  • BoendetypVilla
  • Antal rum6 rok
  • Boyta196
  • UpplåtelseformFriköpt
  • Biarea15
  • Tomtarea1 030 m²
  • Kvadratmeterpris (kr/m²) 66 301 kr/m²
  • Byggnadsår2020
  • Dagar på Boneojanuari 2026

Beskrivning

NYBYGGT STENUS MED POOL, SPA OCH TAKTERRASS

I lugnt och uppvuxet villakvarter presenteras detta stilrena, arkitektritade stenhus som uppfördes så sent som 2020. Varmt välkomna till ett hem som är tidlöst och elegant där inget lämnats åt slumpen och där det bara är för nästa ägare att flytta in och njuta.

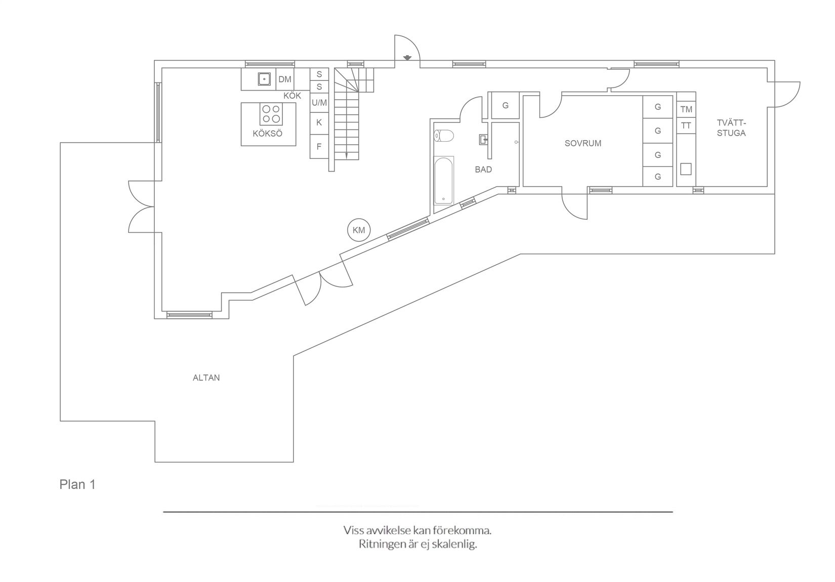
Den välkomnande hallen har öppet upp i nock; här är rymden påtaglig och ljuset fullkomligt flödar in. Vidare in i huset erbjuds ljusa, öppna sällskapsytor där kök, matplats och vardagsrum samspelar i en social helhet. Stora fönsterpartier ger hela huset ett fantastiskt ljusinsläpp och skapar en naturlig kontakt med trädgården och utemiljön. Köket blir nästan som en platsbyggd möbel, är stilrent med köksö som självklar samlingspunkt och vardagsrummet kompletteras av kamin som bidrar till både värme och atmosfär. Givetvis har huset generösa utgångar till trädgården via två par dubbeldörrar i glas och det första man entrar är den stora terrassen av trall i påkostad Cumaru som löper längs huset.

Trädgården är inbäddad och privat, precis som man vill ha det. Den lyxiga poolen är klädd i läcker mosaik och är minst sagt inbjudande under sommarhalvåret. Den nyttjas med fördel även under kallare månader efter en stund i den fristående bastun. Här finns även stora gräsmattor för lek och en friggebod som kan användas efter behov, till förvaring, arbetsrum eller gästrum exempelvis.

Bostaden erbjuder välplanerade sovrum och ett luftigt allrum på ovanplan. Ett av de större sovrummen har utgång till en generös takterrass som blir en privat och avskild plats för avkoppling. De stilrena badrummen är rymliga och inredda i fina materialval.

Ett modernt och exklusivt hem för den som söker något utöver det vanliga.
Varmt välkommen på visning!
Höllviken, Vellinge

Collins väg 23A

Villa6 rok196 + 151 030 m² tomt

Mäklare

Tjänster

Bolån

Räkna på bolån för Collins väg 23A
nordeaAlltid personlig ränta på ditt bolånRäkna här
Jämför bolån från olika banker!
lanekollPersonlig hjälp hela vägen hem!Räkna direkt!
Bostaden du tittar på matchar med 193 personer i BoneoMatch™

Hur många vill köpa din bostad?

Vi matchar din bostad mot över 500 000 köpsugna personer som går på visningar just nu.

Loading...
Höllviken, Vellinge

Collins väg 23A

Villa6 rok196 + 151 030 m² tomt

Mäklare