linkedin pixel
Tillbaka till sökresultatet
Fullskärm
Fullskärm
Tillbaka till sökresultatet
externalLinkIconAlla bilder
Bostadsrättsradhus5 rok144 + 5

Fakta om bostaden

  • Pris5 175 000 kr
  • BoendetypBostadsrättsradhus
  • Antal rum5 rok
  • Boyta144
  • UpplåtelseformBostadsrätt
  • Biarea5
  • Kvadratmeterpris (kr/m²) 35 938 kr/m²
  • Byggnadsår2023
  • Dagar på Boneo52 dagar
  • Våning 0
  • Avgift till föreningen6 283 kr/mån

Beskrivning

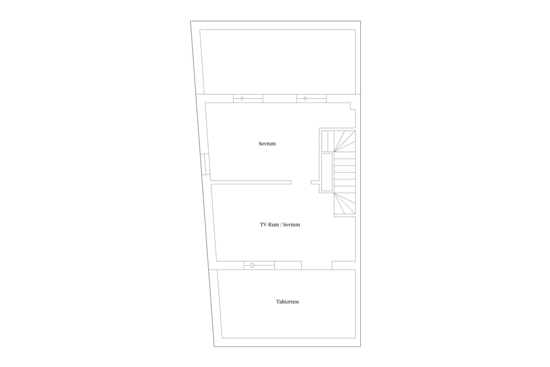
Gavelradhus

Detta boende med hög trivsel på alla plan är perfekt för familjen som önskar ett stadsradhus med en bykänsla. Detta gavelradhus har en unik arkitektur med franska balkonger, takterrass, trädgård och egen parkering. Det är modernt, lättskött och med stort ljusinsläpp, bland annat från ett flertal gavelfönster.

Brf Paradhusen består av två huskroppar med totalt 16 radhus på fördelade på tre plan. Boytan om 144 m² är fördelad på 5-6 rum varav 4-5 sovrum. Bottenvåningen med kök och vardagsrum med en takhöjd på 2,8 m för att skapa luft, rymd och ljus. Andra våningen har sovrum med fransk balkong och en generös takterrass på översta våningen. Mysig stenlagd uteplats och gräsmatta.

Det är en genomtänkt planlösning med målade väggar, parkettgolv och fönsterbänkar i natursten som ger en neutral fond för inredningsdetaljer. Hallen är inbjudande och rymlig med skjutdörrsgarderob. Köket från Vedum har bänkskiva i sten, rymlig matplats och fönster hela vägen ner till golvet som suddar ut gränsen mellan ute och inne. Badrummet är stilfullt inrett med eleganta detaljer, golvvärme, spotlights i taket samt tvätt och torktumlare.

Sovrummen är rymliga har gott om förvaringsmöjligheter och master bedroom har en praktisk klädkammare samt franska balkonger. Badrummet är stilfullt inrett och erbjuder ett avkopplande bad efter en lång arbetsdag.

Översta våningen har ett allrum/tv-rum (som kan göras om till ytterligare sovrum om man önskar) samt ett rymligt sovrum.
Bjärred Centralt, Lomma

Norra Västkustvägen 34H

Bostadsrättsradhus5 rok144 + 5

Mäklare

Mäklare

AwardBadge
Årets Mäklarkedja 2024, 2025
Vinnare av Boneo Awards
banner

Tjänster

Bolån

Räkna på bolån för Norra Västkustvägen 34H
nordeaAlltid personlig ränta på ditt bolånRäkna här
Jämför bolån från olika banker!
lanekollPersonlig hjälp hela vägen hem!Räkna direkt!

Hur många vill köpa din bostad?

Med BoneoMatch™ ser du hur många som letar efter en liknande bostad i ditt område.

Läs mer
Loading...
Bjärred Centralt, Lomma

Norra Västkustvägen 34H

Bostadsrättsradhus5 rok144 + 5

Mäklare

Mäklare

AwardBadge
Årets Mäklarkedja 2024, 2025
Vinnare av Boneo Awards