linkedin pixel
Tillbaka till sökresultatet
Fullskärm
Fullskärm
Tillbaka till sökresultatet
externalLinkIconAlla bilder
Bostadsrättsradhus6 rok154,50

Fakta om bostaden

  • BoendetypBostadsrättsradhus
  • Antal rum6 rok
  • Boyta154,50
  • UpplåtelseformBostadsrätt
  • Byggnadsår2009
  • Dagar på Boneo4 dagar
  • Våning 1 av 3
  • HissNej
  • Avgift till föreningen9 257 kr/mån

Beskrivning

Välkommen till ett trivsamt radhus i hjärtat av omtyckta Stora Essingen, en plats där småstadskänsla möter närheten till innerstan. Här bor du lugnt och tryggt i ett barnvänligt område, med grönska, vatten och promenadstråk runt knuten, samtidigt som du når Kungsholmen och city på bara några minuter.

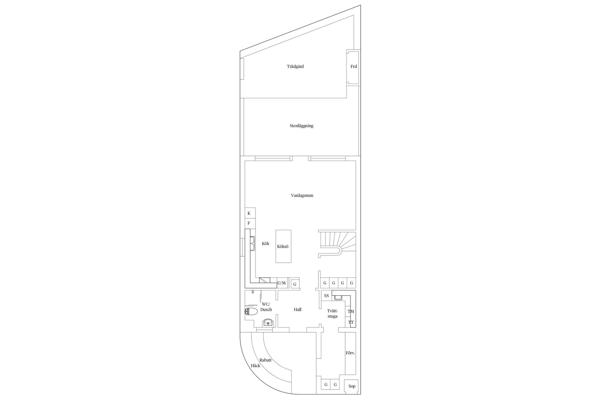
Bostaden som är i tre plan erbjuder en genomtänkt planlösning med generösa sällskapsytor, gott om ljusinsläpp och en naturlig koppling mellan inne och ute. Det här är ett hem som bjuder in till både vardagsliv och sociala tillställningar. Den privata uteplatsen blir en förlängning av bostaden under årets varmare månader, perfekt för middagar, lek eller avkoppling i solen.

Våning två är en privat och rofylld sovrumsdel, perfekt planerad för familjeliv. Här finns ett generöst master bedroom med lugnt läge och plats för både dubbelsäng och förvaring, en naturlig reträtt från vardagens tempo. Därtill finns två ytterligare väl tilltagna sovrum som lämpar sig utmärkt som barnrum, tonårsrum eller gästrum. Det stora badrummet med gott om utrymme har en funktionell layout som gör morgnarna smidiga även för den större familjen.

Uppe på våning tre öppnar en inspirerande ateljévåning upp med härlig rymd och kreativ atmosfär. Här finns ett inbjudande TV-rum som passar perfekt för avkoppling, filmkvällar eller tonårshäng, liksom ett separat arbetsrum som med fördel kan användas som hemmakontor eller gästrum. Ljuset och volymen ger våningen en luftig karaktär och skapar en tydlig känsla av flexibilitet. Detta plan kan också enkelt disponeras om till två sovrum där en mindre sällskapsdel ändå finns kvar. Se alternativ planskiss.

Den stora terrassen i sydväst är en privat utomhusoas med sol från eftermiddag till kväll. Här finns gott om plats för både loungemöbler och middagsbord och den motordrivna markisen ger skön skugga under varma sommardagar.

Tomten som är nyanlagd är något utöver det vanliga och bär tydlig signatur av en professionell trädgårdsdesigner. Varje del är noggrant komponerad med omsorgsfullt utvalda, karaktärsstarka växter som samspelar i färg, form och struktur genom hela året. Planteringar, materialval och nivåer är harmoniskt balanserade för att skapa en privat, lummig och sofistikerad utemiljö. Resultatet är en tidlös trädgård med tydlig identitet, lika vacker att betrakta som att vistas i och med en känsla av exklusivitet.

Renoveringar som familjen låtit utföra under 2025: Nya köksluckor från Härjedalskök, ny köksbänkskiva i komposit (Silestone Snowy Ibiza), ny köksö, ny ugn, micro, häll och diskmaskin. Slipning av golv och trösklar på alla tre plan. Alla innerdörrar är bytta och är i massivt trä. Tak, väggar och lister målade på alla tre plan. Nytt förråd under trappan. Ny torktumlare. Anläggning av ny trädgård med planteringar av träd, buskar och perenner på fram- och baksidan.

Stora Essingen är ett av Stockholms mest eftertraktade områden, uppskattat för sina badplatser, caféer, skolor och smidiga kommunikationer med ettans buss och tvärbanan. Här finns allt som gör livet enkelt och trivsamt, oavsett om du är barnfamilj, par eller vill ha ett bekymmersfritt boende med huskänsla nära stan. Bra närservice med Coop, fem restauranger och två caféer, Orkanen gym, kemtvätt/skräddare, tobaksaffär med postombud. Det finns flera förskolor, grundskola, franska skolan och gymnasieskolor på ön. Stockholms bästa stadsdel enligt Fokus Bäst att leva-ranking 2025!

Brf med stabil ekonomi med lån om 6 883 kr/kvm och en hög soliditet om 86%. Till bostaden hör ett förråd om ca 2,5 kvm i föreningens byggnad.
Stora Essingen, Stockholm

Stenkullavägen 50E

Bostadsrättsradhus6 rok154,50

Mäklare

Mäklare

AwardBadge
Årets Mäklarkedja 2024, 2025
Vinnare av Boneo Awards
banner

Tjänster

Bolån

Räkna på bolån för Stenkullavägen 50E
nordeaAlltid personlig ränta på ditt bolånRäkna här
Jämför bolån från olika banker!
lanekollPersonlig hjälp hela vägen hem!Räkna direkt!

Hur många vill köpa din bostad?

Med BoneoMatch™ ser du hur många som letar efter en liknande bostad i ditt område.

Läs mer
Loading...
Stora Essingen, Stockholm

Stenkullavägen 50E

Bostadsrättsradhus6 rok154,50

Mäklare

Mäklare

AwardBadge
Årets Mäklarkedja 2024, 2025
Vinnare av Boneo Awards