linkedin pixel
Tillbaka till sökresultatet
Fullskärm
Fullskärm
Tillbaka till sökresultatet
Villa8 rok234 + 481 880 m² tomt

Fakta om bostaden

  • Pris19 000 000 kr
  • BoendetypVilla
  • Antal rum8 rok
  • Boyta234
  • UpplåtelseformFriköpt
  • Biarea48
  • Tomtarea1 880 m²
  • Kvadratmeterpris (kr/m²) 81 197 kr/m²
  • Byggnadsår2008
  • Dagar på Boneo1 dag

Beskrivning

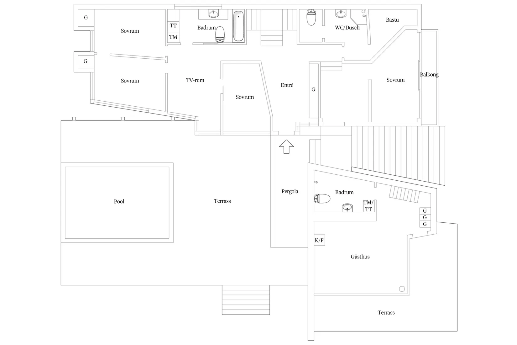
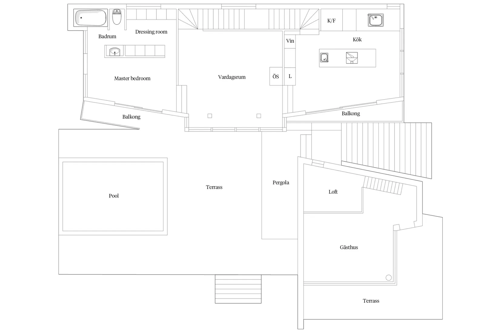
Välkomna till ett spektakulärt hem om totalt 322 kvm i hjärtat av eftertraktade Boo Gård, ett unikt boende signerat arkitekten Olle Rex, där varje detalj är genomtänkt och där naturen kliver rakt in som närmaste granne. Här bor ni högt, privat och naturnära med glimrande sjöutsikt som ständigt påminner om platsens harmoniska lugn.
Redan vid första steget in möts ni av den generösa takhöjden, de vitpigmenterade plankgolven och de enorma fönsterpartierna som låter ljuset fullkomligt flöda. Huset har en fantastisk planlösning med fem sovrum – där masterbedroom bjuder på stora fönsterpartier med vid utsikt, klädkammare och stilrent badrum med nedsänkt badkar ensuite.
Det magiska köket är en självklar samlingspunkt. Här samsas exklusiva materialval med en vacker eldstad som elegant öppnar sig både mot köket och sällskapsrummet – perfekt för såväl vardagsmys som större middagar. Tre smakfulla badrum, varav ett med bastu, skapar lyx och komfort för hela familjen.
Hemmet värms hållbart och effektivt via solceller med batteri samt bergvärme, en modern lösning som ger både miljömässiga och ekonomiska fördelar.

Utemiljön är något utöver det vanliga. Den lummiga trädgården erbjuder plana gräsytor för lek och spel, vacker grönska, grusade gångar, stämningsfulla planteringar och flera fruktträd. Här finns gott om naturliga rum för både avkoppling och familjeliv.
Det generösa och insynsskyddade poolområdet är underbart med en 4 x 8 meters pool med tillhörande pooltak och uppvärmning via luftvärmepump. Härfinns stora ytor för solstolar, loungemöbler och plats för middagar i skuggan av pergolan. Intill väntar ett charmigt bastuhus med egen altan – perfekt efter kvällsdoppet.

För gäster, hemmakontor eller tonårsboende finns dessutom ett separat gästhus om 37 kvm Boa och 3 kvm BIA med stora glaspartier mot trädgården. Här ryms allrum, helkaklat badrum, sovloft och huset är förberedett för pentry. En flexibel yta med många möjligheter.

Avslutningsvis finns ett stort dubbelgarage samt en rymlig uppfart med gott om plats för flera bilar.

Ett stort och magnifikt hem i Boo Gård där arkitektur, natur, funktion och livskvalitet möts i perfekt harmoni. Välkommen att uppleva något alldeles extra.

Visningar

Boo Gård, Nacka

Roddarvägen 3

Villa8 rok234 + 481 880 m² tomt

Mäklare

Mäklare

AwardBadge
Årets Mäklarkedja 2024, 2025
Vinnare av Boneo Awards
banner

Tjänster

Bolån

Räkna på bolån för Roddarvägen 3
nordeaAlltid personlig ränta på ditt bolånRäkna här
Jämför bolån från olika banker!
lanekollPersonlig hjälp hela vägen hem!Räkna direkt!
Bostaden du tittar på matchar med 90 personer i BoneoMatch™

Hur många vill köpa din bostad?

Vi matchar din bostad mot över 500 000 köpsugna personer som går på visningar just nu.

Loading...
Boo Gård, Nacka

Roddarvägen 3

Villa8 rok234 + 481 880 m² tomt

Mäklare

Mäklare

AwardBadge
Årets Mäklarkedja 2024, 2025
Vinnare av Boneo Awards