linkedin pixel
Tillbaka till sökresultatet
Fullskärm
Fullskärm
Tillbaka till sökresultatet
externalLinkIconAlla bilder
På G!
Först på Boneo
Lägenhet4 rok108

Fakta om bostaden

  • BoendetypLägenhet
  • Antal rum4 rok
  • Boyta108
  • UpplåtelseformBostadsrätt
  • Byggnadsår2014
  • Våning 2 av 6
  • HissJa
  • Avgift till föreningen7 290 kr/mån

Beskrivning

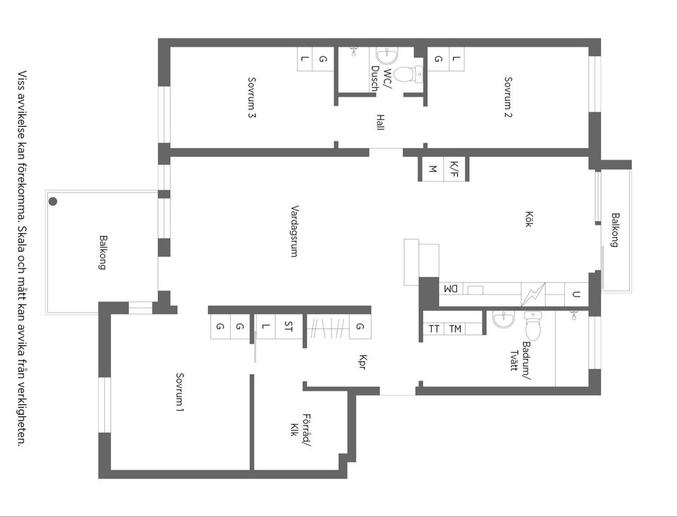
När du kliver in möts du av en rymlig hall med goda avhängnings möjligheter för ytterkläder och skor. I anslutning till hallen ligger klädkammare som ger optimala förvaringsmöjligheter. Två helkaklade badrum utrustade med dusch. Det ena badrummet erbjuder även goda tvättmöjligheter via tvättmaskin och torktumlare. Lägenheten erbjuder en öppen planlösning med snygga och moderna lösningar vilket ger rymliga ytor och en härlig känsla av rymd. Socialt och ljust vardagsrum med stora inredningsmöjligheter. Direktutgång till två balkonger i olika väderstreck. Stilfullt kök med god arbetsyta och förvaring. Plats för matbord och stolar för flertalet sittande gäster. Den öppna planlösningen bjuder in till sociala sammanhang tillsammans med familj och vänner samtidigt som du enkelt kan stå för matlagningen. Tre rogivande sovrum med plats för säng, nattduksbord eller annat önskvärt möblemang.

Här på Göran Elgfelts gata bor du med absolut närhet till Täby Centrum, som är ett av Stockholms största köpcentrum. Här hittar du ett stort utbud av shopping, restauranger, caféer, bio och mycket mer. Perfekt för både vardagsärenden och helgutflykter. Området har utmärkta kommunikationer. Med Roslagsbanan når du Stockholms innerstad på under 20 minuter och flera busslinjer går regelbundet både till och från centrala Täby samt omkringliggande områden. Dessutom är du nära både skolor, förskolor och grönområden – perfekt för dig som värdesätter en bekväm och aktiv livsstil.

Kontakta ansvarig mäklare vid intresse, Filip Gröholt 072-252 11 99.

Visningar

På G!
Först på Boneo
Täby centrum, Täby

Göran elgfelts gata 11

Lägenhet4 rok108

Mäklare

banner

Tjänster

Bolån

Räkna på bolån för GÖRAN ELGFELTS GATA 11
nordeaAlltid personlig ränta på ditt bolånRäkna här
Jämför bolån från olika banker!
lanekollPersonlig hjälp hela vägen hem!Räkna direkt!
Bostaden du tittar på matchar med 241 personer i BoneoMatch™

Hur många vill köpa din bostad?

Vi matchar din bostad mot över 500 000 köpsugna personer som går på visningar just nu.

Loading...
På G!
Först på Boneo
Täby centrum, Täby

Göran elgfelts gata 11

Lägenhet4 rok108

Mäklare