linkedin pixel
Fullskärm
Fullskärm
externalLinkIconAlla bilder
Lägenhet3 rok70

Fakta om bostaden

  • Pris1 125 000 kr
  • BoendetypLägenhet
  • Antal rum3 rok
  • Boyta70
  • UpplåtelseformBostadsrätt
  • Kvadratmeterpris (kr/m²) 16 071 kr/m²
  • Byggnadsår1951
  • Dagar på Boneofebruari 2026
  • Våning 1 av 3
  • HissNej
  • Avgift till föreningen3 322 kr/mån

Beskrivning

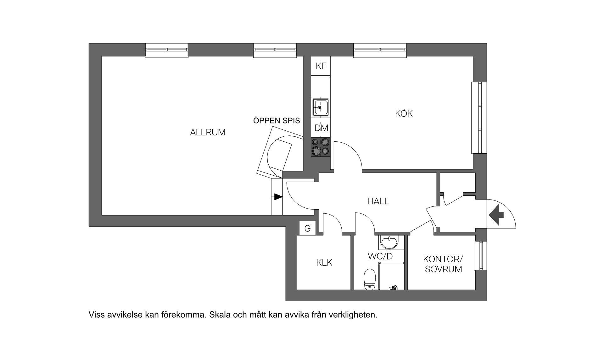
Tillfälle att förvärva en mycket fräsch lokal med övernattningsmöjligheter i bostadsrättsform, perfekt för både privatpersoner och juridiska personer. Belägen i ett lugnt bostadsområde erbjuder denna lokal cirka 68 kvm på markplan med egen ingång, vilket ger enkel åtkomst och hög användarvänlighet. Lokalen har genomgått en omfattande renovering under 2024 med nytt kök och helkaklat badrum, samt uppdaterade ytskikt från 2017 till 2025. Ett rymligt allrum om cirka 30 kvm med öppen spis skapar en inbjudande atmosfär och ger stor flexibilitet i användningen av utrymmet.

Denna lokal är idealisk för en rad olika verksamheter, såsom kontor med förråd eller lager, utbildningslokal, utställningar, försäljning, terapeuter, naprapater, föreningsaktiviteter eller för egen hobbyverksamhet. Dessutom finns det möjlighet till övernattning, dock ej för permanent boende.

Med sin strategiska placering och moderna renoveringar är denna lokal en utmärkt investering för dig som söker en mångsidig plats att bedriva din verksamhet på. Här har du chansen att skapa din egen arbetsmiljö i en välutrustad och trivsamt renoverad lokal. Välkommen att upptäcka möjligheterna!

Två parkeringsplatser utanför lokalen kan hyras. Dessutom är lokalen lättillgänglig för besökare via E18 och Rocklundamotet samt buss på Vasagatan.
Centralt - Aroslund, Västerås

Skogsvägen 23

Lägenhet3 rok70

Mäklare

banner

Tjänster

Bolån

Räkna på bolån för Skogsvägen 23
nordeaAlltid personlig ränta på ditt bolånRäkna här
Jämför bolån från olika banker!
lanekollPersonlig hjälp hela vägen hem!Räkna direkt!
Bostaden du tittar på matchar med 779 personer i BoneoMatch™

Hur många vill köpa din bostad?

Vi matchar din bostad mot över 500 000 köpsugna personer som går på visningar just nu.

Loading...
Centralt - Aroslund, Västerås

Skogsvägen 23

Lägenhet3 rok70

Mäklare