linkedin pixel
Tillbaka till sökresultatet
Fullskärm
Fullskärm
Tillbaka till sökresultatet
externalLinkIconAlla bilder
Lägenhet1 rok38,10

Fakta om bostaden

  • Pris1 495 000 kr
  • BoendetypLägenhet
  • Antal rum1 rok
  • Boyta38,10
  • UpplåtelseformBostadsrätt
  • Kvadratmeterpris (kr/m²) 39 239 kr/m²
  • Byggnadsår1957
  • Dagar på Boneo12 dagar
  • Våning 3 av 3
  • HissNej
  • Avgift till föreningen2 763 kr/mån

Beskrivning

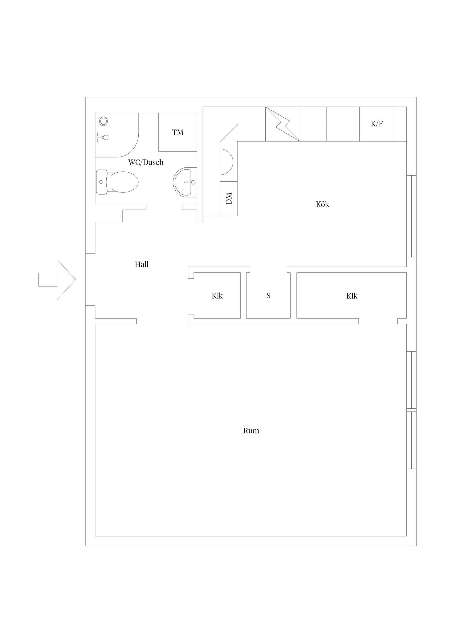
Det stilrent renoverade köket sätter tonen för denna välplanerade etta i populära Sala Backe. Här möts du av genomtänkta materialval, goda arbetsytor och en modern känsla som bjuder in till både matlagning och umgänge.

Vidare öppnar bostaden upp till ett ljust och kvadratsmart allrum med plats för såväl säng, soffa som matplats. Den generösa klädkammaren erbjuder utmärkta förvaringsmöjligheter och bidrar till den välordnade helheten. Hallen är välkomnande med ytterligare förvaring.

Badrummet är helkaklat och utrustat med tvättmaskin för extra bekvämlighet i vardagen.

Till bostaden hör dessutom två externa förråd.

På Murargatan 26C bor du i en stabil och uppskattad förening med lummiga innergårdar i lugna kvarter. Här finns tillgång till tvättstugor, cykelförråd, barnvagnsrum samt trevliga gårdar med sittplatser och grillmöjligheter. Bredband ingår i månadsavgiften.

Läget i Sala Backe är mycket attraktivt med närhet till både grönområden, service och kommunikationer. Du cyklar enkelt till city och har gångavstånd till Brantingstorget och Årsta Centrum med livsmedelsbutik, apotek, caféer och annan närservice. Dessutom når du snabbt Gränbystadens breda shoppingutbud samt E4:ans på- och avfarter.

Ett hem med genomtänkt planlösning, stilrena materialval och ett läge nära allt. Välkommen på visning!
Salabacke, Uppsala

Murargatan 26C

Lägenhet1 rok38,10

Mäklare

Mäklare

AwardBadge
Årets Mäklarkedja 2024, 2025
Vinnare av Boneo Awards
banner

Tjänster

Bolån

Räkna på bolån för Murargatan 26C
nordeaAlltid personlig ränta på ditt bolånRäkna här
Jämför bolån från olika banker!
lanekollPersonlig hjälp hela vägen hem!Räkna direkt!
Bostaden du tittar på matchar med 118 personer i BoneoMatch™

Hur många vill köpa din bostad?

Vi matchar din bostad mot över 500 000 köpsugna personer som går på visningar just nu.

Loading...
Salabacke, Uppsala

Murargatan 26C

Lägenhet1 rok38,10

Mäklare

Mäklare

AwardBadge
Årets Mäklarkedja 2024, 2025
Vinnare av Boneo Awards