linkedin pixel
Fullskärm
Fullskärm
externalLinkIconAlla bilder
Villa7 rok205 + 95747 m² tomt

Fakta om bostaden

  • Pris12 400 000 kr
  • BoendetypVilla
  • Antal rum7 rok
  • Boyta205
  • UpplåtelseformFriköpt
  • Biarea95
  • Tomtarea747 m²
  • Kvadratmeterpris (kr/m²) 60 488 kr/m²
  • Byggnadsår2002
  • Dagar på Boneo57 dagar

Beskrivning

Läget är högt, fritt och sällsynt privat. Sluttningsvillans långa och svagt rundade fasad består till största delen av heltäckande glaspartier kantade av liggande brädfasad. Från stora terrassytor och interiörens magnifika sällskapsytor öppnar sig panoramautsikten ner över sluttningens takåsar och ut över älven och hamnen.

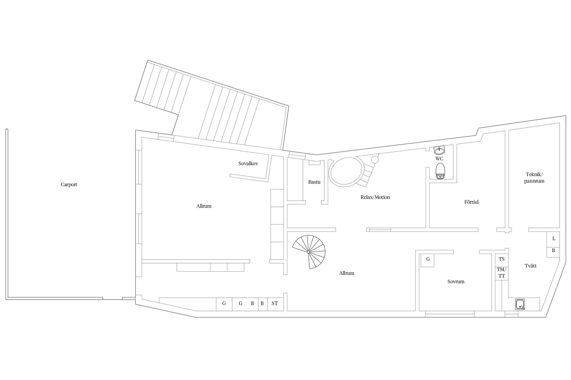
Vågorna slår mot stranden bara ett par hundra meter ner och kvällstid glittrar hundratals ljuspunkter på båda sidor av älven. Uppe på villans skyhöga takterrass är panoramat snudd på 360 grader. Blicken kan löpa från den röda kvällshimlen över Älvsborgs fästning och bort mot de grönskande höjderna i öster. Villan om totalt 300 kvm och sju rum byggdes 2002 i en tidlös modernistisk stil där ljuset från flera håll spelar huvudrollen. Takhöjden stiger svagt och är på sina ställen 3,30 meter. Den ljusa rymden är imponerande. Arkitekturlinjerna har ofta rundade, organiska former vilket – tillsammans med sällskapsytornas magnifika värmegolv i kalksten och inslag av träpanel – samspelar med den omgivande naturens grönska och vatten. Den vitputsade, runda murstocken med dubbla eldstäder är ett stilrent designelement. Utöver sällskapsytorna, med närmast heltäckande glaspartier från Velfac med utgång till terrasserna, har entréplanet ett exklusivt utrustat kök i etage samt totalt fyra sovrum med ekparkett, gäst-wc samt badrum. Sluttningsplanet har två allrum, sovrum, sober relax med bastu, bubbelbad och dusch, flera förrådsytor, tvättstuga, teknikrum samt utgång till carporten med plats för två bilar. Utöver entrésidans kalkstensterrass och den skyhöga takterrassen överraskar villan med en nedsänkt och helt skyddad träterrass på baksidan. Mellan klippor, lövträdsgrönska och fasad ligger här en helt privat plats där kvällssolen faller in. En stjärnklar natt stiger ångan från det stora spabadets varma vatten. Läget i fridfulla kvarter nära stad, hamn, natur och vatten.
Långedrag - Tångudden, Göteborg

Skonertgatan 18B

Villa7 rok205 + 95747 m² tomt

Mäklare

Mäklare

AwardBadge
Årets Mäklarkedja 2024, 2025
Vinnare av Boneo Awards
banner

Tjänster

Bolån

Räkna på bolån för Skonertgatan 18B
nordeaAlltid personlig ränta på ditt bolånRäkna här
Jämför bolån från olika banker!
lanekollPersonlig hjälp hela vägen hem!Räkna direkt!
Bostaden du tittar på matchar med 228 personer i BoneoMatch™

Hur många vill köpa din bostad?

Vi matchar din bostad mot över 500 000 köpsugna personer som går på visningar just nu.

Loading...
Långedrag - Tångudden, Göteborg

Skonertgatan 18B

Villa7 rok205 + 95747 m² tomt

Mäklare

Mäklare

AwardBadge
Årets Mäklarkedja 2024, 2025
Vinnare av Boneo Awards