linkedin pixel
Tillbaka till sökresultatet
Fullskärm
Fullskärm
Tillbaka till sökresultatet
externalLinkIconAlla bilder
Lägenhet3 rok73

Fakta om bostaden

  • Pris3 550 000 kr
  • BoendetypLägenhet
  • Antal rum3 rok
  • Boyta73
  • UpplåtelseformBostadsrätt
  • Kvadratmeterpris (kr/m²) 48 630 kr/m²
  • Byggnadsår1914
  • Dagar på Boneo36 dagar
  • Våning 3
  • HissNej
  • Avgift till föreningen3 634 kr/mån

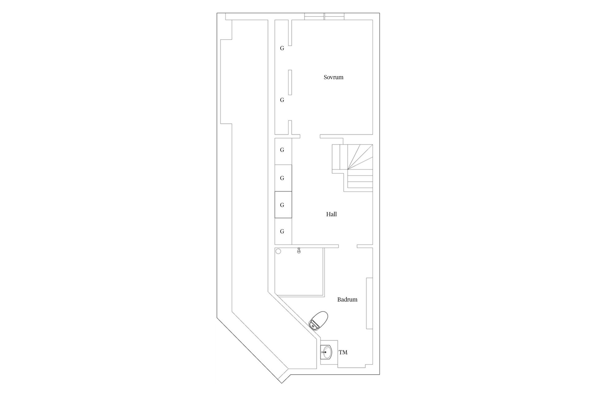
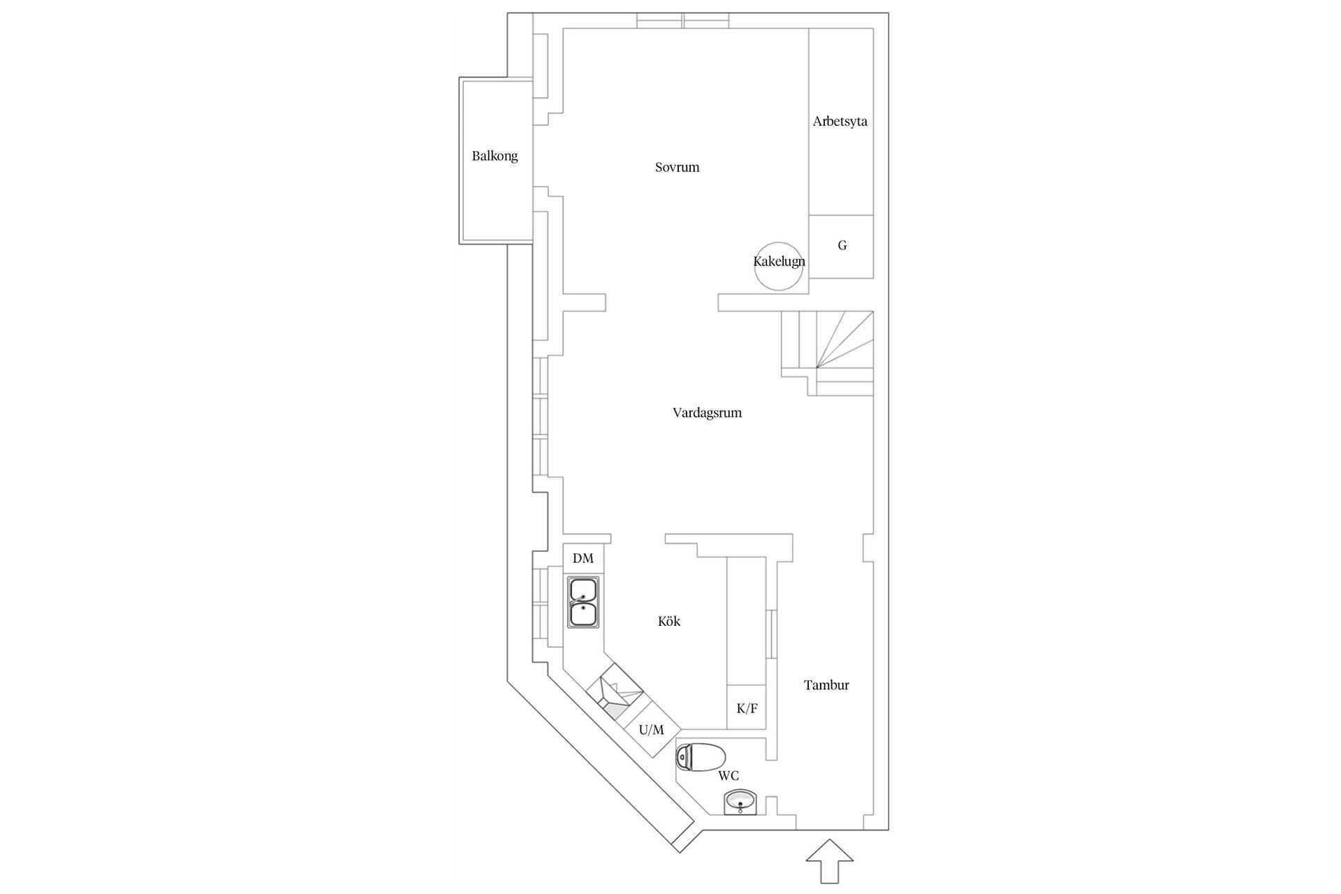
Beskrivning

Citypärla!

Med ett oslagbart cityläge och landborgens grönska som närmsta granne presenteras denna unika etagelägenhet med anor från 1914. Här möts ni av generös takhöjd, vackert spröjsade fönster och genomgående plankgolv som tillsammans skapar en tidlös och harmonisk atmosfär.

Matplatsen och vardagsrummet smälter samman i en öppen och social planlösning, där de stora fönsterpartierna släpper in ett generöst ljus som fyller hela rummet med värme och liv. Intill ligger det ljusa och trivsamma köket, en naturlig samlingspunkt för matlagning och umgänge. Från vardagsrumsdelen öppnar sig ett elegant sovrum med eldstad och utgång till balkongen, perfekt för både avkoppling och sociala stunder. Rummet kan dessutom disponeras som vardagsrum, vilket ger flexibilitet att forma hemmet efter egna behov. På detta plan finns även en praktisk gäst-WC.

På övre plan väntar ett rofyllt sovrum med utsikt över takåsar och en glimt av Öresund samt ett exklusivt badrum med takdusch och kombinerad tvättmaskin.

Här bor man i en charmig fastighe, i en stabil förening med låg månadsavgift och med troligtvis Helsingborgs mysigaste innergård.

Här bor du i hjärtat av Helsingborg och ett stenkast till Knutpunktens buss-/tåg- och båtförbindelser mot Kastrup och kontinenten. Hela stadens utbud av restauranger, kultur och service finner du alldeles utanför porten.

Välkommen att kontakta fastighetsmäklare Saga Bredahl för mer information!
Helsingborg

Himmelriksgränden 6A

Lägenhet3 rok73

Mäklare

Mäklare

AwardBadge
Årets Mäklarkedja 2024, 2025
Vinnare av Boneo Awards
banner

Tjänster

Bolån

Räkna på bolån för Himmelriksgränden 6A
nordeaAlltid personlig ränta på ditt bolånRäkna här
Jämför bolån från olika banker!
lanekollPersonlig hjälp hela vägen hem!Räkna direkt!
Bostaden du tittar på matchar med 410 personer i BoneoMatch™

Hur många vill köpa din bostad?

Vi matchar din bostad mot över 500 000 köpsugna personer som går på visningar just nu.

Loading...
Helsingborg

Himmelriksgränden 6A

Lägenhet3 rok73

Mäklare

Mäklare

AwardBadge
Årets Mäklarkedja 2024, 2025
Vinnare av Boneo Awards