linkedin pixel
Tillbaka till sökresultatet
Fullskärm
Fullskärm
Tillbaka till sökresultatet
externalLinkIconAlla bilder
På G!
Först på Boneo
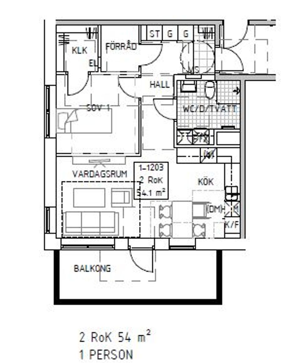
Lägenhet2 rok54

Fakta om bostaden

  • Pris2 596 800 kr
  • BoendetypLägenhet
  • Antal rum2 rok
  • Boyta54
  • UpplåtelseformBostadsrätt
  • Kvadratmeterpris (kr/m²) 48 089 kr/m²
  • Byggnadsår2026
  • Våning 1 av 4
  • HissJa
  • Avgift till föreningen3 532 kr/mån

Beskrivning

Kommande projekt - Anmäl ditt intresse redan nu för få löpande information!

Välkommen till ett nyproduktionsprojekt i centrala Kärna – med närhet till både Kärna centrum, goda bussförbindelser och den vackra bohuslänska naturen. Här bor du med havet inom räckhåll och med lugnet runt knuten, samtidigt som service och kommunikationer finns nära till hands.

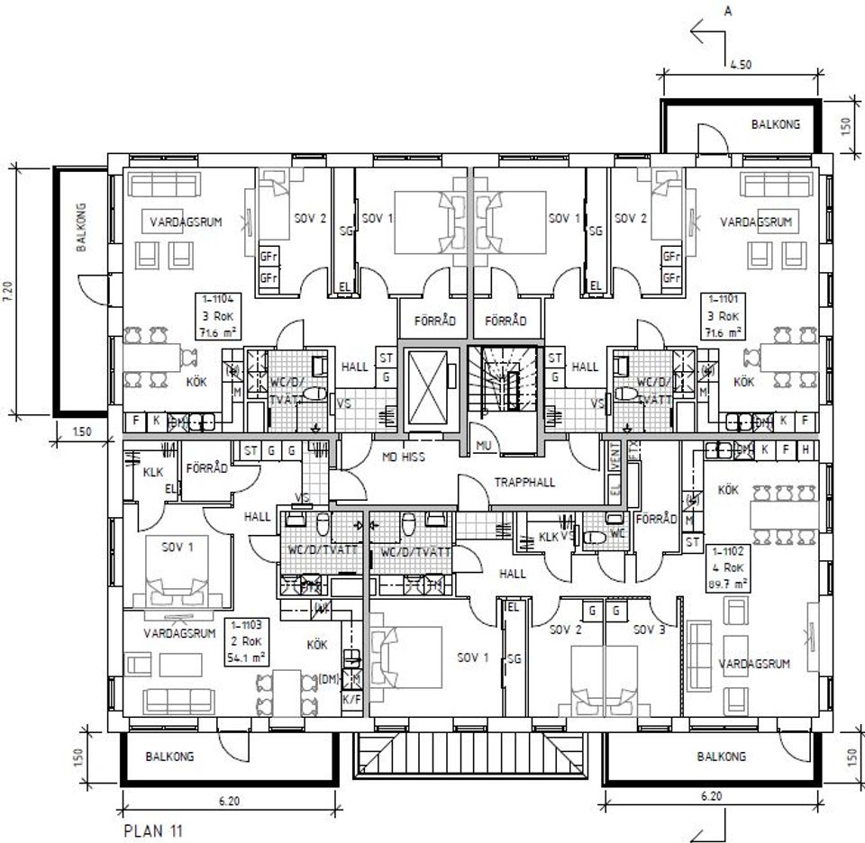
Projektet omfattar 2–4 rum och kök och är planerat som ett seniorboende, med inriktning mot 55+ för att skapa en trygg och likasinnad gemenskap. Här erbjuds generösa, välplanerade lägenheter – perfekta för dig som vill lämna villalivet men fortfarande bo rymligt och bekvämt. Standarden är hög och genomsyras av ett modernt och gediget utförande. Samtliga lägenheter har balkong eller markuteplats, vilket skapar en naturlig förlängning av hemmet och möjlighet att njuta av omgivningarna.

Boendet är utvecklat utifrån Bluezone – ett koncept inspirerat av världens så kallade Blue Zones, där människor lever längre, friskare och mer sociala liv. Gemenskap, rörelse, mening och återhämtning är centrala delar av vardagen, och dessa insikter har översatts till ett modernt nybyggnadskoncept skapat för både kropp och sinne. Här formas ett hem där relationer får ta plats och där det är enkelt att känna tillhörighet. Generösa gemensamhetsytor bjuder in till spontana möten, gemensam matlagning, kurser, föreningsaktiviteter och sociala sammankomster. Relaxavdelning med bastu och orangeri skapar naturliga samlingspunkter för umgänge och trivsel året runt.

Rörelse uppmuntras genom miljöer som gör det enkelt och lustfyllt att vara aktiv i vardagen. Projektet erbjuder faciliteter med fokus på långsiktig hälsa och återhämtning, såsom bastu, infraröd värme och IR-paneler, PEMF-matta, möjlighet till kallbad, utegym och boulebana – allt utformat för att stärka både det fysiska och mentala välbefinnandet.

Praktiska bekvämligheter är självklara. Samtliga lägenheter har förråd i bottenplan och tillhörande parkeringsplats, utöver fyra besöksparkeringar samt en HCP-plats. Byggnaden uppförs med betongstomme och hög energieffektivitet, vilket ger god ljudisolering, lågt underhållsbehov och en trygg, hållbar investering över tid. Hiss finns i huset och fiber installeras till samtliga lägenheter. Byggstart är planerad till 2026.

Bluezone är mer än ett boende – det är ett livskoncept. Ett hem där arkitektur, gemenskap och hälsa samverkar för att skapa de bästa förutsättningarna för ett långt, aktivt och meningsfullt liv. Bluezone – bo för livet, lite längre.
På G!
Först på Boneo
Kärna, Kungälv

Snödroppevägen 2 (1103)

Lägenhet2 rok54

Mäklare

banner

Tjänster

Bolån

Räkna på bolån för Snödroppevägen 2 (1103)
nordeaAlltid personlig ränta på ditt bolånRäkna här
Jämför bolån från olika banker!
lanekollPersonlig hjälp hela vägen hem!Räkna direkt!

Hur många vill köpa din bostad?

Med BoneoMatch™ ser du hur många som letar efter en liknande bostad i ditt område.

Läs mer
Loading...
På G!
Först på Boneo
Kärna, Kungälv

Snödroppevägen 2 (1103)

Lägenhet2 rok54

Mäklare