linkedin pixel
Fullskärm
Fullskärm
externalLinkIconAlla bilder
Lägenhet4 rok97,70

Fakta om bostaden

  • Pris1 995 000 kr
  • BoendetypLägenhet
  • Antal rum4 rok
  • Boyta97,70
  • UpplåtelseformBostadsrätt
  • Kvadratmeterpris (kr/m²) 20 420 kr/m²
  • Byggnadsår1975
  • Dagar på Boneo46 dagar
  • Våning 3 av 3
  • HissJa
  • Avgift till föreningen8 675 kr/mån

Beskrivning

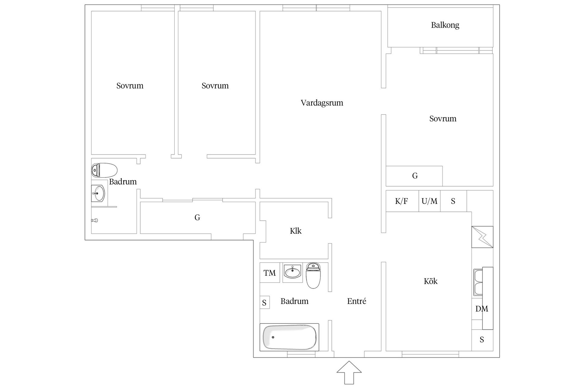
Här erbjuds en generös och mycket välplanerad bostad om 97,7 kvm fördelad på fyra rum och kök. Lägenheten har sitt ursprung i två separata bostäder som slagits samman, vilket ger en flexibel planlösning med två ingångar – en idealisk lösning för den större familjen, generationsboende eller för dig som önskar extra avskildhet.

Du välkomnas in via huvudentrén som nås från loftgången. Här möts du av en rymlig hall med goda förvaringsmöjligheter, bland annat i form av en stor klädkammare. Bostaden erbjuder två helkaklade badrum som inom kort kommer att renoveras i samband med föreningens stambyte. Köket är renoverat i modernt utförande och fullt utrustat för att möta vardagens behov.

Det luftiga vardagsrummet skapar en naturlig samlingspunkt för familj och vänner. Lägenheten rymmer tre sovrum, varav ett med utgång till balkong i soligt västerläge. De två övriga sovrummen är något mindre och ligger mer avskilt från de sociala ytorna, vilket ger en lugn och privat atmosfär.

Här bor du i ett trivsamt och lugnt område med närhet till både natur och service. På bekvämt promenadavstånd ligger Kärra centrum med matbutik, apotek, café, tandvård och simhall. Skola och förskola finns i närområdet och goda bussförbindelser tar dig in till city på cirka 20 minuter.

Ett perfekt boende för dig som vill kombinera närhet till stadens puls med ett naturnära och familjevänligt läge
Hisings Kärra, Göteborg

Lillekärr norra 88

Lägenhet4 rok97,70

Mäklare

Mäklare

AwardBadge
Årets Mäklarkedja 2024, 2025
Vinnare av Boneo Awards
banner

Tjänster

Bolån

Räkna på bolån för Lillekärr norra 88
nordeaAlltid personlig ränta på ditt bolånRäkna här
Jämför bolån från olika banker!
lanekollPersonlig hjälp hela vägen hem!Räkna direkt!
Bostaden du tittar på matchar med 51 personer i BoneoMatch™

Hur många vill köpa din bostad?

Vi matchar din bostad mot över 500 000 köpsugna personer som går på visningar just nu.

Loading...
Hisings Kärra, Göteborg

Lillekärr norra 88

Lägenhet4 rok97,70

Mäklare

Mäklare

AwardBadge
Årets Mäklarkedja 2024, 2025
Vinnare av Boneo Awards