linkedin pixel
Fullskärm
Fullskärm
externalLinkIconAlla bilder
På G!
Först på Boneo
Lägenhet1,5 rok40

Fakta om bostaden

  • Pris1 645 000 kr
  • BoendetypLägenhet
  • Antal rum1,5 rok
  • Boyta40
  • UpplåtelseformBostadsrätt
  • Kvadratmeterpris (kr/m²) 41 125 kr/m²
  • Byggnadsår2016
  • Våning 9 av 11
  • HissJa
  • Avgift till föreningen3 529 kr/mån

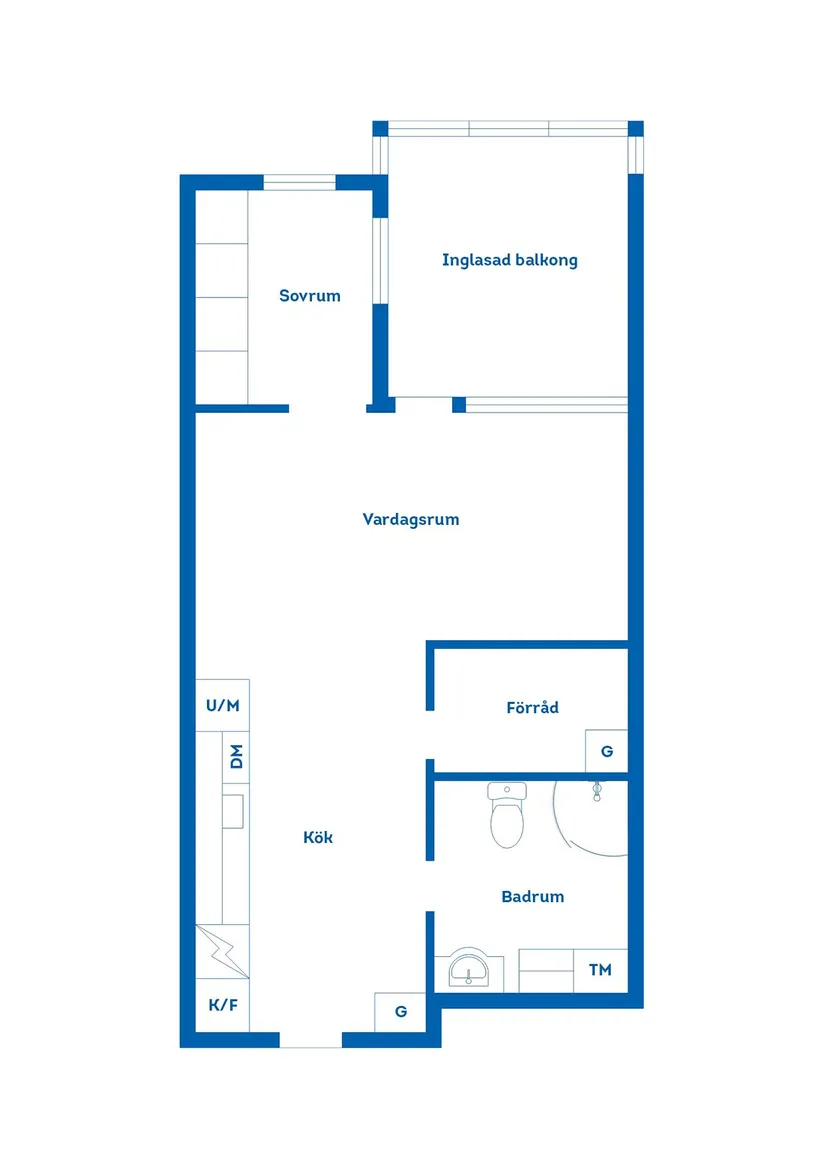
Beskrivning

Högt upp i huset, på våning 9 av 11, väntar denna stilrena och mycket välplanerade 1,5:a om 40 kvm – ett hem som kombinerar modern komfort, smarta lösningar och en utsikt som verkligen gör skillnad i vardagen. Här bor du i en fastighet uppförd 2016 med hög teknisk standard, genomtänkt planlösning och hållbara lösningar såsom bergvärme, FTX-ventilation och solceller på taket.

Redan i hallen möts du av ett ljust och välkomnande intryck med parkettgolv, målade väggar och praktisk förvaring i garderob. Planlösningen är effektiv och social, där kök och vardagsrum samspelar på ett naturligt sätt. Det moderna HTH-köket har vita släta luckor, gott om förvaring och komplett maskinell utrustning i form av kyl, frys, ugn, häll, diskmaskin, mikro och fläkt. Intill köket finns plats för matbord – perfekt för både vardagsmiddagar och umgänge.

Vardagsrummet är rymligt och lätt möblerad, med plats för soffa, tv, skrivbord och övrigt möblemang. Härifrån når du bostadens stora inglasade balkong – en riktig förlängning av hemmet. Balkongen erbjuder förmiddagssol, generösa ytor för utemöbler och odlingslådor samt en härlig vy över omgivningarna. Ett extra rum större delen av året.

Sovalkoven är smart placerad och avskild, med plats för säng och sängbord samt praktisk förvaring i överskåp. Badrummet är modernt och stilrent med kaklade väggar och klinkergolv. Här erbjuds golvvärme, handdukstork, spotlights i taket samt kombinerad tvätt- och torkmaskin – bekvämt och yteffektivt. Vägghängd toalett, dusch med glasväggar och handfat i kommod fulländar helheten.

Föreningen är välskött och genomtänkt, med gemensamma utrymmen såsom cykelförråd, barnvagns- och rullstolsförråd samt lägenhetsförråd. I det gemensamma parkeringshuset finns garageplatser att hyra, även med möjlighet till laddstolpe för elbil. Solcellerna på taket bidrar till föreningens gemensamma elförbrukning och är ett tydligt plus ur både miljö- och driftsperspektiv.

Här bor du i populära Södra Ekkällan – ett område som kombinerar natur, stad och bekvämlighet på bästa sätt. Med cykel når du centrala Linköping på cirka tio minuter, universitetet, US, SAAB och Garnisonen finns inom bekvämt avstånd och resecentrum nås smidigt med buss. I närområdet finns mataffär, gym, skolor, förskolor, restauranger och vackra grönområden – inte minst Tinnerö eklandskap med sina uppskattade promenad- och strövområden.

Ett modernt och bekvämt boende med hög standard, fantastisk balkong och ett läge som gör vardagen enkel.
Välkommen hem till Rotegatan 8.
På G!
Först på Boneo
Södra Ekkällan, Linköping

Rotegatan 8

Lägenhet1,5 rok40

Mäklare

Tjänster

Bolån

Räkna på bolån för Rotegatan 8
nordeaAlltid personlig ränta på ditt bolånRäkna här
Jämför bolån från olika banker!
lanekollPersonlig hjälp hela vägen hem!Räkna direkt!

Hur många vill köpa din bostad?

Med BoneoMatch™ ser du hur många som letar efter en liknande bostad i ditt område.

Läs mer
Loading...
På G!
Först på Boneo
Södra Ekkällan, Linköping

Rotegatan 8

Lägenhet1,5 rok40

Mäklare