linkedin pixel
Tillbaka till sökresultatet
Fullskärm
Fullskärm
Tillbaka till sökresultatet
externalLinkIconAlla bilder
På G!
Först på Boneo
Lägenhet4 rok94,60

Fakta om bostaden

  • BoendetypLägenhet
  • Antal rum4 rok
  • Boyta94,60
  • UpplåtelseformBostadsrätt
  • Byggnadsår2022
  • Våning 2 av 2
  • HissJa
  • Avgift till föreningen6 782 kr/mån

Beskrivning

Modern och välplanerad 4:a i toppskick

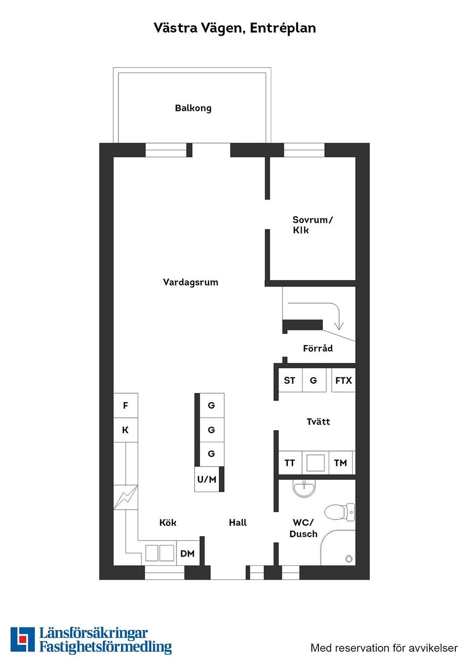
Välkommen till en modern och ljus bostadsrätt om 94,6 kvm på attraktiva Västra vägen i Trönninge – ett perfekt hem för dig som söker rymd, komfort och ett bekvämt boende i toppskick. Bostaden är byggd 2022–2023 och fördelad på två plan med smart planlösning, två badrum och gott om förvaring.

Entréplanet bjuder på ett stilrent kök i öppen anslutning till det rymliga vardagsrummet där stora fönster och utgång till balkong skapar en härlig känsla av ljus och rymd. Här finns även ett helkaklat badrum, tvättavdelning samt ett extra rum som idag används som klädkammare men fungerar lika bra som sovrum eller kontor.

På övre plan ligger två generösa sovrum, ytterligare ett helkaklat badrum samt extra förrådsutrymme – perfekt för familjen som vill ha tydlig uppdelning mellan sociala och privata ytor. Brf Gatan är en stabil förening med 28 lägenheter. Avgiften på 6 782 kr inkluderar värme, parkeringsplats och sophantering. Vatten debiteras efter faktisk förbrukning.

Trönninge är ett populärt och familjevänligt område nära både hav och natur, ca 8 km söder om Halmstad centrum. Här finns flera förskolor, F–9-skola, butik, restauranger, gym och ett aktivt föreningsliv. Dessutom når du köpcentret Hallarna på några minuter och sommartid lockar Laxviks strand med härliga bad.

Ett modernt, lättskött och bekvämt hem i ett växande område – varmt välkommen!
På G!
Först på Boneo
Trönninge, Halmstad

Västra vägen 41 F

Lägenhet4 rok94,60

Mäklare

banner

Tjänster

Bolån

Räkna på bolån för Västra vägen 41 F
nordeaAlltid personlig ränta på ditt bolånRäkna här
Jämför bolån från olika banker!
lanekollPersonlig hjälp hela vägen hem!Räkna direkt!
Bostaden du tittar på matchar med 730 personer i BoneoMatch™

Hur många vill köpa din bostad?

Vi matchar din bostad mot över 500 000 köpsugna personer som går på visningar just nu.

Loading...
På G!
Först på Boneo
Trönninge, Halmstad

Västra vägen 41 F

Lägenhet4 rok94,60

Mäklare