linkedin pixel
Fullskärm
Fullskärm
externalLinkIconAlla bilder
På G!
Först på Boneo
Parhus5 rok125,50

Fakta om bostaden

  • Pris2 195 000 kr
  • BoendetypParhus
  • Antal rum5 rok
  • Boyta125,50
  • UpplåtelseformBostadsrätt
  • Kvadratmeterpris (kr/m²) 17 490 kr/m²
  • Byggnadsår1988
  • Våning 1 av 2
  • HissNej
  • Avgift till föreningen7 142 kr/mån

Beskrivning

"TRIVSAMT PARHUS MED HÖRNLÄGE"

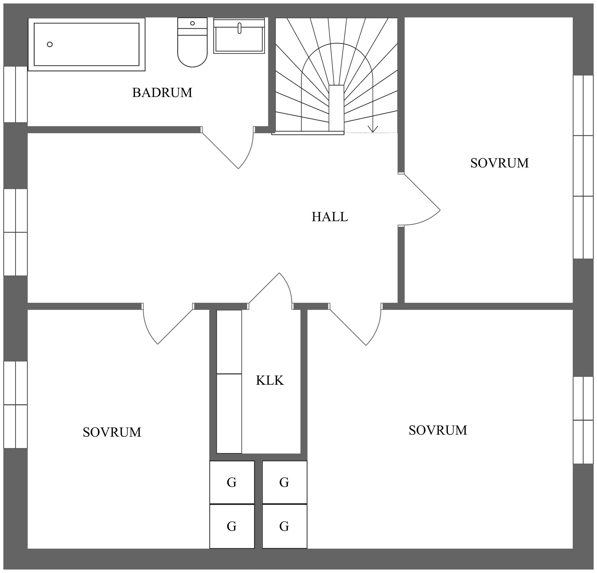
Välkommen till Stugvägen 38B, ett av områdets mest eftertraktade parhus med ett av föreningens bästa lägen. Här bor du längst ned på gatan med ett helt insynsskyddat och rofyllt läge som ger en tydlig villakänsla, samtidigt som du har tryggheten i en stabil och välskött bostadsrättsförening.

Bostaden omfattar 125,5 kvm fördelade på två plan med generösa ytor för hela familjen. På entréplanet möts du av en välkomnande hall, ett arbetsvänligt kök och ett ljust vardagsrum med utgång till det inglasade uterummet. Här finns även ett rymligt sovrum med klädkammare, badrum samt en separat och praktisk tvättstuga.

Det inglasade uterummet fungerar som en naturlig förlängning av bostaden och leder vidare ut till den stora, grönskande trädgården med planteringar, gräsmatta och gott om plats för både lek och avkoppling. Övre plan erbjuder tre sovrum, varav ett rymligt master bedroom med god förvaring. Här finns även en möblerbar hall, ytterligare klädkammare samt ett badrum.

Till bostaden hör garage med förrådsdel, bekvämt placerat i direkt anslutning till huset. Läget är idealiskt för barnfamiljen med gångavstånd till förskola, skola och Billbäcks Arena med fotbollsplaner och idrottshall. I Svärtinge finns även badplatser, natursköna promenadstråk och populära Svärtinge Udde. Dagligvaruhandel finns nära till hands och smidiga bussförbindelser gör pendlingen enkel till både Norrköping och Finspång.

Ett hem med det bästa av två världar med villakänsla, trädgård och lugn, kombinerat med bekvämt och tryggt boende.

Välkommen hem.
På G!
Först på Boneo
Nedre Svärtinge, Norrköping

Stugvägen 38B

Parhus5 rok125,50

Mäklare

banner

Tjänster

Bolån

Räkna på bolån för Stugvägen 38B
nordeaAlltid personlig ränta på ditt bolånRäkna här
Jämför bolån från olika banker!
lanekollPersonlig hjälp hela vägen hem!Räkna direkt!

Hur många vill köpa din bostad?

Med BoneoMatch™ ser du hur många som letar efter en liknande bostad i ditt område.

Läs mer
Loading...
På G!
Först på Boneo
Nedre Svärtinge, Norrköping

Stugvägen 38B

Parhus5 rok125,50

Mäklare