linkedin pixel
Tillbaka till sökresultatet
Fullskärm
Fullskärm
Tillbaka till sökresultatet
externalLinkIconAlla bilder
På G!
Först på Boneo
Villa5 rok120 + 343 245 m² tomt

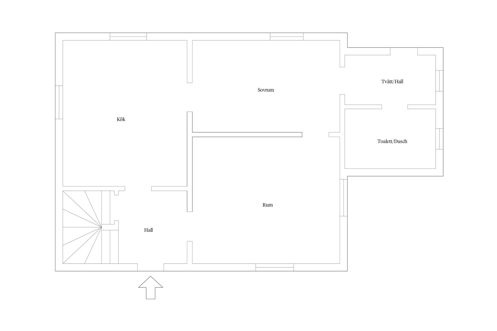
Fakta om bostaden

  • Pris3 995 000 kr
  • BoendetypVilla
  • Antal rum5 rok
  • Boyta120
  • UpplåtelseformFriköpt
  • Biarea34
  • Tomtarea3 245 m²
  • Kvadratmeterpris (kr/m²) 33 292 kr/m²
  • Byggnadsår1928

Beskrivning

Charmig 1,5 planare!

Välkommen till ett varmt och inbjudande 1,5-planshus som verkligen bjuder in till livskvalitet och trivsel.
Här möts du av generösa ytor och en genomtänkt planlösning med fem rum, och dessutom finns möjligheten att skapa ytterligare ett sovrum för den växande familjen, hemmakontoret eller gäster som gärna stannar lite längre.

Husets hjärta fortsätter ut genom altandörrarna ifrån mastern till den mycket rymliga altanen – en plats som närmast kan beskrivas som en magisk dansbana! Här njuter du av soliga dagar, ljumma sommarkvällar och en vidsträckt, fri utsikt över öppna ängar och den glittrande älven, där naturen ständigt skiftar i färg och stämning. En perfekt plats för både stilla morgonkaffe och långa middagar i goda vänners lag.

Fastigheten är belägen på en ytterst lugn och stillsam väg– ett tryggt och harmoniskt läge som ger en känsla av avskildhet och ro.

På tomten finns även en extra byggnad, fylld av potential. Här finns alla möjligheter att skapa gästhus, ateljé, hobbyverkstad eller extra förvaring – endast fantasin sätter gränser. Dessutom erbjuds goda parkeringsmöjligheter med gott om plats, perfekt för både familj och besökare.

Övervåningen kröns av ett nyrenoverat, stilrent och härligt badrum, där moderna materialval möter en fräsch och lyxig känsla – en plats för avkoppling och vardagslyx.

Detta är mer än ett hus – det är ett hem där livet får ta plats, där naturen är din närmaste granne och där varje dag får kännas lite extra bra.
På G!
Först på Boneo
Kungälv

Marieberg 210

Villa5 rok120 + 343 245 m² tomt

Mäklare

Mäklare

AwardBadge
Årets Mäklarkedja 2024, 2025
Vinnare av Boneo Awards
banner

Tjänster

Bolån

Räkna på bolån för Marieberg 210
nordeaAlltid personlig ränta på ditt bolånRäkna här
Jämför bolån från olika banker!
lanekollPersonlig hjälp hela vägen hem!Räkna direkt!
Bostaden du tittar på matchar med 1 411 personer i BoneoMatch™

Hur många vill köpa din bostad?

Vi matchar din bostad mot över 500 000 köpsugna personer som går på visningar just nu.

Loading...
På G!
Först på Boneo
Kungälv

Marieberg 210

Villa5 rok120 + 343 245 m² tomt

Mäklare

Mäklare

AwardBadge
Årets Mäklarkedja 2024, 2025
Vinnare av Boneo Awards