linkedin pixel
Tillbaka till sökresultatet
Fullskärm
Fullskärm
Tillbaka till sökresultatet
externalLinkIconAlla bilder
Lägenhet2 rok88

Fakta om bostaden

  • Pris3 195 000 kr
  • BoendetypLägenhet
  • Antal rum2 rok
  • Boyta88
  • UpplåtelseformBostadsrätt
  • Kvadratmeterpris (kr/m²) 36 307 kr/m²
  • Byggnadsår1904
  • Dagar på Boneo2 dagar
  • Våning 1 av 6
  • HissJa
  • Avgift till föreningen6 074 kr/mån

Beskrivning

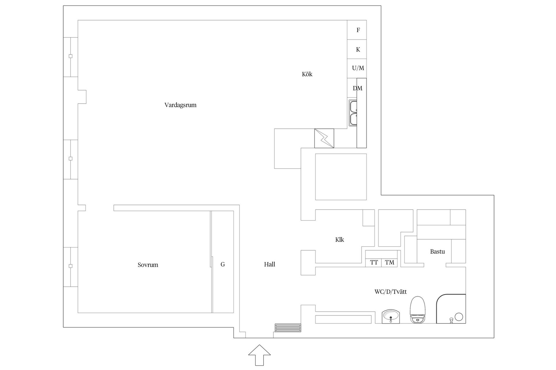
Välkommen till en exklusiv och generös tvåa om hela 88 kvm i anrika Brf Grand Hotel – ett boende utöver det vanliga för dig som söker hotellkänsla i vardagen. Här möts du av en bostad där rymd, komfort och elegans samspelar på bästa sätt. De väl tilltagna ytorna skapar en luftig och harmonisk atmosfär, samtidigt som planlösningen erbjuder både sociala ytor och privata rum. Detta är inte bara en tvåa – det är en livsstil. Badrummet är helkaklat och påkostat med golvvärme, tvättmaskin och torktumlare – och som extra guldkant finns en privat bastu i lägenheten. En sällsynt detalj som förvandlar vardagen till en spa-upplevelse.

Föreningen erbjuder dessutom en rad exklusiva faciliteter: en innergård, ett mindre bibliotek, en takterrass med jacuzzi, bastu och dusch där du kan njuta av avkopplande stunder ovan stadens puls. För långväga gäster finns en gästlägenhet att tillgå, och den pampiga matsalen i Grand Hotel – som går att nyttja som föreningsmedlem – ger möjlighet till festliga middagar och tillställningar i unik miljö.

Den generösa klädkammaren och det stora tillhörande förrådet ger gott om förvaring – här bor du rymligt och bekvämt utan kompromisser.

Ett hem för dig som söker något mer än bara kvadratmeter – här bor du med karaktär, kvalitet och exklusiva mervärden.

Visningar

Centrum, Karlstad

Västra torggatan 8

Lägenhet2 rok88

Mäklare

Mäklare

AwardBadge
Årets Mäklarkedja 2024, 2025
Vinnare av Boneo Awards
banner

Tjänster

Bolån

Räkna på bolån för Västra torggatan 8
nordeaAlltid personlig ränta på ditt bolånRäkna här
Jämför bolån från olika banker!
lanekollPersonlig hjälp hela vägen hem!Räkna direkt!
Bostaden du tittar på matchar med 156 personer i BoneoMatch™

Hur många vill köpa din bostad?

Vi matchar din bostad mot över 500 000 köpsugna personer som går på visningar just nu.

Loading...
Centrum, Karlstad

Västra torggatan 8

Lägenhet2 rok88

Mäklare

Mäklare

AwardBadge
Årets Mäklarkedja 2024, 2025
Vinnare av Boneo Awards