linkedin pixel
Fullskärm
Fullskärm
externalLinkIconAlla bilder
Lägenhet2 rok59

Fakta om bostaden

  • Pris2 395 000 kr
  • BoendetypLägenhet
  • Antal rum2 rok
  • Boyta59
  • UpplåtelseformBostadsrätt
  • Kvadratmeterpris (kr/m²) 40 593 kr/m²
  • Byggnadsår2023
  • Dagar på Boneo40 dagar
  • Våning 1 av 2
  • HissNej
  • Avgift till föreningen4 385 kr/mån

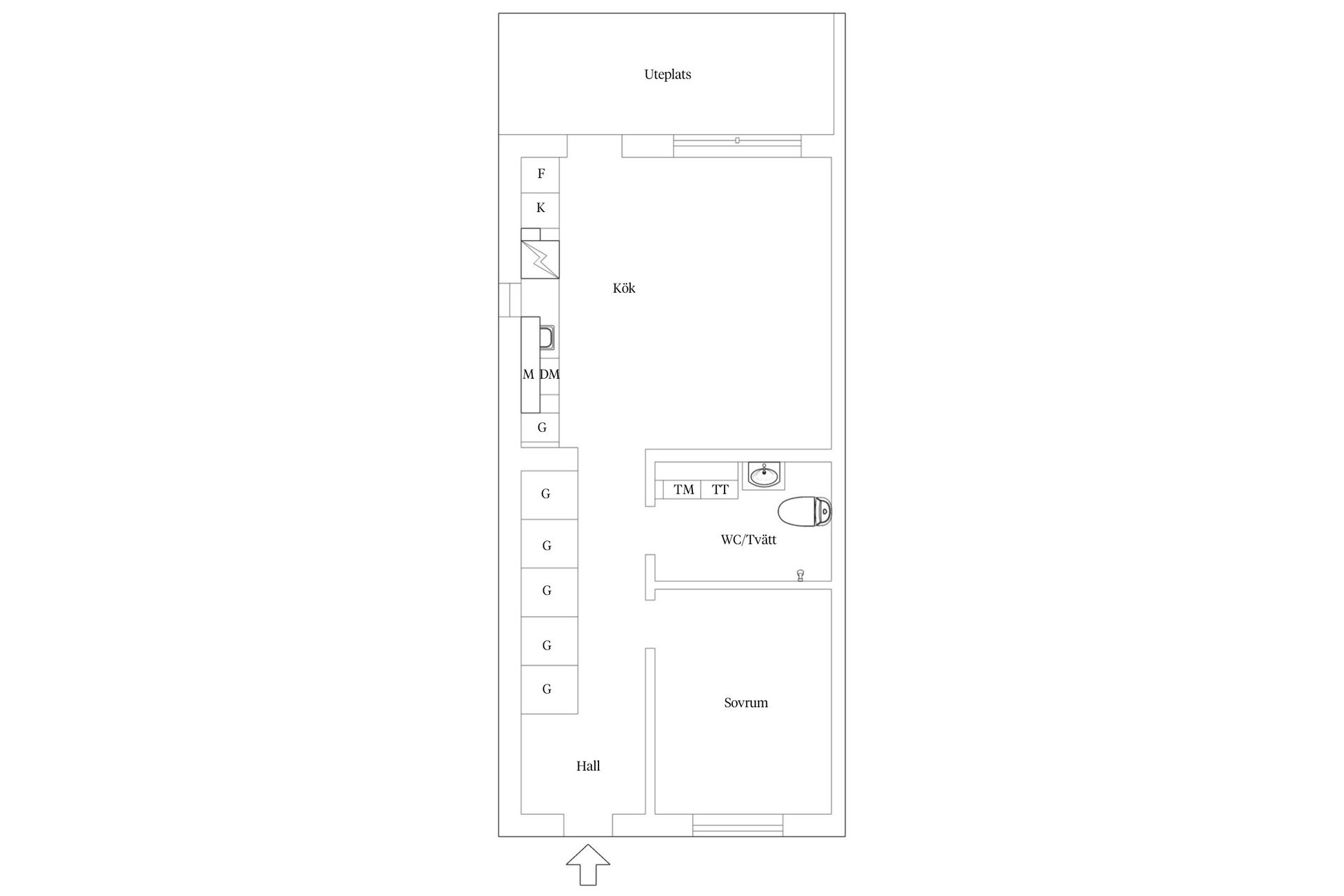
Beskrivning

Nu har du chansen att förvärva en stilfull och modern markplanslägenhet i ett av de nybyggda gårdshusen på Västra gatan. Här har det populära inredningspaketet Trend valts – ett genomtänkt koncept som ger bostaden en tydlig industriell karaktär med svarta detaljer, sobra grå toner och ett modernt, urbant uttryck som genomsyrar hela hemmet.

Köket är både elegant och funktionellt med ljusgrå släta luckor, varm mörkgrå bänkskiva och rostfria vitvaror som ugn, mikro, kyl och frys. Diskmaskinen är integrerad för ett sömlöst intryck. Här möts kök och vardagsrum i en öppen och luftig planlösning som bjuder in till umgänge, med gott om plats för ett större matbord och sociala tillställningar.
Bostaden erbjuder gott om förvaring redan i hallen, ett rofyllt sovrum med plats för dubbelsäng samt ett smakfullt badrum där svarta detaljer, takdusch samt egen tvättmaskin och torktumlare skapar en tydlig känsla av både komfort och design.
Som en naturlig förlängning av bostaden finns en härlig och luftig uteplats om cirka 20 kvm, perfekt för loungemöbler, middagar och avkoppling under årets varmare månader.

Här bor du på markplan med ett bekvämt boende och möjlighet att sätta din egen prägel på ett redan stilrent hem. Läget är svårslaget, mitt i mötet mellan Kungälvs charmiga gamla stadskärna och det nya, växande stadsområdet. På kort promenadavstånd når du shopping, restauranger, service, Bohus fästning och vackra promenadstråk längs älven och genom Stadsparken.

Ett modernt hem med karaktär, komfort och ett läge som erbjuder det bästa av både historia och framtid. Varmt välkommen!

Visningar

Kungälv - Centralt, Kungälv

Trappgränd 14

Lägenhet2 rok59

Mäklare

Mäklare

AwardBadge
Årets Mäklarkedja 2024, 2025
Vinnare av Boneo Awards
banner

Tjänster

Bolån

Räkna på bolån för Trappgränd 14
nordeaAlltid personlig ränta på ditt bolånRäkna här
Jämför bolån från olika banker!
lanekollPersonlig hjälp hela vägen hem!Räkna direkt!
Bostaden du tittar på matchar med 629 personer i BoneoMatch™

Hur många vill köpa din bostad?

Vi matchar din bostad mot över 500 000 köpsugna personer som går på visningar just nu.

Loading...
Kungälv - Centralt, Kungälv

Trappgränd 14

Lägenhet2 rok59

Mäklare

Mäklare

AwardBadge
Årets Mäklarkedja 2024, 2025
Vinnare av Boneo Awards