linkedin pixel
Tillbaka till sökresultatet
Fullskärm
Fullskärm
Tillbaka till sökresultatet
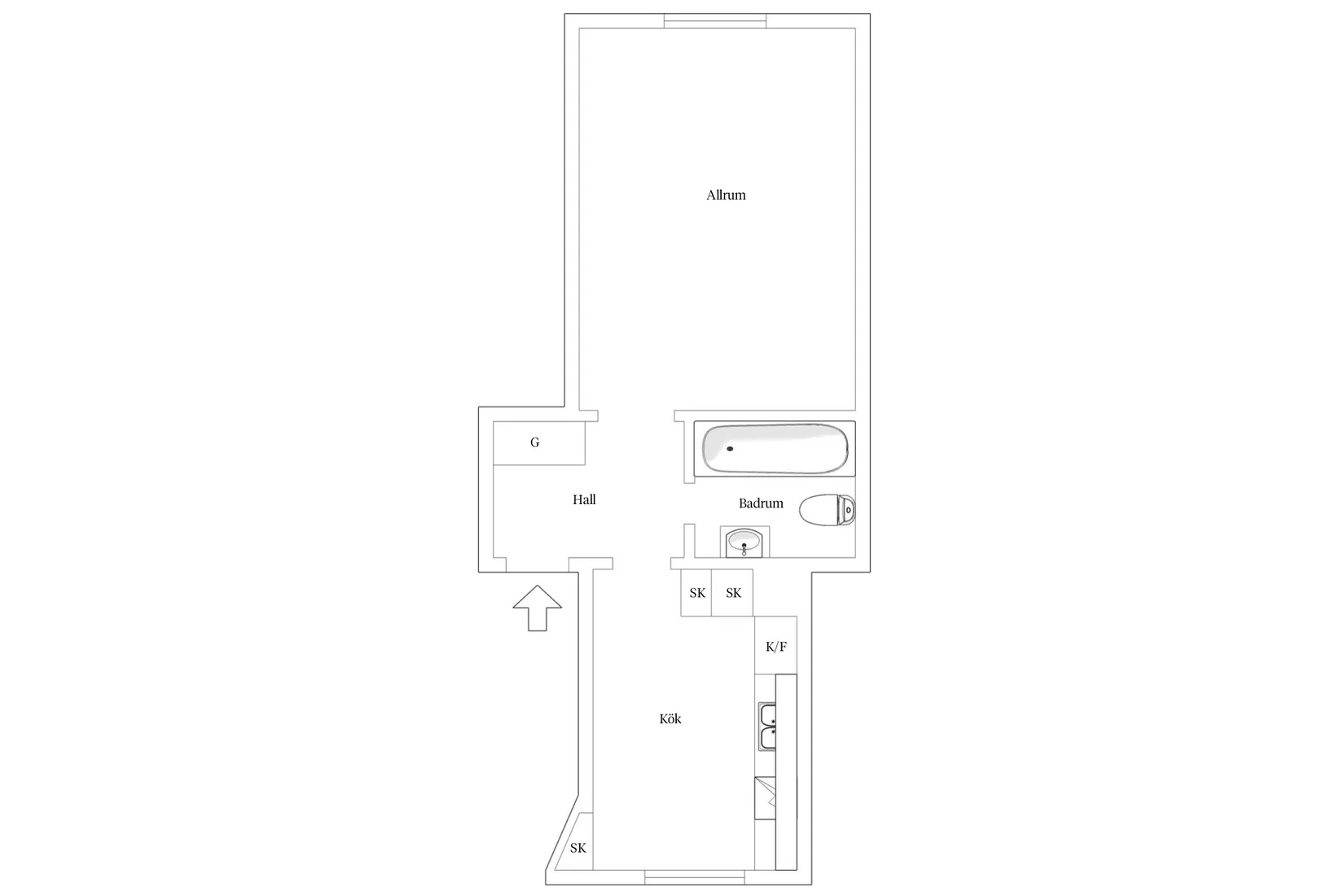
Lägenhet1 rok38,30

Fakta om bostaden

  • Pris2 150 000 kr
  • BoendetypLägenhet
  • Antal rum1 rok
  • Boyta38,30
  • UpplåtelseformBostadsrätt
  • Kvadratmeterpris (kr/m²) 56 136 kr/m²
  • Byggnadsår1934
  • Dagar på Boneo32 dagar
  • Våning 2 av 3
  • HissNej
  • Avgift till föreningen2 711 kr/mån

Beskrivning

Bjurfors Century har glädjen att presentera denna underbara landshövdingepärlan belägen i ett historiskt kvarter!

Bostaden präglas av ljusa genomgående färgval och vackra brädgolv som skapar en varm och välkomnande atmosfär att längta hem till. Det ljusa köket är välplanerat och erbjuder gott om förvaring – perfekt för den som tycker om att laga mat och umgås. I det rofyllda allrummet finns gott om plats för både säng, soffa och förvaring, och här kan du skapa en personlig och avkopplande miljö.

Föreningen är trivsam med en grön och mysig innergård till medlemmarnas förfogande.

Här bor du mitt i hjärtat av Majorna, med närhet till områdets populära caféer, restauranger och små butiker. Dessutom finns goda kommunikationer nära tillhands och promenadavstånd till grönskande Slottsskogen, perfekt för dig som uppskattar både stadsliv och natursköna miljöer. Varmt välkomna att höra av er till ansvarig mäklare Ebba Westerlind för att boka in er på förhandsvisning!
Majorna, Göteborg

Såggatan 71C

Lägenhet1 rok38,30

Mäklare

Mäklare

AwardBadge
Årets Mäklarkontor 2024Årets Mäklarkedja 2024, 2025
Vinnare av Boneo Awards
banner

Tjänster

Bolån

Räkna på bolån för Såggatan 71C
nordeaAlltid personlig ränta på ditt bolånRäkna här
Jämför bolån från olika banker!
lanekollPersonlig hjälp hela vägen hem!Räkna direkt!
Bostaden du tittar på matchar med 1 154 personer i BoneoMatch™

Hur många vill köpa din bostad?

Vi matchar din bostad mot över 500 000 köpsugna personer som går på visningar just nu.

Loading...
Majorna, Göteborg

Såggatan 71C

Lägenhet1 rok38,30

Mäklare

Mäklare

AwardBadge
Årets Mäklarkontor 2024Årets Mäklarkedja 2024, 2025
Vinnare av Boneo Awards