linkedin pixel
Tillbaka till sökresultatet
Fullskärm
Fullskärm
Tillbaka till sökresultatet
På G!
Villa7 rok305903 m² tomt

Fakta om bostaden

  • Pris14 495 000 kr
  • BoendetypVilla
  • Antal rum7 rok
  • Boyta305
  • UpplåtelseformFriköpt
  • Tomtarea903 m²
  • Kvadratmeterpris (kr/m²) 47 525 kr/m²
  • Byggnadsår2026

Beskrivning

Välkommen till ett unikt tillfälle att förvärva en modern arkitektritad villa om hela 305 m² i attraktiva Bunkeflostrand. Detta är ett pågående projekt, vilket innebär att du som köpare har en sällsynt möjlighet att vara med och påverka slutresultatet samt välja tillval och anpassningar efter egna önskemål på ett enkelt sätt.

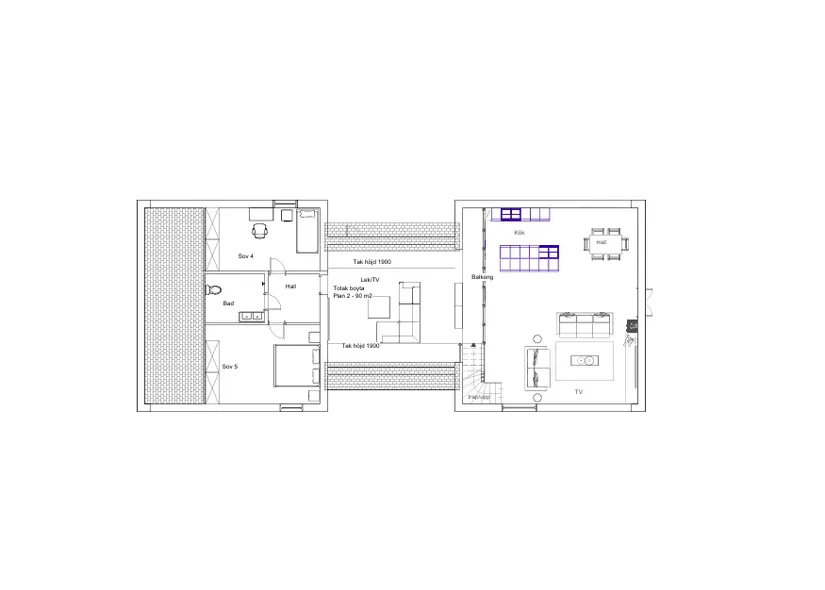
Villan uppförs i 1½ plan med generösa sociala ytor, upp till sju rum och modern planlösning där funktion, design och ljus samspelar. Här planeras ett hem för den moderna familjen där öppna ytor, högt i tak och stora fönsterpartier skapar en luftig och exklusiv känsla.

Huset har en genomtänkt arkitektur där vardagsrum och kök binds samman i ett öppet och socialt rum med imponerande rymd och kontakt mellan våningsplanen via en elegant trappa och öppet loft. De stora fönsterpartierna ger ett fantastiskt ljusinsläpp och skapar en naturlig koppling mellan inne och ute.

På tomten om 903 m² finns gott om utrymme för trädgård, uteplatser och framtida utveckling. Eftersom projektet fortfarande är under uppförande finns möjlighet att göra personliga tillval och därmed skapa ett hem helt efter egna behov.

Exempel på möjliga tillval (utanför utgångspriset):

Garage – ca 30 m² biyta

Poolhus – ca 15 m² biyta

Pool

Möjlighet att anpassa materialval och interiör

Detta ger köparen en unik chans att kombinera fördelen av ett nybyggt hus med möjligheten att påverka utformningen.

Fastigheten byggs med moderna och hållbara materialval såsom putsad fasad, lättbetongstomme, betongbjälklag och platta på mark. Fönster från Elitfönster med 3-glas, betongpannor på taket samt energieffektiva lösningar bidrar till ett hållbart och komfortabelt boende.

Här bor du i ett lugnt och familjevänligt område nära hav, natur, skolor och service, samtidigt som Malmö centrum nås snabbt och smidigt.

Kontakta ansvarig mäklare för mer information.
På G!
Malmö

Ängsdalsvägen 19

Villa7 rok305903 m² tomt

Mäklare

Tjänster

Bolån

Räkna på bolån för Ängsdalsvägen 19
nordeaAlltid personlig ränta på ditt bolånRäkna här
Jämför bolån från olika banker!
lanekollPersonlig hjälp hela vägen hem!Räkna direkt!
Bostaden du tittar på matchar med 106 personer i BoneoMatch™

Hur många vill köpa din bostad?

Vi matchar din bostad mot över 500 000 köpsugna personer som går på visningar just nu.

Loading...
På G!
Malmö

Ängsdalsvägen 19

Villa7 rok305903 m² tomt

Mäklare