linkedin pixel
Fullskärm
Fullskärm
Villa4 rok1101 130 m² tomt

Fakta om bostaden

  • Pris5 495 000 kr
  • BoendetypVilla
  • Antal rum4 rok
  • Boyta110
  • UpplåtelseformFriköpt
  • Tomtarea1 130 m²
  • Kvadratmeterpris (kr/m²) 49 955 kr/m²
  • Byggnadsår1956
  • Dagar på Boneo28 dagar

Beskrivning

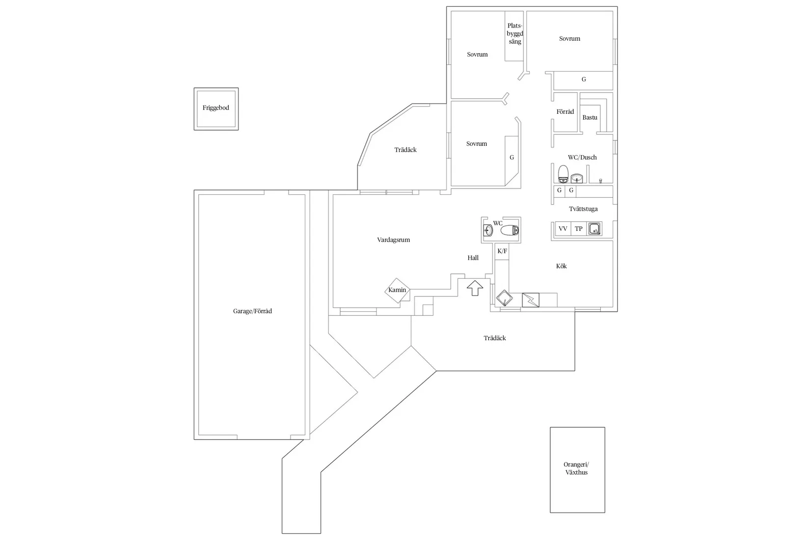
Varmt välkomna till Horsekullevägen 11 och en trevligt planerad bostad som sträcker sig över ett plan. Läget på Fjordsidan i Onsala erbjuder gångavstånd till salta bad och båtliv. Det trivsamma området ligger med närhet till kommunikationer som tar er till Kungsbacka och vidare. Även barnomsorg och idrottshall finns i närheten med gångavstånd.

Via uppfarten, som ger plats för flera bilar, når ni garaget och bostaden. Garaget är isolerat och väl tilltaget med ca 60 kvm yta samt högt i tak. Gången, som leder er igenom den mysiga uteplatsen på husets framsida, tar er fram till entrén. På framsidan finns en altan med plats för större sittgrupp och ett underbart charmigt orangeri som ger möjlighet till middagar med familj och vänner, eller odling.

Bostaden välkomnar er in med en trevlig hall som erbjuder möjlighet att hänga av ytterkläder. Hallens klinkergolv övergår i parkettgolv som leder er vidare. Bostadens väggar är genomgående vita. Till vänster från hallen öppnar sig det trivsamma sällskapsrummet där braskaminen smyckar och värmer gott om kalla vinterdagar. Här finns plats för både soffgrupp och större middagsbord. De stora fönsterpartierna vetter mot baksidan där den härliga och stora gräsytan öppnar sig.

Tillbaka till hallen och till höger finner ni ett WC och runt hörnet är köket placerat. Köket erbjuder goda förvaringsmöjligheter genom såväl över- som underskåp i vitt. De vita luckorna bryts av mot den svarta bänkskivan som skapar en fin arbetsyta för matlagning och bakning. Golvytan ger utrymme för såväl en mindre köksö som matbord och fönster i flera väderstreck ger ett fint ljus. Här finns spis med ugn, diskmaskin, köksfläkt samt kyl och frys.

Bostadens badrum är utrustat med en välarbetad duschhörna med skogsgrönt kakel, bastu, handdukstork, handfat, WC-stol och hyllor. Väggarna är delvis vita och kaklade och kombineras med ett vackert teakgolv.
Tvättstugan har en egen utgång till trädgården och goda förvaringsmöjligheter. Här har ni möjlighet till klädvård och fina arbetsytor.
Bostadens tre sovrum har alla fin golvyta som rymmer större sängar, skrivbord och klädförvaring genom garderober.

Här bor ni i ett välplanerat hus med tre bra sovrum, härlig sällskapsyta och trivsamt kök. Utemiljön är inbjudande och skapar möjlighet att förverkliga drömmar och idéer. Närheten till salta bad och medlemskapet i Södra Fjärskogens Badförening, som följer fastigheten, ger en lyx i vardagen. Med bil når ni Kungsbacka centrum med all service och tågstation på knappt 15 minuter.
Varmt välkomna att hitta hem till Horsekullevägen 11!

Visningar

Onsala - Fjordsidan, Kungsbacka

Horsekullevägen 11

Villa4 rok1101 130 m² tomt

Mäklare

Mäklare

AwardBadge
Årets Mäklarkedja 2024, 2025
Vinnare av Boneo Awards
banner

Tjänster

Bolån

Räkna på bolån för Horsekullevägen 11
nordeaAlltid personlig ränta på ditt bolånRäkna här
Jämför bolån från olika banker!
lanekollPersonlig hjälp hela vägen hem!Räkna direkt!
Bostaden du tittar på matchar med 281 personer i BoneoMatch™

Hur många vill köpa din bostad?

Vi matchar din bostad mot över 500 000 köpsugna personer som går på visningar just nu.

Loading...
Onsala - Fjordsidan, Kungsbacka

Horsekullevägen 11

Villa4 rok1101 130 m² tomt

Mäklare

Mäklare

AwardBadge
Årets Mäklarkedja 2024, 2025
Vinnare av Boneo Awards