linkedin pixel
Fullskärm
Fullskärm
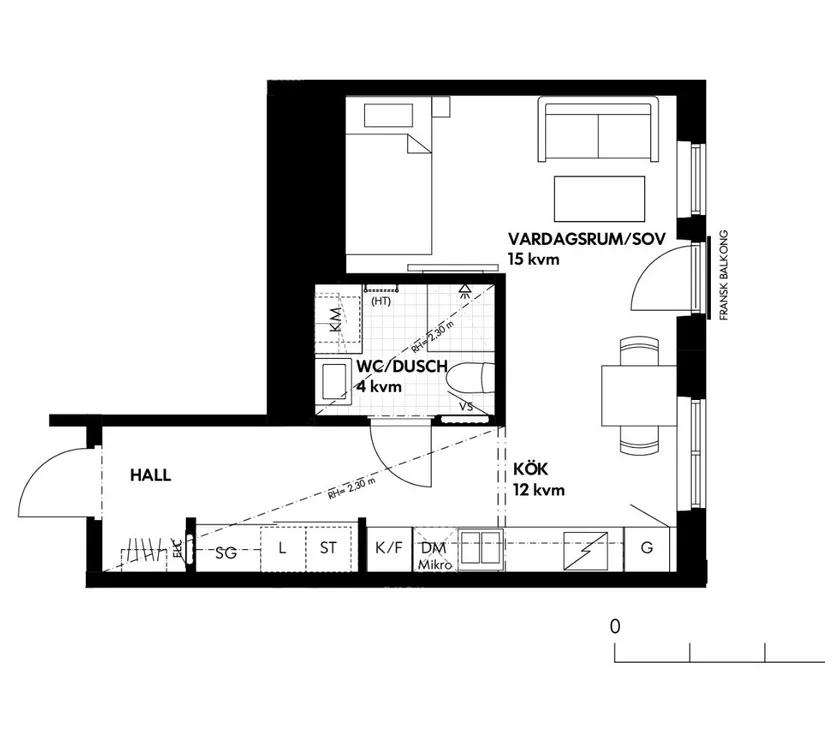
Lägenhet1 rok35

Fakta om bostaden

  • Pris2 350 000 kr
  • BoendetypLägenhet
  • Antal rum1 rok
  • Boyta35
  • UpplåtelseformBostadsrätt
  • Kvadratmeterpris (kr/m²) 67 143 kr/m²
  • Dagar på Boneo15 dagar
  • Våning 1 av 7
  • HissJa
  • Avgift till föreningen2 763 kr/mån

Beskrivning

Välkommen hem,
till Årstaskogs väg 14. Nyproducerad och smakfullt inredd 1 rok med fransk balkong i ett av områdets mest eftertraktade lägen. Våning 1 med högt läge ovan mark! Här bor du med närhet till både vatten, natur och goda kommunikationer.

Bostaden erbjuder en optimal planlösning där varje kvadratmeter nyttjas effektivt. Den smart utformade sovalkoven kan enkelt skärmas av och omvandlas till ett separat sovutrymme – perfekt för dig som önskar känslan av en mini 2:a.
Det stilrena och praktiska köket är fullt utrustat med moderna vitvaror, inklusive integrerad diskmaskin och mikro, vilket skapar en ren och exklusiv känsla. Det rymliga badrummet är helkaklat och utrustat med kombinerad tvättmaskin för maximal bekvämlighet i vardagen.
Lägenheten präglas av genomgående hög standard med fräscha materialval och en ljus, luftig atmosfär. Den franska balkongen bidrar med extra ljusinsläpp och en härlig kontakt med omgivningen.
Här bor du i en stabil förening som äger marken, vilket är en stor ekonomisk fördel.
Ett perfekt boende för dig som söker något modernt, funktionellt och stilrent – med möjlighet till flexibel planlösning!

Tillträde helt flexibelt!

Varmt välkommen att kontakta ansvarig mäklare - jessica.janze@lansfast.se / 0705 090 666

Visningar

Liljeholmen/Årstaberg, Stockholm

Årstaskogs väg 14

Lägenhet1 rok35

Mäklare

banner

Tjänster

Bolån

Räkna på bolån för Årstaskogs väg 14
nordeaAlltid personlig ränta på ditt bolånRäkna här
Jämför bolån från olika banker!
lanekollPersonlig hjälp hela vägen hem!Räkna direkt!
Bostaden du tittar på matchar med 1 103 personer i BoneoMatch™

Hur många vill köpa din bostad?

Vi matchar din bostad mot över 500 000 köpsugna personer som går på visningar just nu.

Loading...
Liljeholmen/Årstaberg, Stockholm

Årstaskogs väg 14

Lägenhet1 rok35

Mäklare