linkedin pixel
Tillbaka till sökresultatet
Fullskärm
Fullskärm
Tillbaka till sökresultatet
externalLinkIconAlla bilder
På G!
Först på Boneo
Lägenhet2 rok52

Fakta om bostaden

  • BoendetypLägenhet
  • Antal rum2 rok
  • Boyta52
  • UpplåtelseformBostadsrätt
  • Byggnadsår1922
  • Våning 0.5 av 6
  • HissJa
  • Avgift till föreningen2 164 kr/mån

Beskrivning

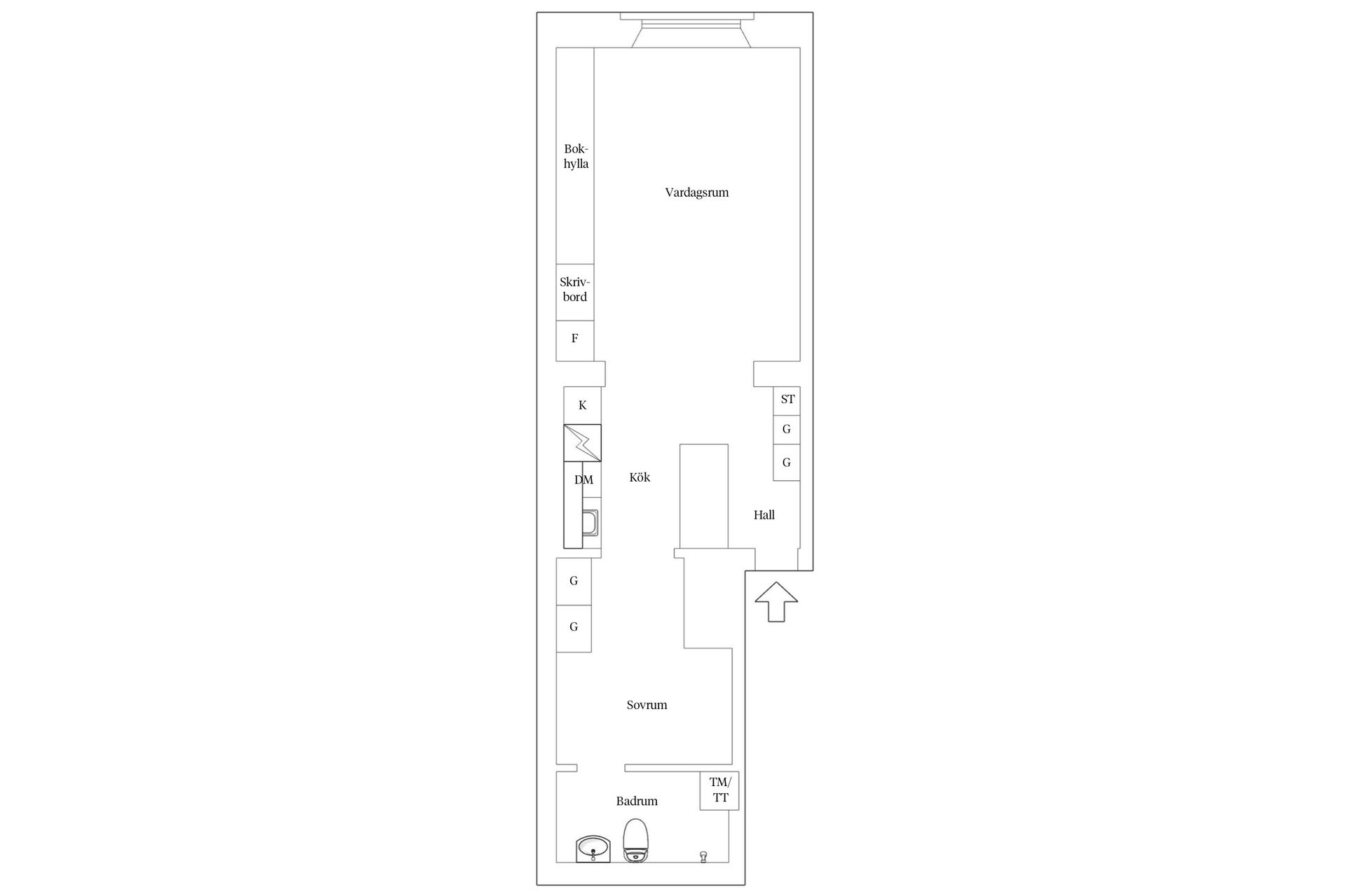
Varmt välkommen till denna smakfullt renoverade 2:a med exklusiv hotellkänsla på attraktiv adress! Här bor du i en ytterst välskött och skuldfri förening, med garage i huset, vinkällare med eget vinfack och en trevlig innergård med flera sittgrupper och orangeri. Denna vackra bostad med genomgående sober färgsättning bjuder på rymd och härligt ljusinsläpp genom stort bågformat fönster och en generös takhöjd över 3 m. Här finns fina detaljer såsom fiskbensparkett, listverk, stuckaturer, takrosetter och elegant platsbyggd bokhylla med integrerad arbetsplats och plats för tv. Vardagsrummet har också gott om plats för större soffgrupp och matsalsbord för trevligt socialt umgänge och skön kvällar hemma. Det stilrena köket har en delvis öppen planlösning mot vardagsrummet och går i samma sobra färgsättning. Här finns en trevlig köksö med både sittplatser och förvaring, den naturliga samlingsplatsen för en drink när du har gäster eller vill duka upp en härlig buffé. Köket bjuder även på vackra stenskivor i kalksten, full maskinell utrustning och förvaring upp till tak. Sovrummet med privat och rofyllt läge har god plats för dubbelsäng och förvaring i inbyggd garderob med skjutdörrar. Innanför sovrummet ligger det smakfulla badrummet i mjuk sandton med duschhörna med glasdörrar och fin nisch med belysning, handfat med kommod och tvättpelare med tvättmaskin och torktumlare för ett enkelt vardagsliv.

I Brf Kornetten 10 bor du tryggt med säkerhetsdörr i skuldfri förening på eftertraktad adress! Fastigheten är otroligt välskött med alla stora renoveringar bakom sig, och drygt 2 Mkr i kassan. I huset finns både garage, vinkällare där du har ditt eget vinfack, stor fullutrustad tvättstuga, och en underbar stenlagd innergård med både matgrupp, loungemöbler, barbord, gasolgrill och orangeri. På Skeppargatan 84 bor du med ett ypperligt läge och närhet till både stadspuls och natur. Fastigheten ligger ett stenkast från Karlaplan med sin fontän, och Fältöversten med butiker, Systembolag, restauranger, matvarubutiker och service. Även Tessinparkens grönska ligger nära och man har direkt tillgång till härliga promenad- och joggingstråk på både Djurgården såväl som Ladugårdsgärdet, samt flera gym och annan idrottsaktivitet. Utmärkta kommunikationer med T-bana och flera busslinjer. En kort promenad tar dig till Östermalmstorg, Stureplan och vidare till city.
På G!
Först på Boneo
Östermalm, Stockholm

Skeppargatan 84

Lägenhet2 rok52

Mäklare

Mäklare

AwardBadge
Årets Mäklarkedja 2024, 2025
Vinnare av Boneo Awards
banner

Tjänster

Bolån

Räkna på bolån för Skeppargatan 84
nordeaAlltid personlig ränta på ditt bolånRäkna här
Jämför bolån från olika banker!
lanekollPersonlig hjälp hela vägen hem!Räkna direkt!
Bostaden du tittar på matchar med 587 personer i BoneoMatch™

Hur många vill köpa din bostad?

Vi matchar din bostad mot över 500 000 köpsugna personer som går på visningar just nu.

Loading...
På G!
Först på Boneo
Östermalm, Stockholm

Skeppargatan 84

Lägenhet2 rok52

Mäklare

Mäklare

AwardBadge
Årets Mäklarkedja 2024, 2025
Vinnare av Boneo Awards