linkedin pixel
Tillbaka till sökresultatet
Fullskärm
Fullskärm
Tillbaka till sökresultatet
externalLinkIconAlla bilder
På G!
Först på Boneo
Kedjehus6 rok158 + 32332 m² tomt

Fakta om bostaden

  • Pris11 650 000 kr
  • BoendetypKedjehus
  • Antal rum6 rok
  • Boyta158
  • UpplåtelseformFriköpt
  • Biarea32
  • Tomtarea332 m²
  • Kvadratmeterpris (kr/m²) 73 734 kr/m²
  • Byggnadsår1970

Beskrivning

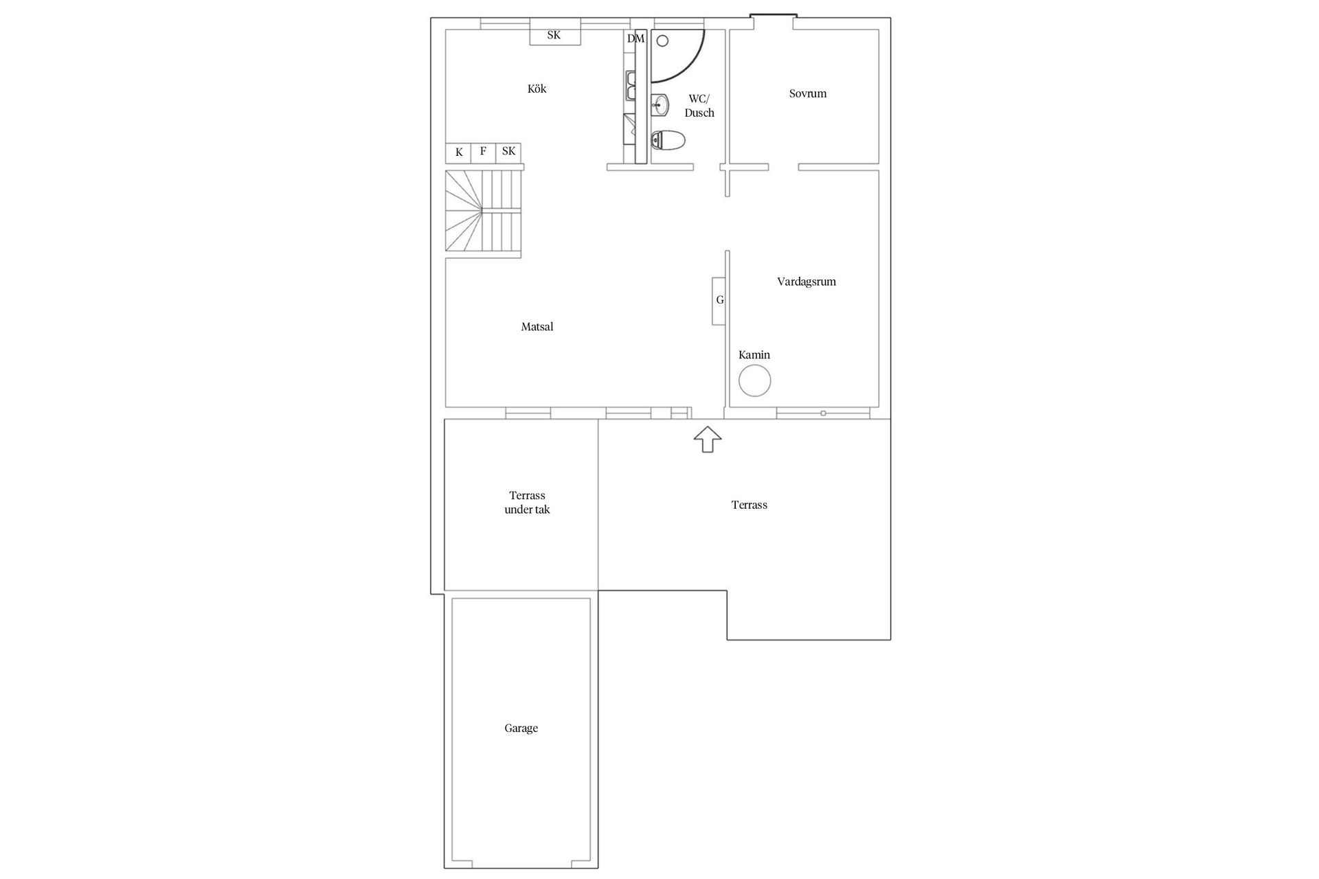
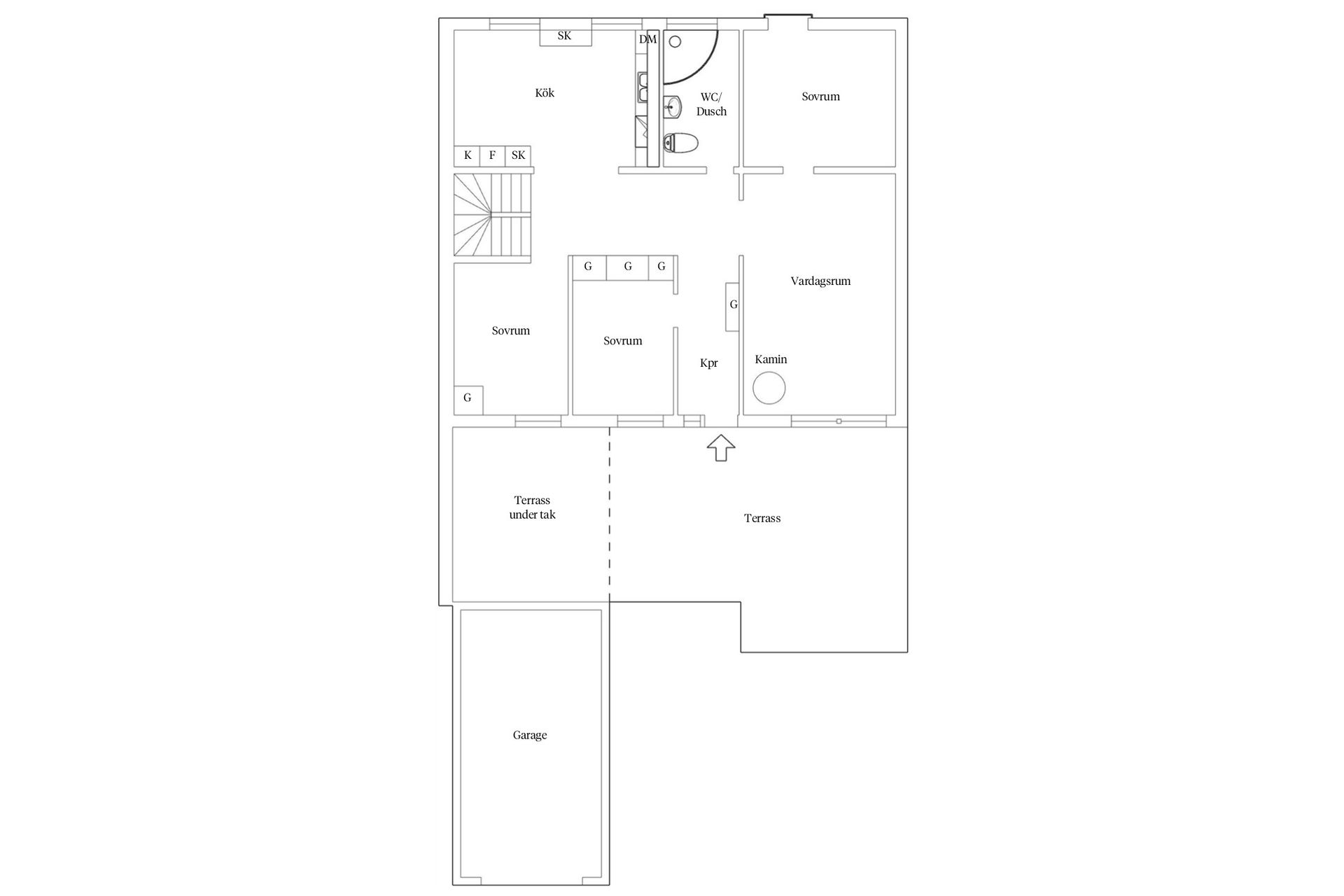
På lugn, barnvänlig återvändsgata ligger det här trivsamma och energieffektiva 70-talsradhuset, i två plan. Det första som möter besökaren är ett härligt ljusinsläpp, osedvanlig rymd och en totalyta som uppgår till hela 190 kvm. Generös fönstersättning vetter mot den barnvänliga trädgården och altanen som rymmer matbord, grill och stora sällskap. Den uppvuxna och plana trädgården, badar i sol från förmiddag till kväll, och för den som önskar avnjuta middagen i lä framåt vårkanten och ända in på sensommaren bjuder altanen in till långa sittningar. Golvet på entréplan består av ekparkett som förstärker det ljusa intrycket genom vardagsrummet och matsal, rymliga arbetsytor i köket för den som uppskattar att laga mat! Förvaringsmöjligheterna i det luftiga köket är ypperliga och det höga läget skapar en härlig prägel. I vardagsrummet med kamin finns ett stort fönsterparti och entrén leder till altanen. Det här planet erbjuder även ett sovrum med fransk balkong samt möjlighet till ytterligare två och badrum med hörnbadkar för extra vardagslyx. Ner för trappan nås plan två med två rymliga sovrum, allrum, förråd, stor klädkammare och ytterligare ett badrum. Här finns även en tvättstuga med grovingång från husets baksida. Det privata garaget erbjuder ytterligare förvaring med elbilsladdare. Sammanfattningsvis är huset optimalt planerat och har en grönskande trädgård - praktiskt och fint! Trygg vägg till förskola och skola samt nära kommunikationer är extra plus. Ett stenkast bort ligger även Lidingös kanske mest påkostade lekpark!

Vackra Lidingö välkomnar er till populärt och omtyckt område med närhet till grönska och natur - där allt tillhörande din moderna vardag nås på bekvämt promenadavstånd. Den lummiga omgivningen erbjuder lekpark, gräsmattor och gröna ytor för hela familjen att besöka kring vår och sommar. Både båthamn och bad råder längs Lidingös strandpromenader och vikar. Rudboda torg har en välsorterad matbutik, på tryggt avstånd finns även förskola och Rudboda skola. Kommunal kommunikation råder från busshållplats Grannkottevägen som tar dig till tunnelbanestation Ropsten tillhörande röda linjen på 13 minuter. Från Ropsten når du T-centralen, Stockholms mittpunkt på 8 minuter. För den bilburna i samband med öppnandet av Norra länken är det mycket enkelt att ta sig ut på det stora vägnätet.

Visningar

På G!
Först på Boneo
Rudboda, Lidingö

Svedjevägen 41

Kedjehus6 rok158 + 32332 m² tomt

Mäklare

Mäklare

AwardBadge
Årets Mäklarkedja 2024, 2025
Vinnare av Boneo Awards
banner

Tjänster

Bolån

Räkna på bolån för Svedjevägen 41
nordeaAlltid personlig ränta på ditt bolånRäkna här
Jämför bolån från olika banker!
lanekollPersonlig hjälp hela vägen hem!Räkna direkt!
Bostaden du tittar på matchar med 262 personer i BoneoMatch™

Hur många vill köpa din bostad?

Vi matchar din bostad mot över 500 000 köpsugna personer som går på visningar just nu.

Loading...
På G!
Först på Boneo
Rudboda, Lidingö

Svedjevägen 41

Kedjehus6 rok158 + 32332 m² tomt

Mäklare

Mäklare

AwardBadge
Årets Mäklarkedja 2024, 2025
Vinnare av Boneo Awards