linkedin pixel
Tillbaka till sökresultatet
Fullskärm
Fullskärm
Tillbaka till sökresultatet
externalLinkIconAlla bilder
På G!
Först på Boneo
Lägenhet6 rok171 + 30

Fakta om bostaden

  • BoendetypLägenhet
  • Antal rum6 rok
  • Boyta171
  • UpplåtelseformBostadsrätt
  • Biarea30
  • Byggnadsår1989
  • Våning 0
  • HissNej
  • Avgift till föreningen7 050 kr/mån

Beskrivning

Välkommen till ett trivsamt och välplanerat bostadsrättsparhus i attraktiva Kårsta, ett hem som erbjuder en perfekt kombination av bekvämlighet, rymd och villakänsla. Här bor du med bostadsrättens smidighet samtidigt som du får känslan av ett eget hus med generösa ytor både inne och ute.

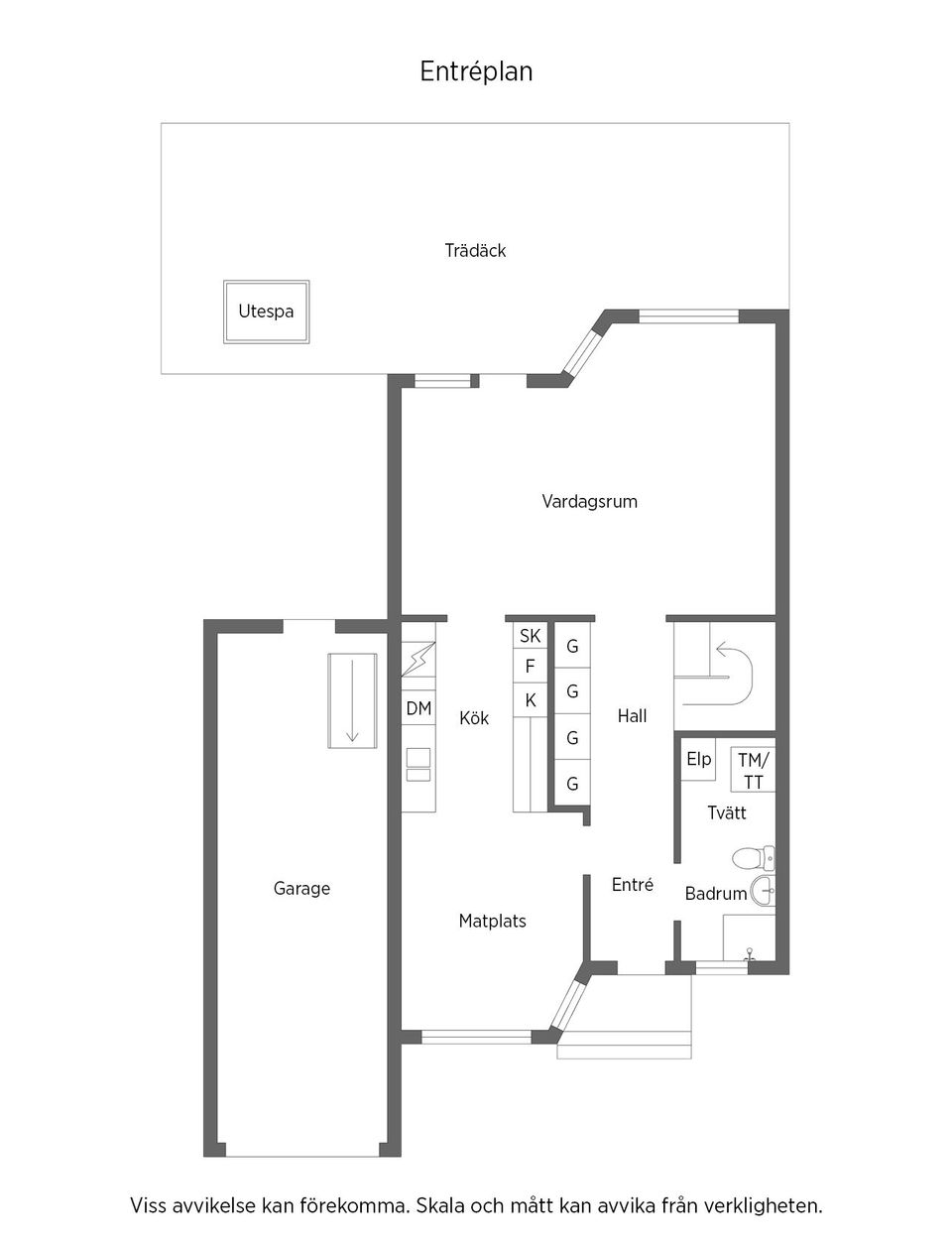
Redan i entrén möts du av en inbjudande hall med praktiska avhängningsmöjligheter och en planlösning som direkt ger ett fint första intryck. Här finns gott om plats för att skapa ordning och trivsel i vardagen.

På entréplanet finns ett rymligt badrum i kombination med tvättstuga, utrustat med toalett, handfat, badkar samt tvättmaskin och torktumlare, vilket gör vardagen både enkel och funktionell.

Köket är ljust och välplanerat med goda arbetsytor och bra förvaring. Här finns plats för matbord vid fönster som släpper in rikligt med ljus och skapar en trevlig plats för både vardagsmåltider och sociala stunder. Köket är utrustat med spishäll, ugn, fläkt, mikrovågsugn, diskmaskin samt kyl och frys i fullstorlek.

Vardagsrummet är generöst och luftigt med stora fönster som ger ett härligt ljusinsläpp. Den öppna planlösningen skapar en social och inbjudande känsla med gott om plats för både soffgrupp och umgänge. Härifrån kliver du rakt ut till en solig altan och en trivsam trädgård i eftertraktat söderläge, perfekt för långa sommardagar, grillkvällar och avkoppling.

En trappa upp väntar bostadens privata del med fem rymliga och lättmöblerade sovrum. Här finns gott om plats för hela familjen, hemmakontor eller gästrum, allt efter behov.

På övre plan finns även ett helkaklat badrum utrustat med toalett, handfat med kommod, spegelskåp samt dusch.

Ovanför garaget finns ytterligare ett rum som idag används som sovrum och som kompletteras av en stor tillhörande garderob, en perfekt lösning för dig som önskar extra utrymme och smart förvaring.

Till bostaden hör även ett stort, isolerat garage med plats för en bil.

Detta är ett hem som verkligen erbjuder det bästa av två världar med en genomtänkt planlösning, generösa ytor och ett lugnt läge i omtyckta Kårsta.

Visningar

På G!
Först på Boneo
Kårsta, Vallentuna

Grönlundsvägen 9

Lägenhet6 rok171 + 30

Mäklare

banner

Tjänster

Bolån

Räkna på bolån för GRÖNLUNDSVÄGEN 9
nordeaAlltid personlig ränta på ditt bolånRäkna här
Jämför bolån från olika banker!
lanekollPersonlig hjälp hela vägen hem!Räkna direkt!

Hur många vill köpa din bostad?

Med BoneoMatch™ ser du hur många som letar efter en liknande bostad i ditt område.

Läs mer
Loading...
På G!
Först på Boneo
Kårsta, Vallentuna

Grönlundsvägen 9

Lägenhet6 rok171 + 30

Mäklare