linkedin pixel
Tillbaka till sökresultatet
Fullskärm
Fullskärm
Tillbaka till sökresultatet
externalLinkIconAlla bilder
På G!
Först på Boneo
Villa8 rok205 + 603 510 m² tomt

Fakta om bostaden

  • Pris2 495 000 kr
  • BoendetypVilla
  • Antal rum8 rok
  • Boyta205
  • UpplåtelseformFriköpt
  • Biarea60
  • Tomtarea3 510 m²
  • Kvadratmeterpris (kr/m²) 12 171 kr/m²
  • Byggnadsår1940

Beskrivning

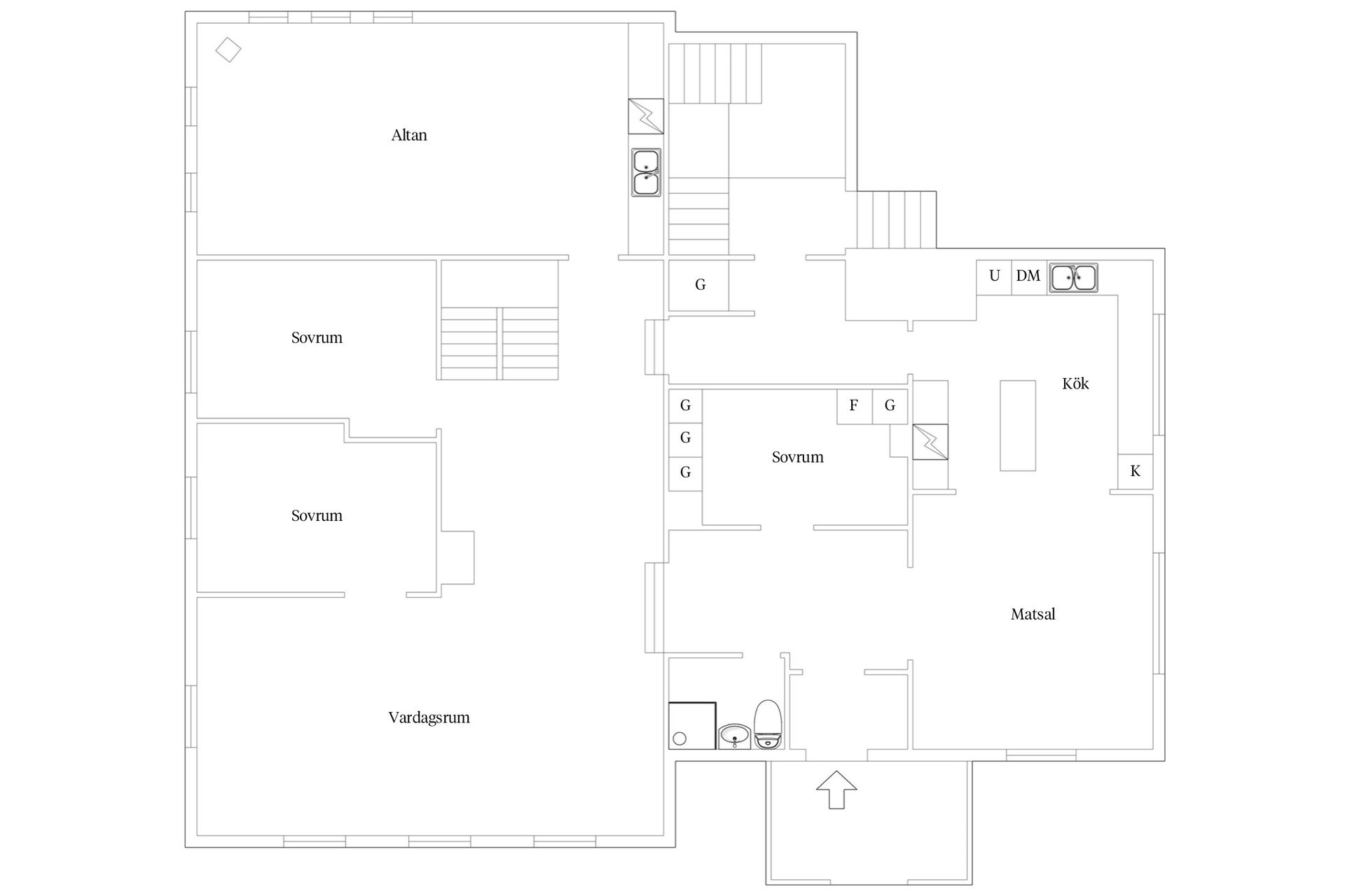
Här välkomnas ni till en trivsam villa med rötter från 1940-talet. Här möter hemmets äldre karaktär en planlösning som erbjuder generösa ytor. Boytan fördelar sig över entréplan och övre plan där de sociala ytorna samsas på entréplanet medan övervåningen erbjuder en mer privat sfär. Fastigheten är belägen i ett lugnt område med närhet till natur vilket ger en fin balans mellan ett stillsamt läge och närheten till nödvändig samhällsservice.

Köket bjuder på charmiga detaljer och goda arbetsytor och öppnar upp mot matsalen som blir en självklar plats för måltider och samvaro. Vardagsrummet erbjuder gott om plats för både soffgrupp och ytterligare möblering. Kakelugnen i rummet bidrar till en ombonad känsla och de stora fönsterpartierna ger ett fint ljusinsläpp. Här finns även flera sovrum samt badrum vilket ger en flexibel planlösning. En trappa upp möts ni av ett allrum som fungerar som en extra social yta tillsammans med två sovrum med snedtak som skapar en mysig och rofylld atmosfär. Här finns även ett badrum med både dusch och badkar. Källaren kompletterar huset med funktionella ytor i form av tvättstuga och goda förvaringsmöjligheter.

Utomhus väntar en stor trädgårdstomt med gräsytor på flera sidor av huset. Här finns gott om plats för lek, odling eller avkoppling och de generösa ytorna ger er möjlighet att forma utemiljön efter era behov. Uterummet blir en naturlig förlängning av bostaden och skapar en inbjudande plats för umgänge under stora delar av året. Med sina generösa ytor finns här utrymme för både matgrupp och loungemöbler, och de skjutbara glaspartierna mot trädgården suddar ut gränsen mellan inne och ute. Här kan ni följa årstidernas skiftningar på nära håll och skapa en trivsam plats för både vardag och sociala tillfällen. Till huset hör även en uppfart med plats för flera fordon.

Rottne är ett trivsamt och familjevänligt samhälle beläget cirka 20 minuter norr om Växjö. Här ni bor med närhet till både natur och vardagsservice. Orten är vackert placerad mellan sjöarna Innaren och Sörabysjön. Här bor ni i en lugn miljö med en tydlig småstadskaraktär där bebyggelsen till stor del består av villor. Samtidigt finns ett bra utbud av service som underlättar vardagen, med bland annat livsmedelsbutik, vårdcentral, skola och förskola inom orten. Rottne erbjuder även ett aktivt föreningsliv och goda möjligheter till fritidsaktiviteter. För den som pendlar är läget fördelaktigt med smidig väg till Växjö och dess bredare utbud av arbete, handel och nöjen.
På G!
Först på Boneo
Rottne, Växjö

Kungsvägen 4

Villa8 rok205 + 603 510 m² tomt

Mäklare

Mäklare

AwardBadge
Årets Mäklarkedja 2024, 2025
Vinnare av Boneo Awards
banner

Tjänster

Bolån

Räkna på bolån för Kungsvägen 4
nordeaAlltid personlig ränta på ditt bolånRäkna här
Jämför bolån från olika banker!
lanekollPersonlig hjälp hela vägen hem!Räkna direkt!

Hur många vill köpa din bostad?

Med BoneoMatch™ ser du hur många som letar efter en liknande bostad i ditt område.

Läs mer
Loading...
På G!
Först på Boneo
Rottne, Växjö

Kungsvägen 4

Villa8 rok205 + 603 510 m² tomt

Mäklare

Mäklare

AwardBadge
Årets Mäklarkedja 2024, 2025
Vinnare av Boneo Awards