linkedin pixel
Fullskärm
Fullskärm
externalLinkIconAlla bilder
På G!
Först på Boneo
Lägenhet3 rok84

Fakta om bostaden

  • Pris5 100 000 kr
  • BoendetypLägenhet
  • Antal rum3 rok
  • Boyta84
  • UpplåtelseformBostadsrätt
  • Kvadratmeterpris (kr/m²) 60 714 kr/m²
  • Byggnadsår2020
  • Våning 7 av 8
  • HissJa
  • Avgift till föreningen4 114 kr/mån

Beskrivning

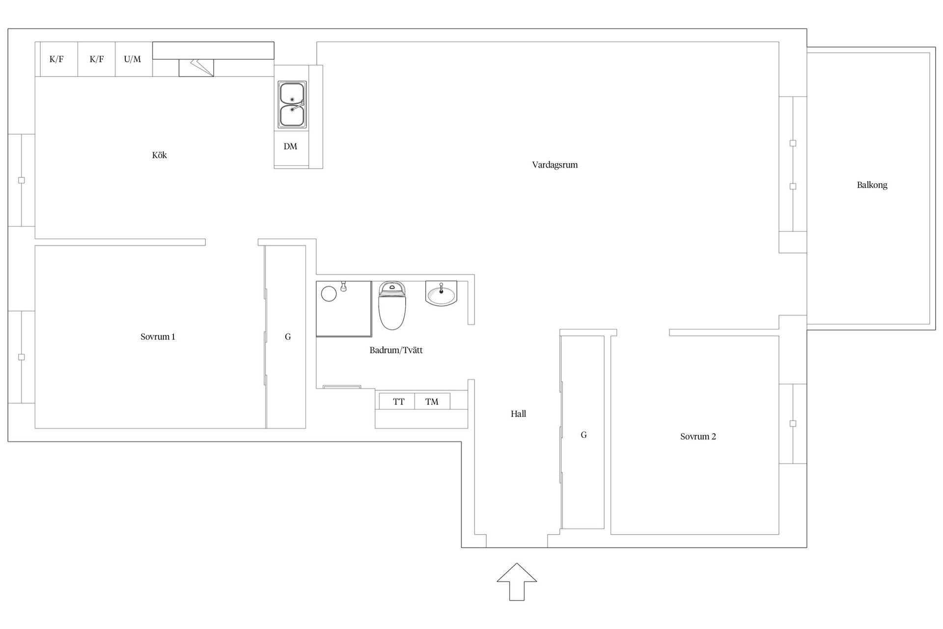
Välkommen till denna unika och större trea med stora härliga fönsterpartier i två väderstreck och med en slående utsikt. En vacker och välplanerad våning om totalt 84 kvm. Bostaden erbjuder en gedigen och insynsskyddad balkong i rakt söderläge. Stilrent kök från Vedum möter vardagsrummet i en öppen planlösning vilket erbjuder flera olika möbleringsalternativ. Bostaden präglas av väl genomtänkta inredningsval i sober färgskala och ljus parkett. Från vardagsrummet tar du dig ut på den gedigna balkongen som skapar ett extra rum att umgås och njuta i. Två sovrum där även ett passar bra till kontor eller gästrum. Förvaring som är genomgående för hela bostaden. Ett optimalt badrum med egen tvättstation. Med ett läge högt upp i huset erbjuds en slående utsikt över takåsarna och grönskan. Denna moderna bostad är perfekt för er som drömmer om allt det bekväma i ett bubblande område med puls!

Här bor ni med en härlig känsla att vara i pulsen. Ni får 150 meter till Willys eller ICA Maxi Göteborg som är öppet alla dagar 6-23. Innerstans kontor, butiker och högskolor ligger på cykelavstånd, spårvagnshållplatsen ligger utanför porten där linje 12 och 4 tar dig till City på bara några minuter. Till Landvetter kör flygbussen på ca 20 minuter från Korsvägen. Detta kvalitativa boende erbjuder alla tänkbara bekvämligheter med påkostade och väl genomtänkta materialval från golv till tak.

Välkomna med din intresseanmälan till ansvarig mäklare!

Visningar

På G!
Först på Boneo
Johanneberg - Almedal, Göteborg

Ebbe Lieberathsgatan 14A

Lägenhet3 rok84

Mäklare

Mäklare

AwardBadge
Årets Mäklarkontor 2024Årets Mäklarkedja 2024, 2025
Vinnare av Boneo Awards
banner

Tjänster

Bolån

Räkna på bolån för Ebbe Lieberathsgatan 14A
nordeaAlltid personlig ränta på ditt bolånRäkna här
Jämför bolån från olika banker!
lanekollPersonlig hjälp hela vägen hem!Räkna direkt!
Bostaden du tittar på matchar med 2 482 personer i BoneoMatch™

Hur många vill köpa din bostad?

Vi matchar din bostad mot över 500 000 köpsugna personer som går på visningar just nu.

Loading...
På G!
Först på Boneo
Johanneberg - Almedal, Göteborg

Ebbe Lieberathsgatan 14A

Lägenhet3 rok84

Mäklare

Mäklare

AwardBadge
Årets Mäklarkontor 2024Årets Mäklarkedja 2024, 2025
Vinnare av Boneo Awards