linkedin pixel
Fullskärm
Fullskärm
externalLinkIconAlla bilder
På G!
Först på Boneo
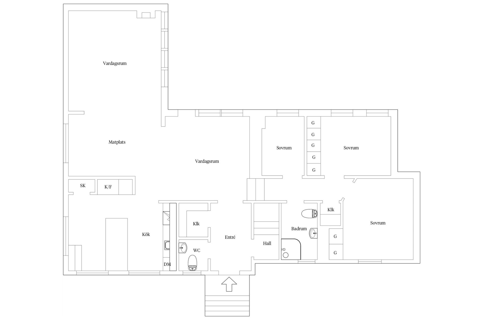
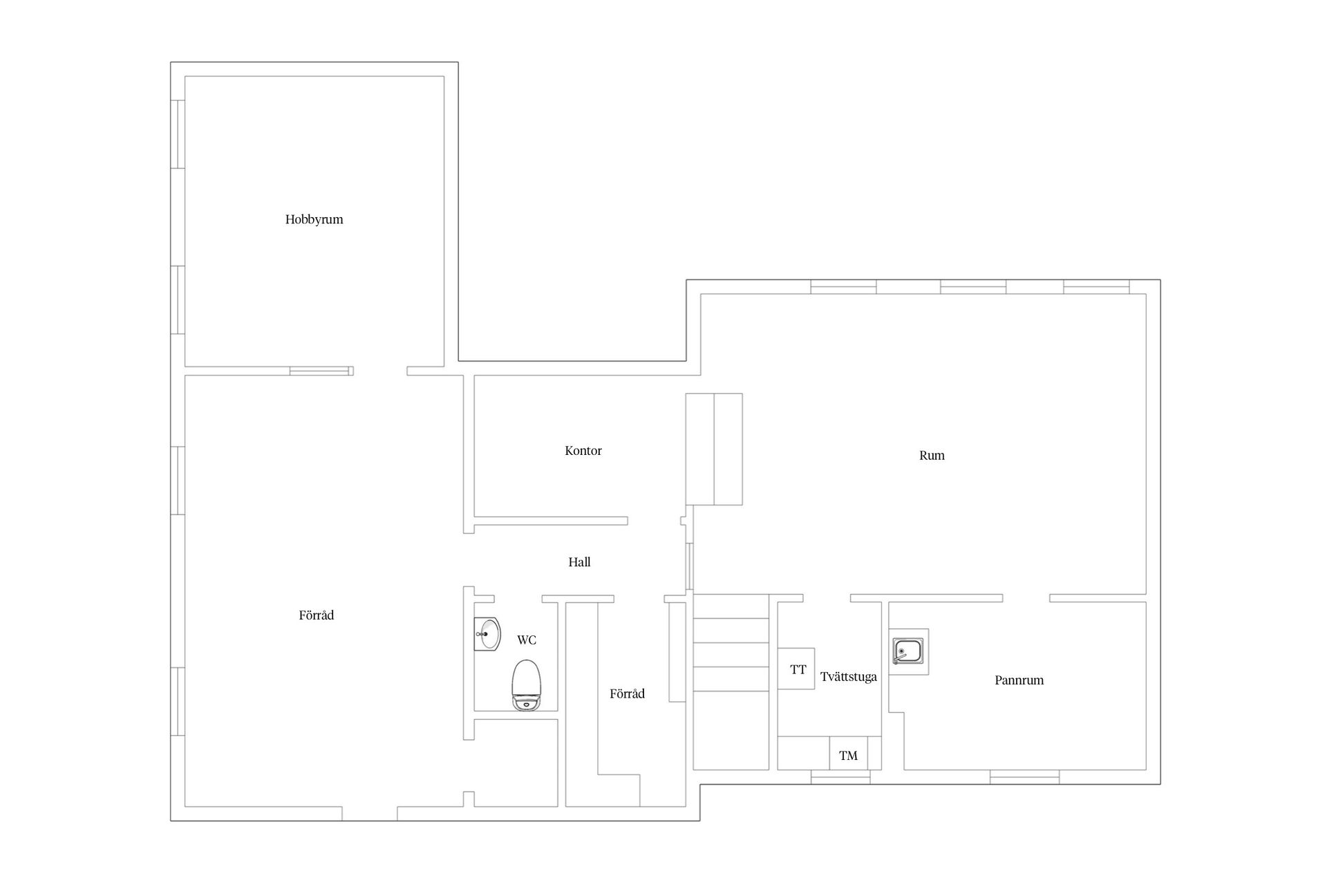
Villa6 rok122 + 1221 000 m² tomt

Fakta om bostaden

  • BoendetypVilla
  • Antal rum6 rok
  • Boyta122
  • UpplåtelseformFriköpt
  • Biarea122
  • Tomtarea1 000 m²
  • Byggnadsår1964

Beskrivning

Välkommen till denna välplanerade och rymliga enplansvilla med källare, med en totalyta om hela 244 kvm – ett hem som kombinerar generösa ytor, genomtänkta renoveringar och en fantastisk trädgård i bästa söderläge.

Invändigt möts du av ett hem som genomgått omfattande renoveringar med fokus på kvalitet, funktion och modern komfort. Samtliga ytskikt har förnyats där väggar och tak idag består av gips, vilket ger ett stilrent uttryck och goda möjligheter för upphängning utan specialfästen. Nya innerdörrar och karmar bidrar till en enhetlig och modern känsla.

Det nyrenoverade köket från 2025 erbjuder både stil och funktion, med uppdaterade installationer såsom nya vattenledningar, avlopp och förbättrad ventilation med brandsäker och isolerad skorsten. I anslutning till köket finns stora och inbjudande sällskapsytor som bjuder in till både vardagsliv och sociala tillställningar. Vardagsrummet har nyligen (2026) målats och uppdaterats, vilket ytterligare förstärker hemmets fräscha och trivsamma karaktär.

Planlösningen är mycket genomtänkt med flera rymliga sovrum samlade i en mer privat del av huset. Spotlights i korridoren skapar en modern och behaglig atmosfär, och smarta detaljer såsom förberedda eluttag i garderober visar på omtanke i planeringen. Förvaringsmöjligheterna är generösa genom hela bostaden.

Källarplanet har genomgått en omfattande uppgradering där allt biologiskt material sanerats och utrymmena utvecklats till både gym och praktiska förvaringsytor med Elfa-system. Här finns även god potential att vidareutveckla ytorna, då dräneringen utförts extra djupt för att möjliggöra installation av golvvärme utan att kompromissa med takhöjden.

De tekniska förbättringarna är många och gedigna. Under åren 2023–2026 har huset dränerats med tilläggsisolering, avloppssystemet har bytts ut hela vägen till tomtgräns och dag- samt spillvatten har separerats enligt framtida krav. All el i huset är omdragen med ny elcentral placerad enligt dagens standard, och smart styrning via Plejd finns installerad i stora delar av bostaden. El har även dragits upp till vinden, och elbilsladdare har installerats.

Även tidigare ägare har bidragit till husets goda skick, bland annat genom ett helrenoverat badrum från 2022.

Utomhus väntar en stor och plan trädgård om cirka 1000 kvm i soligt söderläge. Här erbjuds en insynsskyddad oas – en riktig villadröm för odling, lek och umgänge. Den generösa tomten ger gott om plats för både barnens aktiviteter och sociala tillställningar. På tomten finns även en charmig jordkällare som sätter extra karaktär och erbjuder praktisk förvaring.

Huset är beläget i populära Hildedal – en lugn och familjevänlig villaoas med närhet till allt man kan önska. Här bor du med gångavstånd till skolor, förskolor, butiker och torg samt goda bussförbindelser som tar dig smidigt in till centrala Göteborg. För den som uppskattar natur finns både Slätta damm och Hisingsparken runt knuten, med fina promenadstråk, grönområden och rekreationsmöjligheter. Precis utanför huset finns dessutom en lekplats – perfekt för barnfamiljen.

Detta är ett hem där stora investeringar redan är gjorda, med en stabil grund för framtiden och möjligheter att sätta sin egen prägel.

Välkommen att upptäcka ett hem med både hjärta och kvalitet!

Visningar

På G!
Först på Boneo
Centrala Hisingen, Göteborg

Solslättsvägen 11

Villa6 rok122 + 1221 000 m² tomt

Mäklare

Mäklare

AwardBadge
Årets Mäklarkedja 2024, 2025
Vinnare av Boneo Awards
banner

Tjänster

Bolån

Räkna på bolån för Solslättsvägen 11
nordeaAlltid personlig ränta på ditt bolånRäkna här
Jämför bolån från olika banker!
lanekollPersonlig hjälp hela vägen hem!Räkna direkt!
Bostaden du tittar på matchar med 1 069 personer i BoneoMatch™

Hur många vill köpa din bostad?

Vi matchar din bostad mot över 500 000 köpsugna personer som går på visningar just nu.

Loading...
På G!
Först på Boneo
Centrala Hisingen, Göteborg

Solslättsvägen 11

Villa6 rok122 + 1221 000 m² tomt

Mäklare

Mäklare

AwardBadge
Årets Mäklarkedja 2024, 2025
Vinnare av Boneo Awards