linkedin pixel
Tillbaka till sökresultatet
Fullskärm
Fullskärm
Tillbaka till sökresultatet
externalLinkIconAlla bilder
Villa6 rok152 + 401 098 m² tomt

Fakta om bostaden

  • Pris4 295 000 kr
  • BoendetypVilla
  • Antal rum6 rok
  • Boyta152
  • UpplåtelseformFriköpt
  • Biarea40
  • Tomtarea1 098 m²
  • Kvadratmeterpris (kr/m²) 28 257 kr/m²
  • Byggnadsår1973
  • Dagar på Boneo1 dag

Beskrivning

Renoverat & rymligt

Välkommen till omtyckta Grevie – här, på ett högt och skyddat läge med en glimt av havet i fjärran, hittar du denna rymliga och totalrenoverade familjevilla i ett plan, perfekt för dig som söker ett modernt hem i en trygg och barnvänlig miljö. Grevie är den lilla byn där det är lugnt och familjärt tempo och naturen är bara ett stenkast bort, samtidigt som du har livsmedelsbutik, skola, vårdcentral, bussförbindelser och service inom bekvämt avstånd.

Villan har invändigt genomgått en total förvandling mellan 2024–2026. Här är allt renoverat och utfört med stor omsorg: nya innerväggar, elinstallationer, samtliga ytskikt, kök och badrum samt helt nya och oanvända vitvaror. Även en inbjudande bastu för extra vardagslyx.
En del fönster och ytterdörrar är original, men i övrigt råder här ett absolut nyskick – ingen har bott i huset sedan renoveringen påbörjades.

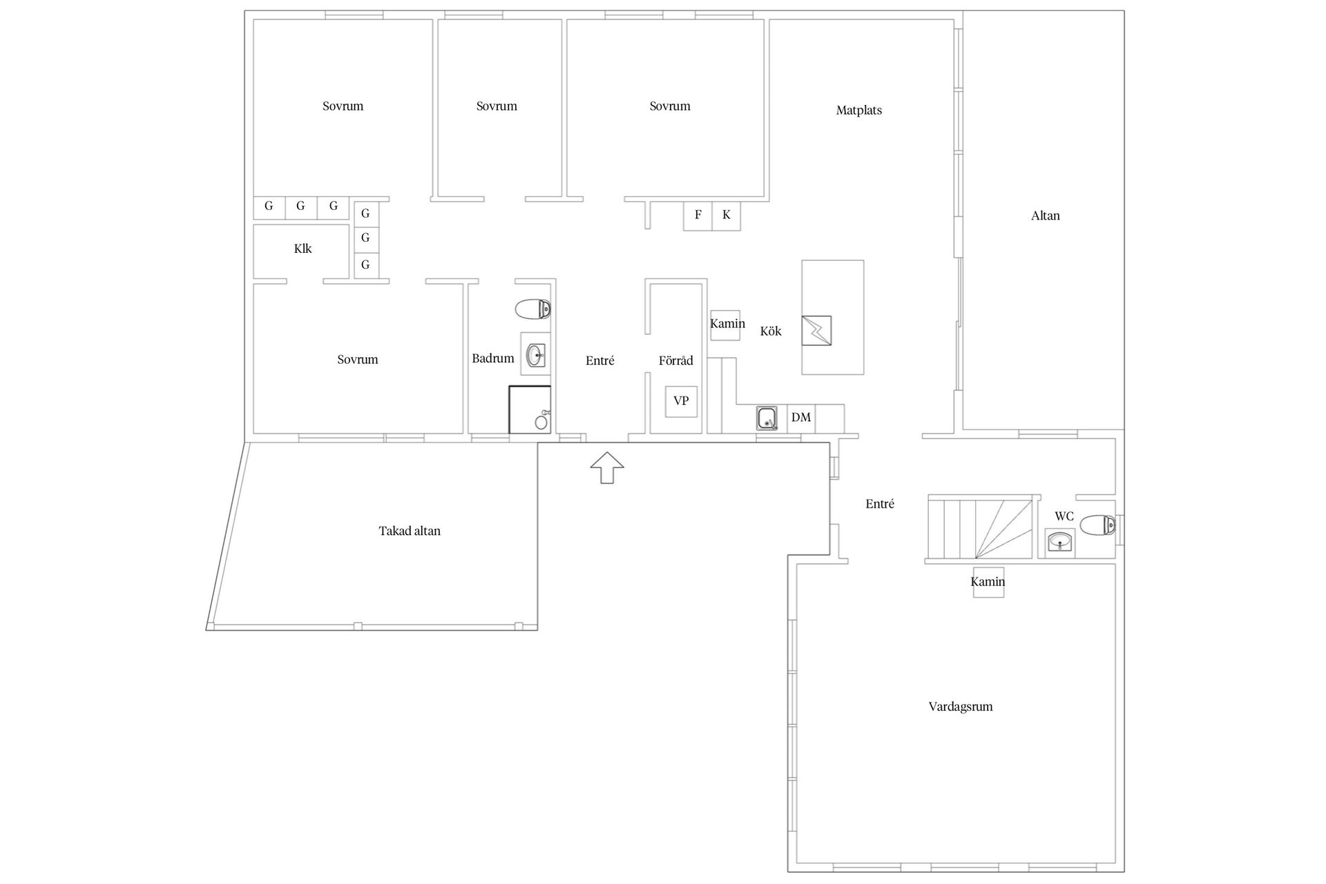
Planlösningen i ett plan skapar en lättillgänglig och trivsam bostad med generösa sociala ytor och bra fördelning mellan gemensamhetsytor och privata rum. Här finns även en vindsvåning som kan inredas.

Den väl tilltagna, lite kuperade tomten gränsar till ett stort grönområde på baksidan och här finns natur och vackra vandringsleder precis runt hörnet.

Välkomna till den här trivsamma villan på den lugnaste gatan - ett hem att växa i, leva i och njuta av!

Visningar

Grevie, Båstad

Ljungvägen 20

Villa6 rok152 + 401 098 m² tomt

Mäklare

Mäklare

AwardBadge
Årets Mäklarkedja 2024, 2025
Vinnare av Boneo Awards
banner

Tjänster

Bolån

Räkna på bolån för Ljungvägen 20
nordeaAlltid personlig ränta på ditt bolånRäkna här
Jämför bolån från olika banker!
lanekollPersonlig hjälp hela vägen hem!Räkna direkt!
Bostaden du tittar på matchar med 237 personer i BoneoMatch™

Hur många vill köpa din bostad?

Vi matchar din bostad mot över 500 000 köpsugna personer som går på visningar just nu.

Loading...
Grevie, Båstad

Ljungvägen 20

Villa6 rok152 + 401 098 m² tomt

Mäklare

Mäklare

AwardBadge
Årets Mäklarkedja 2024, 2025
Vinnare av Boneo Awards