linkedin pixel
Tillbaka till sökresultatet
Fullskärm
Fullskärm
Tillbaka till sökresultatet
externalLinkIconAlla bilder
På G!
Först på Boneo
Lägenhet1 rok35

Fakta om bostaden

  • BoendetypLägenhet
  • Antal rum1 rok
  • Boyta35
  • UpplåtelseformBostadsrätt
  • Byggnadsår1929
  • Våning 3
  • HissJa
  • Avgift till föreningen2 638 kr/mån

Beskrivning

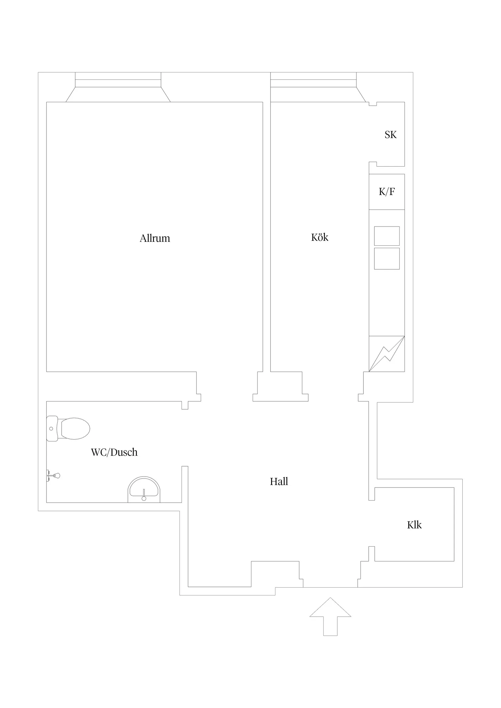
Välkommen till denna charmiga 20-talslägenhet om ett rum och kök, belägen på trevliga Ynglingagatan 5.

Lägenheten disponeras idag som en rymlig etta, men erbjuder eventuella möjligheter att byggas om till en tvåa för den som önskar.

Allrummet är generöst tilltaget med plats för både soffgrupp och säng. En liten öppning mellan kök och allrum skapar en social och härlig miljö. Här möts du av vacker mörkbrun fiskbensparkett och charmiga fönsterspröjs som ger rummet karaktär.

Köket är i äldre stil med vita luckor och träbänkskiva, utrustat med gasspis, skafferi samt kyl och frys. Här finns plats för ett matbord som rymmer flera personer. Det bruna trägolvet och fönstrets spröjs förstärker den genomgående charmiga känslan.

Hallen är rymlig och erbjuder goda förvaringsmöjligheter via en praktisk klädkammare samt plats för garderobsvägg och avhängning av ytterkläder.

Badrummet renoverades i samband med stambytet 2020 och håller en modern standard.

Bf Munin 37 u.p.a. är en äkta bostadsförening som bildades i samband med att fastigheten uppfördes 1929. Föreningen äger marken och har två lokaler som genererar löpande intäkter. Det är en välskött förening som genomfört de större renoveringarna, däribland stambytet 2020. Föreningen har en gemensam bastu och tvättstuga.

Här bor du i ett av Stockholms mest eftertraktade områden med gångavstånd till Handelshögskolan, Stockholms universitet, Karolinska Institutet och KTH. Området erbjuder ett brett utbud av restauranger, caféer, barer och shopping, samtidigt som Stureplan, Hötorget och Odenplan nås inom bekvämt promenadavstånd. Ett par hundra meter uppför gatan skymtar grönskan vid Vanadislunden och Hagaparken. Till Hagaparkens höga trädkronor är det bara en kort promenad och Brunnsvikens vågor som slår mot stränder och kajer, några hundra meter bort. Mycket goda kommunikationer finns endast några minuter från bostaden med tunnelbana och flera busslinjer.

Kontakta mig om du vill ha mer info samt komma på visning.
På G!
Först på Boneo
Vasastan, Stockholm

Ynglingagatan 5, 3 tr

Lägenhet1 rok35

Mäklare

Mäklare

AwardBadge
Årets Mäklarkedja 2024, 2025
Vinnare av Boneo Awards
banner

Tjänster

Bolån

Räkna på bolån för Ynglingagatan 5, 3 tr
nordeaAlltid personlig ränta på ditt bolånRäkna här
Jämför bolån från olika banker!
lanekollPersonlig hjälp hela vägen hem!Räkna direkt!
Bostaden du tittar på matchar med 1 601 personer i BoneoMatch™

Hur många vill köpa din bostad?

Vi matchar din bostad mot över 500 000 köpsugna personer som går på visningar just nu.

Loading...
På G!
Först på Boneo
Vasastan, Stockholm

Ynglingagatan 5, 3 tr

Lägenhet1 rok35

Mäklare

Mäklare

AwardBadge
Årets Mäklarkedja 2024, 2025
Vinnare av Boneo Awards