linkedin pixel
Fullskärm
Fullskärm
externalLinkIconAlla bilder
På G!
Först på Boneo
Villa4 rok125399 m² tomt

Fakta om bostaden

  • Pris7 495 000 kr
  • BoendetypVilla
  • Antal rum4 rok
  • Boyta125
  • UpplåtelseformFriköpt
  • Tomtarea399 m²
  • Kvadratmeterpris (kr/m²) 59 960 kr/m²
  • Byggnadsår2013

Beskrivning

Svårslagen havsvy

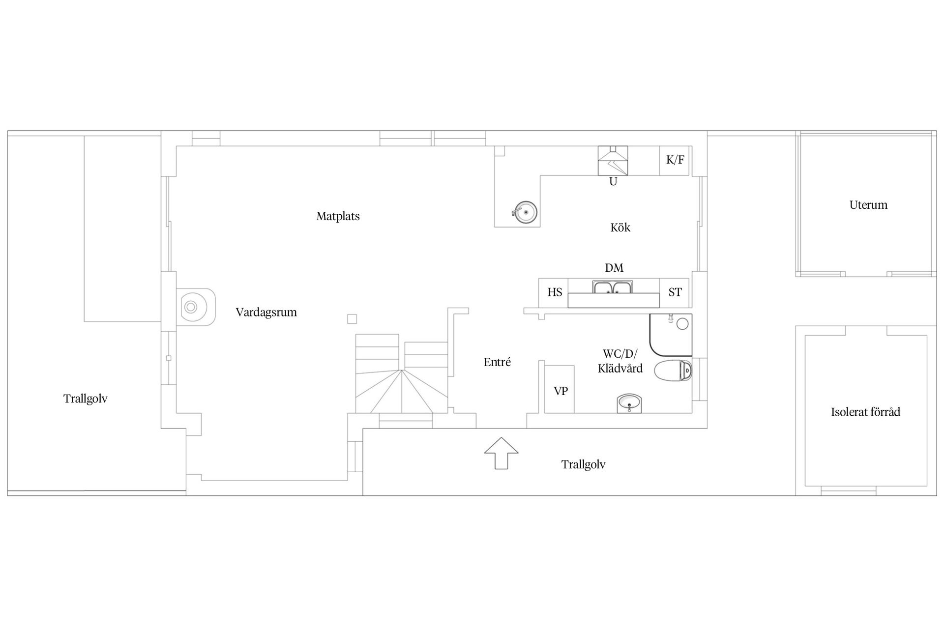
Längst upp på klipporna hittar du Källö-Knipplas mest magnifika läge. Detta moderna hus uppfördes 2013 och har en planlösning som ger mesta möjliga visuella kontakt med havet samt ett generöst ljusinsläpp från flera håll. Det finns dessutom fina möjligheter att anpassa antalet rum efter just dina behov.

På entréplan möts du av ett designat kök med exklusiva vitvaror och en öppen planlösning mellan kök och vardagsrum, med en naturlig plats för ett stort matsalsbord. Den strategiskt placerade kaminen skapar både värme och en behaglig atmosfär, även under årets kallare kvällar. På övre plan finns idag tre sovrum, där det rymliga master bedroom utgör kronan på verket. Härifrån nås balkongen – en perfekt plats för morgonkaffet medan du njuter av västerhavets ständigt skiftande skådespel. För den som önskar fler rum finns flera anpassningsmöjligheter. Vardagsrummet på entréplan kan göras om till ytterligare ett sovrum eller kontor, och master bedroom på övre plan kan delas av till två sovrum. Det finns även möjlighet att inreda vinden för att skapa ännu mer boyta.

Huset uppe på klippan präglas av en robust enkelhet och smälter vackert in i den omgivande naturen. Bebyggelsen i området är utformad för att harmoniera med öns traditionella arkitektur. Tanken med Fiskaregården är att erbjuda en stilmässigt enkel och naturlig boendeform med genomgående hög standard.

Källö-Knippla har en levande historia som sträcker sig tillbaka till slutet av 1700-talet, då ett fåtal familjer slog sig ner på ön för att leva av sillfisket. Här är naturen närvarande i varje steg du tar – långt från stress och jäkt, med ett påtagligt lugn och en känsla av avskildhet, men ändå bara en färjetur från storstadens bekvämligheter. På ön finns tennisbanor, fotbollsplan, boulebanor och minigolf. I den norra delen finns grönområden med promenadslingor och en härlig park. Badplatser för både barn och vuxna finns längs hela öns kustlinje.

Varmt välkomna till Fiskaregården 4
På G!
Först på Boneo
Källö - Knippla, Öckerö

Fiskaregården 4

Villa4 rok125399 m² tomt

Mäklare

Mäklare

AwardBadge
Årets Mäklarkedja 2024, 2025
Vinnare av Boneo Awards
banner

Tjänster

Bolån

Räkna på bolån för Fiskaregården 4
nordeaAlltid personlig ränta på ditt bolånRäkna här
Jämför bolån från olika banker!
lanekollPersonlig hjälp hela vägen hem!Räkna direkt!

Hur många vill köpa din bostad?

Med BoneoMatch™ ser du hur många som letar efter en liknande bostad i ditt område.

Läs mer
Loading...
På G!
Först på Boneo
Källö - Knippla, Öckerö

Fiskaregården 4

Villa4 rok125399 m² tomt

Mäklare

Mäklare

AwardBadge
Årets Mäklarkedja 2024, 2025
Vinnare av Boneo Awards