linkedin pixel
Fullskärm
Fullskärm
externalLinkIconAlla bilder
Lägenhet5 rok160

Fakta om bostaden

  • Pris9 700 000 kr
  • BoendetypLägenhet
  • Antal rum5 rok
  • Boyta160
  • UpplåtelseformBostadsrätt
  • Kvadratmeterpris (kr/m²) 60 625 kr/m²
  • Byggnadsår1924
  • Dagar på Boneo1 dag
  • Våning 1 av 5
  • HissJa
  • Avgift till föreningen5 753 kr/mån

Beskrivning

De höga, kuperade kvarteren i nedre Johanneberg är kända för sin grönska och mycket fridfulla atmosfär. Trots detta väntar folklivet på Götaplatsen och Avenyn bara några minuters promenad bort. Den höga Terrassgatan ligger som en skyddad oas, alldeles ovanför stadsbruset.

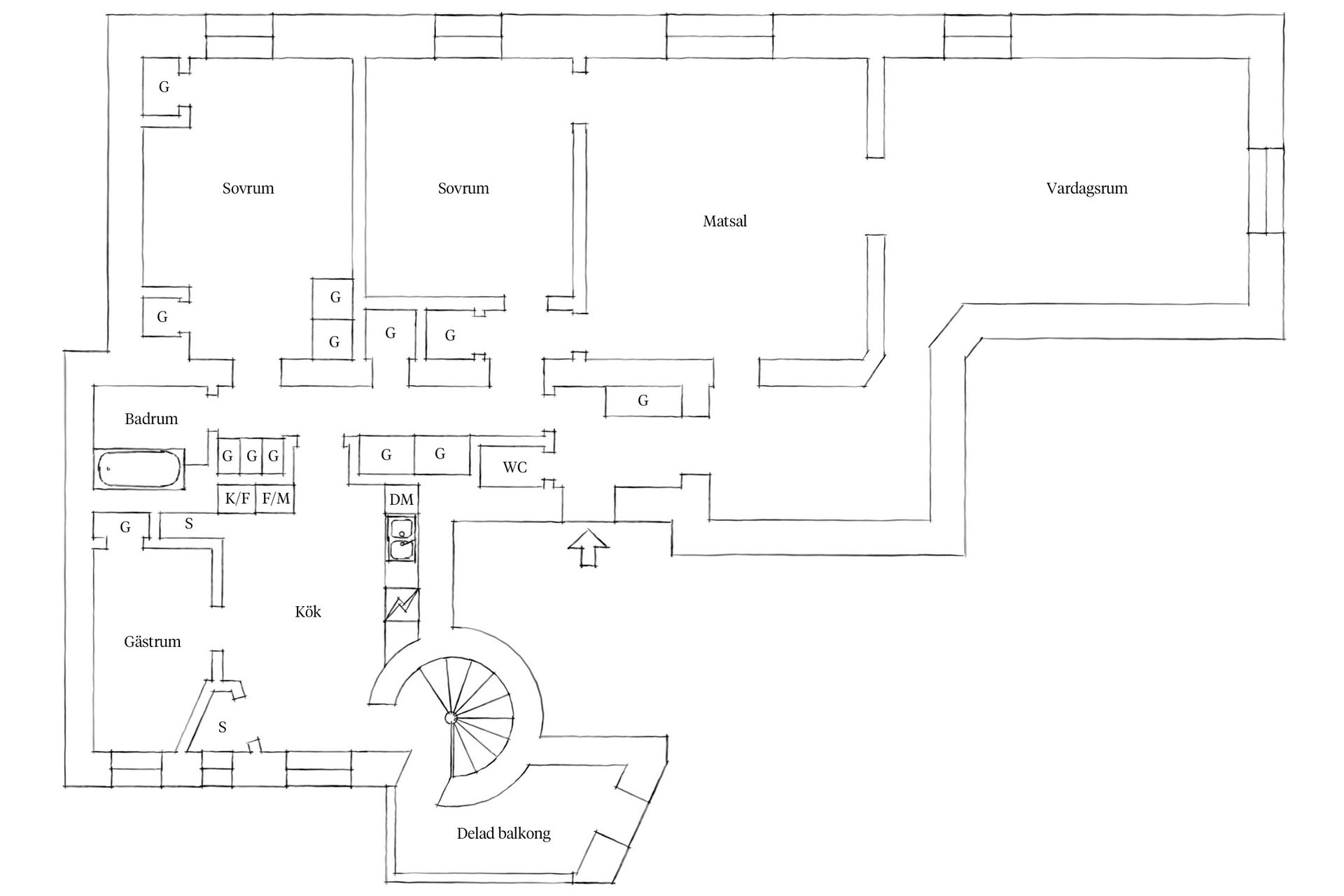
Det ståtliga tegelpalatset byggdes 1929 i stram nyklassicistisk stil med spröjsade fönster, smidesbalkonger och sparsam utsmyckning. Det mycket höga läget gör att även de lägre bostadsplanen har utsikt över sluttningen, grönytorna och grönskan ner mot Götaplatsen. Redan i den pampiga trapphallen möter tidsperiodens klassiska elegans med spröjsade ekdörrar, terrazzogolv, marmorerade kolonner, väggmålningar och spegeldörrar i mörk ek med detaljer i mässing. Uppe i den stora våningen breder ekparketterna i mestadels holländsk läggning ut sig under ansenlig takhöjd. Bevarade originaldetaljer från tiden understryker periodens ljusa och lätta elegans. Här finns djupa fönsternischer, spröjsade fönster, detaljskurna listverk, rader av spegeldörrar, djupa dörrfoder med sockelklossar, sparsmakade takrosetter, serveringsgång med spegeldörrar mm. I fil ut mot den grönskande utsikten ligger fyra ursprungliga salonger där ljuset faller vackert över fria ytor och tidlösa detaljer. Entréhallen förbinder till en klassisk förhall som i sin tur förbinder till matsal och sällskapsytor med ljus och utsikt i två väderstreck. Takhöjden och de stora rummens blonda atmosfären ger en härlig rumsvolym. I fil med dessa rum finns två stora sovrum och in mot den charmiga innergården ligger den L-formade våningens stiltrogna kök med bevarad jungfrukammare och utgång till delad balkong i söderläge. I våningens mitt löper en serveringsgång med bevarade originalskåp och ingång till badrum. Den trevligt asymmetriska planlösningen överraskar med vinklar och vrår samt djupa passager. Här finns både originalgarderober och platsbyggda förvaringslösningar i nygammal stil. Det centrala läget, i grönskande kvarter precis ovanför city, tillhör stadens mest eftertraktade. Den gamla bostadsrättsföreningen är stabil och välskött, precis som den praktfulla fastigheten i sig.

Visningar

Nedre Johanneberg, Göteborg

Terrassgatan 1

Lägenhet5 rok160

Mäklare

Mäklare

AwardBadge
Årets Mäklarkontor 2024Årets Mäklarkedja 2024, 2025
Vinnare av Boneo Awards
banner

Tjänster

Bolån

Räkna på bolån för Terrassgatan 1
nordeaAlltid personlig ränta på ditt bolånRäkna här
Jämför bolån från olika banker!
lanekollPersonlig hjälp hela vägen hem!Räkna direkt!
Bostaden du tittar på matchar med 320 personer i BoneoMatch™

Hur många vill köpa din bostad?

Vi matchar din bostad mot över 500 000 köpsugna personer som går på visningar just nu.

Loading...
Nedre Johanneberg, Göteborg

Terrassgatan 1

Lägenhet5 rok160

Mäklare

Mäklare

AwardBadge
Årets Mäklarkontor 2024Årets Mäklarkedja 2024, 2025
Vinnare av Boneo Awards