linkedin pixel
Tillbaka till sökresultatet
Fullskärm
Fullskärm
Tillbaka till sökresultatet
Lägenhet2 rok55

Fakta om bostaden

  • Pris6 595 000 kr
  • BoendetypLägenhet
  • Antal rum2 rok
  • Boyta55
  • UpplåtelseformBostadsrätt
  • Kvadratmeterpris (kr/m²) 119 909 kr/m²
  • Byggnadsår2020
  • Dagar på Boneo1 dag
  • Våning 5 av 18
  • HissJa
  • Avgift till föreningen4 584 kr/mån

Beskrivning

Ljusinsläpp!

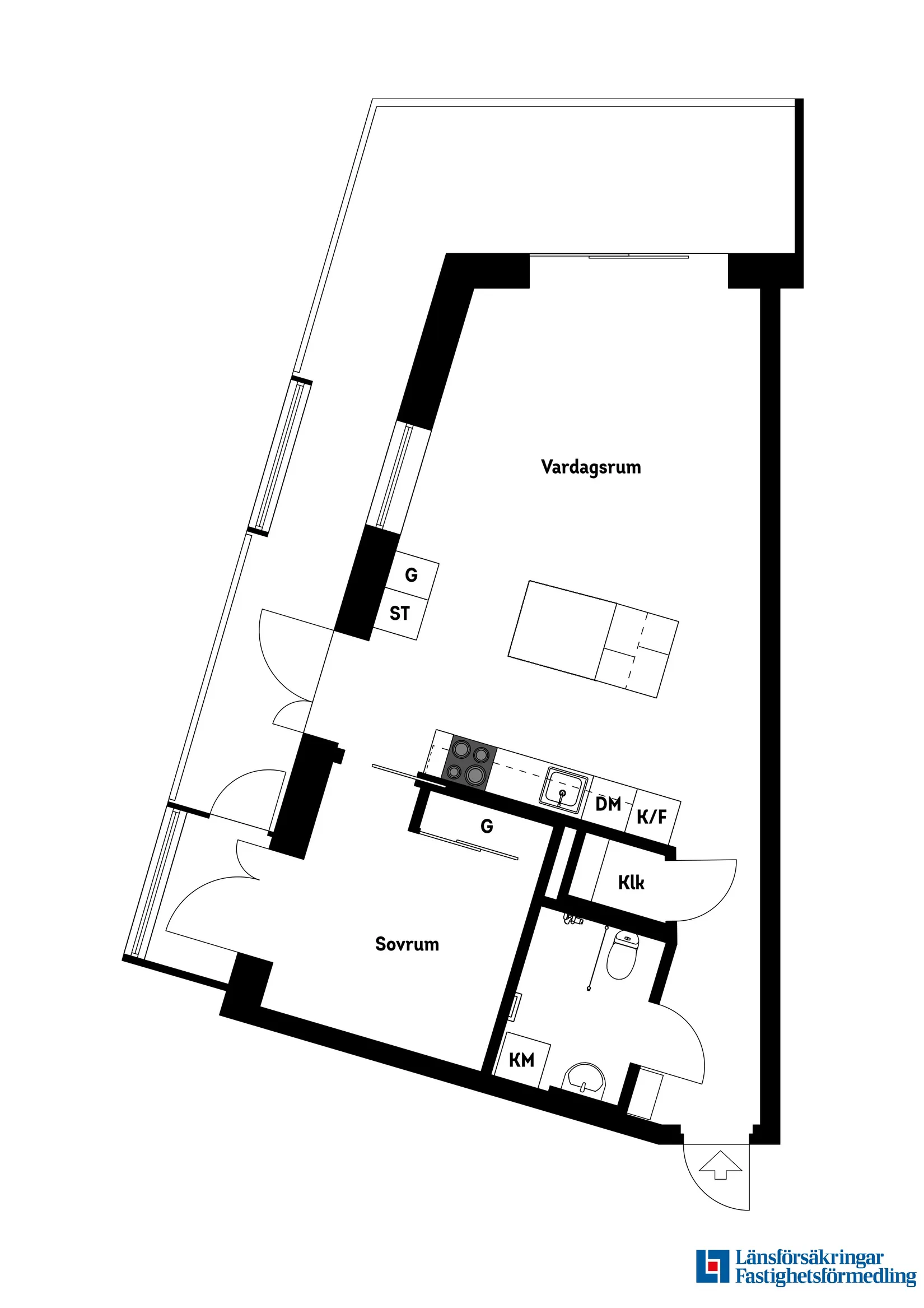
Välkommen till en stilfull och välplanerad bostad om 55 kvm, belägen på femte våningen i en modern fastighet med ett attraktivt läge på Södermalm. Här bor du högt och fritt med ett fantastiskt ljusinsläpp från stora fönsterpartier som låter dagsljuset strömma in och skapar en luftig, trivsam atmosfär i hela hemmet.

Planlösningen är genomtänkt in i minsta detalj med en öppen och social utformning som maximerar varje kvadratmeter. Generösa förvaringsmöjligheter finns i både garderober och smarta lösningar, samtidigt som sovrummet erbjuder gott om plats för dubbelsäng och tillhörande möblemang. Materialvalen är moderna och smakfulla, med en hög standard från byggåret 2020/2021 som dessutom förädlats ytterligare av nuvarande ägare.
Bostadens absoluta höjdpunkt är den imponerande balkongen som löper längs hela lägenheten – en naturlig förlängning av bostaden och ett extra rum under årets varmare månader. Här erbjuds ett skyddat läge utan insyn, där du kan njuta av både lugn och utsikt över grönskande Tantolunden samt vyer mot Zinkensdamms IP. En perfekt plats för både avkoppling och sociala tillställningar, från morgonkaffet till sena sommarkvällar.
Köket är fullt utrustat med goda arbetsytor och generös förvaring i både över- och underskåp samt diskmaskin. Det helkaklade badrummet håller hög standard och är utrustat med golvvärme, tvättmaskin och torktumlare i en smidig kombination. Vattenburen golvvärme i hela bostaden bidrar till en behaglig komfort året runt. Till lägenheten hör även ett praktiskt källarförråd.

Föreningen är stabil och välskött med många uppskattade faciliteter såsom gästlägenhet, garage med laddplatser, cykel- och barnvagnsrum, tvättstuga samt gemensamma ytor för de boende.
Här bor du med närhet till både stadspuls och natur, med utmärkta kommunikationer via tunnelbana vid Zinkensdamm tunnelbana och pendeltåg vid Södra station, samtidigt som grönområden och vatten finns precis utanför dörren.
Detta är ett hem som kombinerar modern komfort med ett eftertraktat läge, där ljuset, planlösningen och den generösa balkongen tillsammans skapar en bostad utöver det vanliga.

Här bor du i ett slående läge med närhet till det mesta, Zinkensdamms röda linje ligger endast 100 meter från bostaden och med en lättare promenad når du såväl Tantolunden, Årstaviken, Skinnarviksberget samt Mariatorget. I närområdet finner du således en uppsjö av natur, grönska, stadens härliga puls, kaféer, butiker och mataffärer, samt goda kommunikationer.
Ett perfekt läge mellan vackra Mariatorget, pulserande Hornstull och grönskande "Tanto"

- Skyddat optimalt läge med fri utsikt mot Tantolunden och grönområde
- Oslagbar terrass runt hela bostaden
- 88 bostadsrätter, 1 lokal - god ekonomi och trevligt kassaflöde
- Bostaden bokstavligt badar i kvällssol
- Nyproducerat
- optimalt läge med kommunikationer nära

Välkommen till Maria Skolgata 93, välkommen till ditt framtida boende!

Visningar

Zinkensdamm, Stockholm

Maria skolgata 93

Lägenhet2 rok55

Mäklare

banner

Tjänster

Bolån

Räkna på bolån för Maria skolgata 93
nordeaAlltid personlig ränta på ditt bolånRäkna här
Jämför bolån från olika banker!
lanekollPersonlig hjälp hela vägen hem!Räkna direkt!
Bostaden du tittar på matchar med 1 532 personer i BoneoMatch™

Hur många vill köpa din bostad?

Vi matchar din bostad mot över 500 000 köpsugna personer som går på visningar just nu.

Loading...
Zinkensdamm, Stockholm

Maria skolgata 93

Lägenhet2 rok55

Mäklare