linkedin pixel
Fullskärm
Fullskärm
externalLinkIconAlla bilder
På G!
Först på Boneo
Lägenhet2 rok66,50

Fakta om bostaden

  • Pris1 895 000 kr
  • BoendetypLägenhet
  • Antal rum2 rok
  • Boyta66,50
  • UpplåtelseformBostadsrätt
  • Kvadratmeterpris (kr/m²) 28 496 kr/m²
  • Byggnadsår1967
  • Våning 1 av 5
  • HissJa
  • Avgift till föreningen5 176 kr/mån

Beskrivning

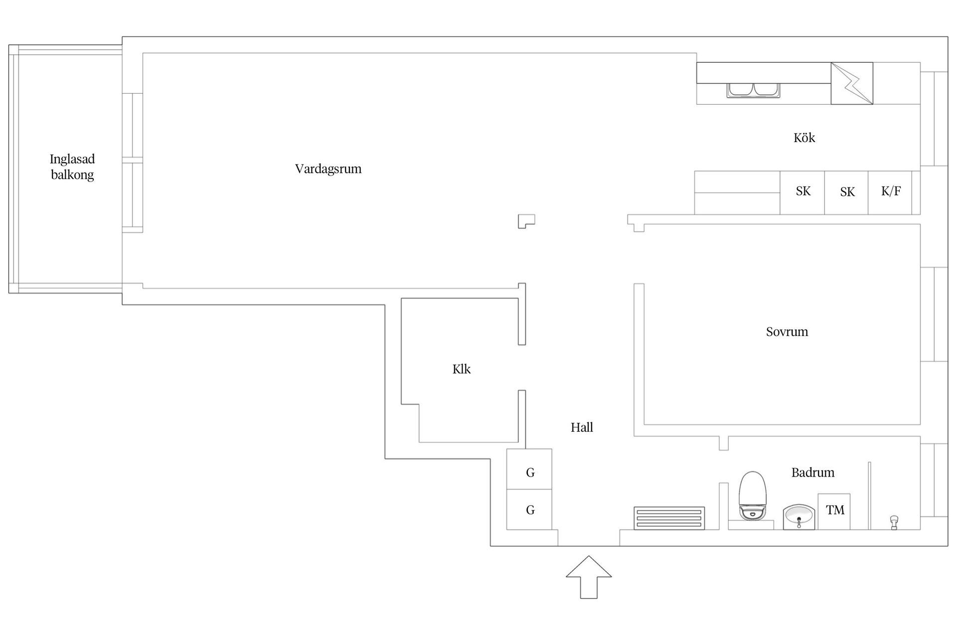
Välkommen till denna rymliga 2:a om 66,5 kvm i attraktiva HSB Brf Linjalen. Här bor du i en populär förening med god ekonomi, garageplats ingår i avgiften och en härlig inglasad balkong med eftermiddagssol. Vardagsrummet har vacker fiskbensparkett i original och stora fönsterpartier i västerläge som ger ett härligt ljusinsläpp. Kök och sovrum vetter mot föreningens lugna innergård i österläge. Badrummet är fräscht och helkaklat från stambytet 2012 och är utrustat med både dusch och tvättmaskin. En bostad med genomtänkt planlösning, generösa ytor och gott om förvaring – perfekt för dig som vill bo med öppna ytor och bevarad charm!

Här bor du i en mycket populär HSB-förening där bland annat bredband samt varmgarage ingår i avgiften. Föreningens tvättstuga nås även enkelt från entréplan. Ett stort plus som är unikt, är att det fortfarande finns ett fungerande sopnedkast med både kompost och övrigt avfall att slänga direkt utanför dörren via trapphuset. Med ett perfekt läge på centrala Hisingen har du nära till Ramberget och Keillers Park där du kan njuta av den fina utsikten eller ta härliga promenader. Samtidigt har du promenadavstånd till affärer, serviceinrättningar, vårdcentral/BVC, gym, Lundbybadet mm. samt goda kommunikationer som på bara några minuter tar dig in till centrala Göteborg. Detta boende bjuder på den perfekta balansen mellan natur och citypuls. Här har du även direkt närhet till förskolor, Rambergsskolan och Nya Lundbyskolan.

Visningar

På G!
Först på Boneo
Centrala Hisingen, Göteborg

Västra Stillestorpsgatan 11

Lägenhet2 rok66,50

Mäklare

Mäklare

AwardBadge
Årets Mäklarkedja 2024, 2025
Vinnare av Boneo Awards
banner

Tjänster

Bolån

Räkna på bolån för Västra Stillestorpsgatan 11
nordeaAlltid personlig ränta på ditt bolånRäkna här
Jämför bolån från olika banker!
lanekollPersonlig hjälp hela vägen hem!Räkna direkt!
Bostaden du tittar på matchar med 568 personer i BoneoMatch™

Hur många vill köpa din bostad?

Vi matchar din bostad mot över 500 000 köpsugna personer som går på visningar just nu.

Loading...
På G!
Först på Boneo
Centrala Hisingen, Göteborg

Västra Stillestorpsgatan 11

Lägenhet2 rok66,50

Mäklare

Mäklare

AwardBadge
Årets Mäklarkedja 2024, 2025
Vinnare av Boneo Awards