linkedin pixel
Fullskärm
Fullskärm
externalLinkIconAlla bilder
På G!
Först på Boneo
Lägenhet4 rok93

Fakta om bostaden

  • BoendetypLägenhet
  • Antal rum4 rok
  • Boyta93
  • UpplåtelseformBostadsrätt
  • Byggnadsår2020
  • Våning 3 av 12
  • HissJa
  • Avgift till föreningen5 793 kr/mån

Beskrivning

Välkommen till Kanalgatan 19 – en ljus och välplanerad bostad med generösa ytor och stora möjligheter, mitt i hjärtat av Kristianstad.

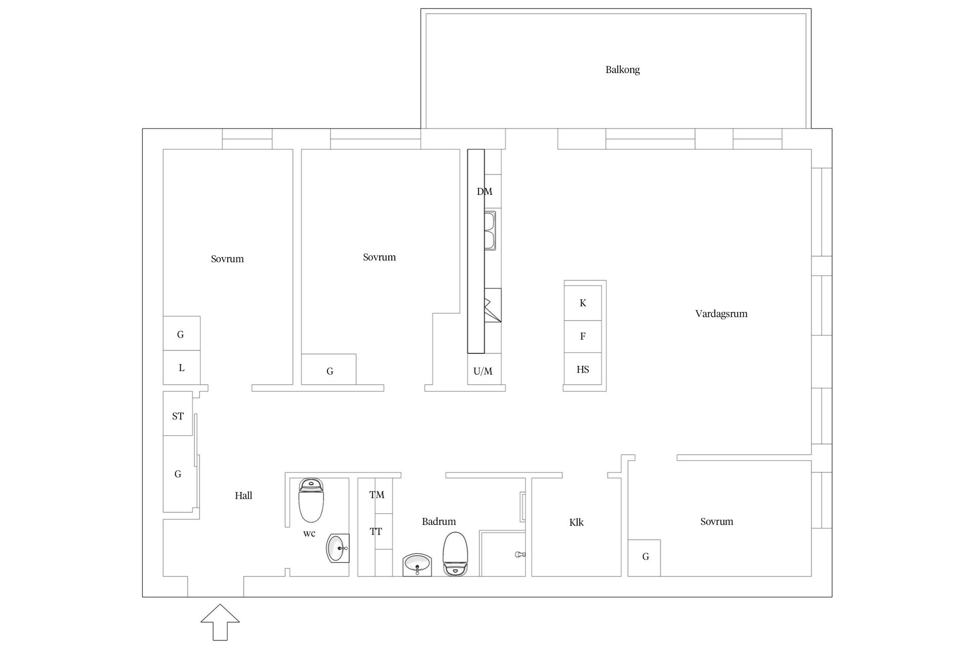
Redan i entrén möts du av en rymlig och inbjudande hall med goda avhängningsmöjligheter samt flera praktiska garderober som skapar ordning och struktur. Här ges ett första intryck av bostadens genomtänkta planlösning och funktionella flöde.

Vidare in i bostaden öppnar de sociala ytorna upp sig på ett tilltalande sätt. Köket är centralt placerat med goda arbetsytor, bra förvaring och en naturlig plats för matbord. Den öppna dispositionen mot vardagsrummet skapar en luftig och social miljö – perfekt för både vardag och umgänge.

Vardagsrummet är rymligt och präglas av ett härligt ljusinsläpp från stora fönsterpartier. Här finns gott om plats för en större soffgrupp och ytterligare möblering efter behov. Från vardagsrummet nås även bostadens balkong – en uppskattad förlängning av hemmet under årets varmare månader.

Bostaden erbjuder tre sovrum i bra storlek, samtliga med goda möbleringsmöjligheter och fint ljusinsläpp. Rummen kan med fördel nyttjas som sovrum, arbetsrum eller gästrum beroende på behov, vilket ger stor flexibilitet för nästa ägare.

I den mer privata delen av bostaden finns ett rymligt badrum utrustat med tvättmaskin och torktumlare, samt en separat WC – en praktisk lösning som underlättar vardagen. Intill finns även en klädkammare som erbjuder extra förvaringsutrymme.

Detta är en ljus och välplanerad bostad med stor potential, där varje kvadratmeter nyttjas på ett effektivt sätt och där möjligheterna att sätta sin egen prägel är goda.

Här bor du med ett svårslaget centralt läge där stadens puls finns precis utanför dörren. Restauranger, caféer, shopping och nöjen nås enkelt till fots, liksom mataffärer och goda kommunikationer. Ett bekvämt och attraktivt boende med allt du behöver inom promenadavstånd.

Varmt välkommen att uppleva denna bostad på plats!
På G!
Först på Boneo
Kristianstad - Centrum, Kristianstad

Kanalgatan 19

Lägenhet4 rok93

Mäklare

Mäklare

AwardBadge
Årets Mäklarkedja 2024, 2025
Vinnare av Boneo Awards
banner

Tjänster

Bolån

Räkna på bolån för Kanalgatan 19
nordeaAlltid personlig ränta på ditt bolånRäkna här
Jämför bolån från olika banker!
lanekollPersonlig hjälp hela vägen hem!Räkna direkt!
Bostaden du tittar på matchar med 890 personer i BoneoMatch™

Hur många vill köpa din bostad?

Vi matchar din bostad mot över 500 000 köpsugna personer som går på visningar just nu.

Loading...
På G!
Först på Boneo
Kristianstad - Centrum, Kristianstad

Kanalgatan 19

Lägenhet4 rok93

Mäklare

Mäklare

AwardBadge
Årets Mäklarkedja 2024, 2025
Vinnare av Boneo Awards