linkedin pixel
Tillbaka till sökresultatet
Fullskärm
Fullskärm
Tillbaka till sökresultatet
På G!
Först på Boneo
Lägenhet1 rok40

Fakta om bostaden

  • Pris950 000 kr
  • BoendetypLägenhet
  • Antal rum1 rok
  • Boyta40
  • UpplåtelseformBostadsrätt
  • Kvadratmeterpris (kr/m²) 23 750 kr/m²
  • Byggnadsår2004
  • Våning 4 av 5
  • HissJa
  • Avgift till föreningen4 112 kr/mån

Beskrivning

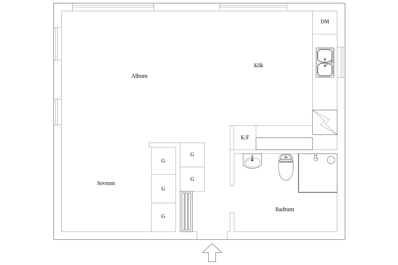
1:a med öppen plan

Välkommen till denna ljusa och välplanerade 1:a om 40 kvm, belägen på våning 4 av 5 med hiss. Här erbjuds ett modernt och funktionellt boende med genomtänkta ytor och en planlösning som gör att bostaden upplevs rymligare än sina kvadratmeter.

Bostaden har en öppen planlösning mellan kök och allrum, vilket skapar ett naturligt flöde och en luftig känsla. De stora fönsterpartierna ger ett fint ljusinsläpp och bidrar till en trivsam och inbjudande atmosfär.

Köket är stilrent och praktiskt utformat med goda arbetsytor och bra förvaringsmöjligheter. Här finns plats för matbord i anslutning till köket, vilket skapar en naturlig yta för både vardag och umgänge.

Allrummet är lättmöblerat och rymmer både sällskapsdel och sovdel. Planlösningen gör det möjligt att skapa en tydlig uppdelning av rummet, vilket ger en mer avskild känsla för sovdelen och gör bostaden flexibel över tid.

Förvaringsmöjligheterna är goda med flera garderober som bidrar till ett praktiskt och organiserat boende.

Badrummet är helkaklat i tidlösa materialval och utrustat med dusch, WC, handfat med kommod samt tvättmaskin – en bekväm lösning i vardagen.

Genomgående erbjuds ljusa ytskikt och parkettgolv som skapar en modern och enhetlig helhet.

Här bor du i ett lugnt och attraktivt område i Bunkeflostrand med närhet till både grönområden, service och hav. Goda kommunikationer gör det enkelt att ta sig till såväl Hyllie som Malmö centrum.

Ett smart och lättskött boende med genomtänkt planlösning – perfekt för dig som söker ditt första hem eller ett bekvämt boende med närhet till det mesta.

Visningar

På G!
Först på Boneo
Bunkeflostrand, Malmö

Sadelmakarebyn 4D

Lägenhet1 rok40

Mäklare

Mäklare

AwardBadge
Årets Mäklarkedja 2024, 2025
Vinnare av Boneo Awards
banner

Tjänster

Bolån

Räkna på bolån för Sadelmakarebyn 4D
nordeaAlltid personlig ränta på ditt bolånRäkna här
Jämför bolån från olika banker!
lanekollPersonlig hjälp hela vägen hem!Räkna direkt!
Bostaden du tittar på matchar med 71 personer i BoneoMatch™

Hur många vill köpa din bostad?

Vi matchar din bostad mot över 500 000 köpsugna personer som går på visningar just nu.

Loading...
På G!
Först på Boneo
Bunkeflostrand, Malmö

Sadelmakarebyn 4D

Lägenhet1 rok40

Mäklare

Mäklare

AwardBadge
Årets Mäklarkedja 2024, 2025
Vinnare av Boneo Awards