linkedin pixel
Tillbaka till sökresultatet
Fullskärm
Fullskärm
Tillbaka till sökresultatet
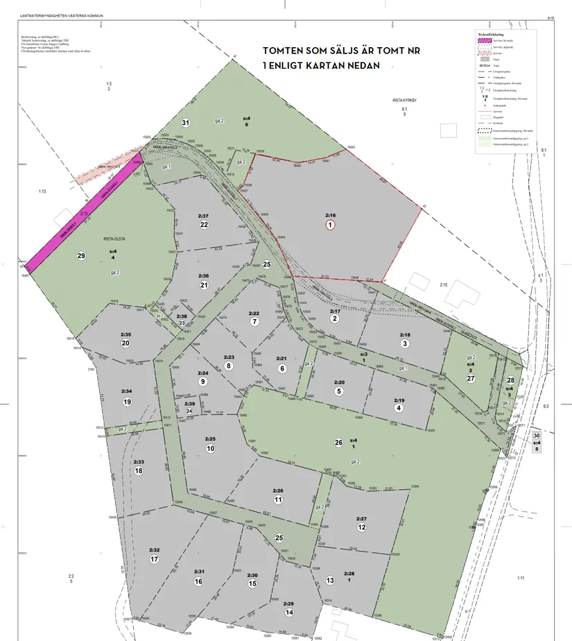
Tomt4 294 m² tomt

Fakta om bostaden

  • Pris2 995 000 kr
  • BoendetypTomt
  • UpplåtelseformÄganderätt
  • Tomtarea4 294 m²
  • Dagar på Boneo8 dagar

Beskrivning

Tomt på över 4 000 kvm

Drömmer du om att bygga ditt eget hem i naturnära miljö - utan att kompromissa med närheten till service? Nu finns chansen att förvärva en generös tomt om över 4 000 kvm i attraktiva Irsta Olsta, strax utanför Västerås.

Här bor du med ett lugnt och fritt läge, omgiven av vacker natur med skog och öppna åkrar som närmaste granne. En perfekt plats för dig som söker harmoni, avskildhet och livskvalitet - samtidigt som du har nära till Irsta med skolor, förskolor och annan vardagsservice.

Tomten erbjuder goda möjligheter att skapa ditt drömboende, med plats för både hus, trädgård och kanske extra byggnader. Kommunalt vatten och avlopp finns i området, liksom el och fiber - anslutning bekostas av köparen.

Det finns även en potentiell möjlighet att stycka av tomten i två delar, vilket kan passa både investeraren eller dig som vill skapa ett generationsboende. Observera att detta inte är garanterat och behöver prövas.

En unik chans att förverkliga dina bostadsdrömmar i ett naturnära och eftertraktat område - varmt välkommen att upptäcka möjligheterna på plats!

Visningar

Irsta, Västerås

Irsta Olsta

Tomt4 294 m² tomt

Mäklare

banner

Tjänster

Bolån

Räkna på bolån för Irsta Olsta
nordeaAlltid personlig ränta på ditt bolånRäkna här
Jämför bolån från olika banker!
lanekollPersonlig hjälp hela vägen hem!Räkna direkt!

Hur många vill köpa din bostad?

Med BoneoMatch™ ser du hur många som letar efter en liknande bostad i ditt område.

Läs mer
Loading...
Irsta, Västerås

Irsta Olsta

Tomt4 294 m² tomt

Mäklare