linkedin pixel
Tillbaka till sökresultatet
Fullskärm
Fullskärm
Tillbaka till sökresultatet
Villa6 rok158410 m² tomt

Fakta om bostaden

  • Pris5 890 000 kr
  • BoendetypVilla
  • Antal rum6 rok
  • Boyta158
  • UpplåtelseformFriköpt
  • Tomtarea410 m²
  • Kvadratmeterpris (kr/m²) 37 278 kr/m²
  • Byggnadsår2026
  • Dagar på Boneo5 dagar

Beskrivning

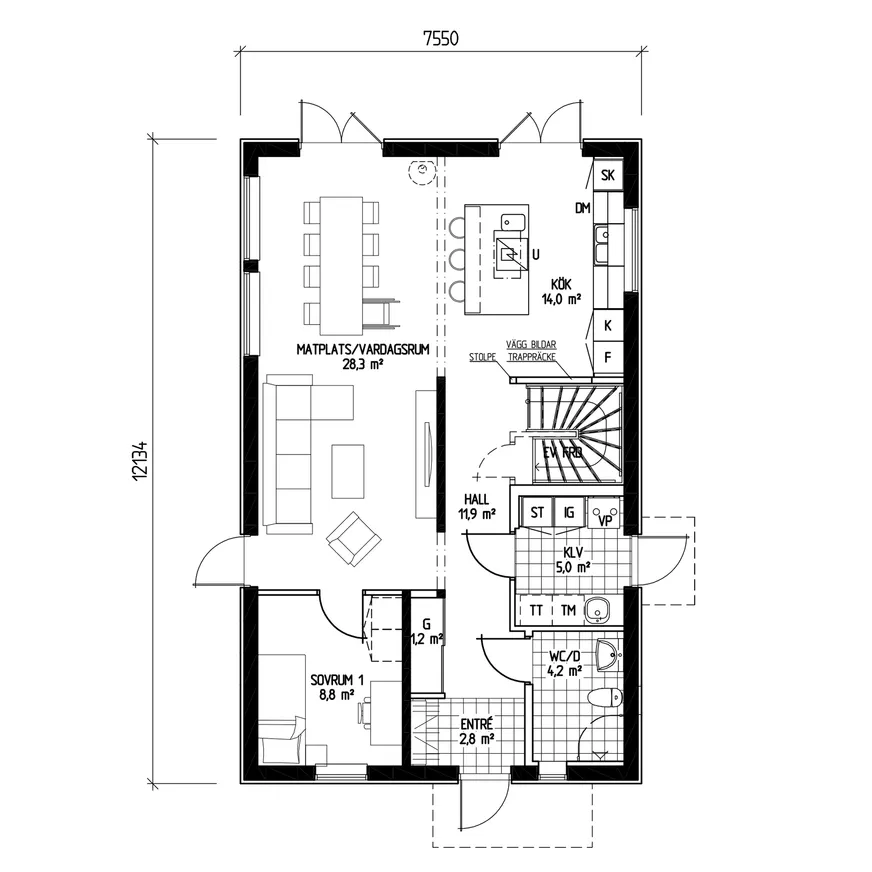
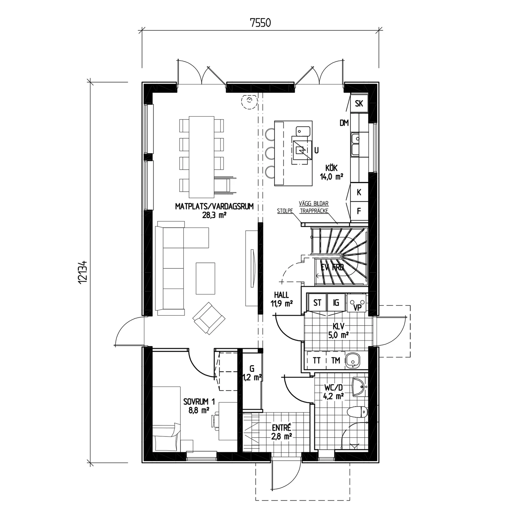
Bygg drömhuset tillsammans med Svensk husproduktion och Tony Söderström Bygg & Kakel i det populära och barnvänliga området Lindbacken. Här presenteras nu en snart nybyggt hus från 2026, ett stilrent och modernt hem där funktion, komfort och ett lugnt läge möts.

När du kliver in i Optimal 158 möts du av en vacker siktlinje som sträcker sig genom hela huset. Det är ett trivsamt tvåplanshus med gavelställd placering och en väl avvägd, öppen planlösning mellan kök, matplats och vardagsrum på entréplanet. Tack vare fönster i tre väderstreck får bostaden ett generöst ljusinsläpp, samtidigt som du enkelt når trädgården från två olika utgångar. Huset är utformat för den större familjen och erbjuder möjlighet till upp till fem sovrum samt två allrum.

Tomten på cirka 410 kvadratmeter ger utrymme för både trädgård och sociala ytor. Husets placering längs en lugn kvartersgata skapar en trygg och trivsam miljö, perfekt för barnfamiljen.

Lindbacken är ett uppskattat område med närhet till förskolor, skolor, lekplatser och vardagsservice. Gränby köpstad nås på kort tid och erbjuder ett brett utbud av butiker, restauranger och service. Goda kommunikationer med buss och bil gör det enkelt att ta sig till Uppsala centrum.

Här erbjuds ett modernt, välplanerat och lättskött hem i ett attraktivt område, ett boende som kombinerar stil, komfort och funktionalitet i ett exklusivt villaområde.

Observera att det endast är exempelbilder som kan innehålla tillval som kan påverka priset. Bjurfors förmedlar endast tomten. Entreprenadkontrakt skrivs med Tony Söderström Bygg & Kakel AB.

Visningar

Lindbacken, Uppsala

Björnmossvägen 96

Villa6 rok158410 m² tomt

Mäklare

Mäklare

AwardBadge
Årets Mäklarkedja 2024, 2025
Vinnare av Boneo Awards
banner

Tjänster

Bolån

Räkna på bolån för Björnmossvägen 96
nordeaAlltid personlig ränta på ditt bolånRäkna här
Jämför bolån från olika banker!
lanekollPersonlig hjälp hela vägen hem!Räkna direkt!
Bostaden du tittar på matchar med 65 personer i BoneoMatch™

Hur många vill köpa din bostad?

Vi matchar din bostad mot över 500 000 köpsugna personer som går på visningar just nu.

Loading...
Lindbacken, Uppsala

Björnmossvägen 96

Villa6 rok158410 m² tomt

Mäklare

Mäklare

AwardBadge
Årets Mäklarkedja 2024, 2025
Vinnare av Boneo Awards