linkedin pixel
Tillbaka till sökresultatet
Fullskärm
Fullskärm
Tillbaka till sökresultatet
På G!
Först på Boneo
Villa6 rok153 + 571 615 m² tomt

Fakta om bostaden

  • Pris7 495 000 kr
  • BoendetypVilla
  • Antal rum6 rok
  • Boyta153
  • UpplåtelseformFriköpt
  • Biarea57
  • Tomtarea1 615 m²
  • Kvadratmeterpris (kr/m²) 48 987 kr/m²
  • Byggnadsår1979

Beskrivning

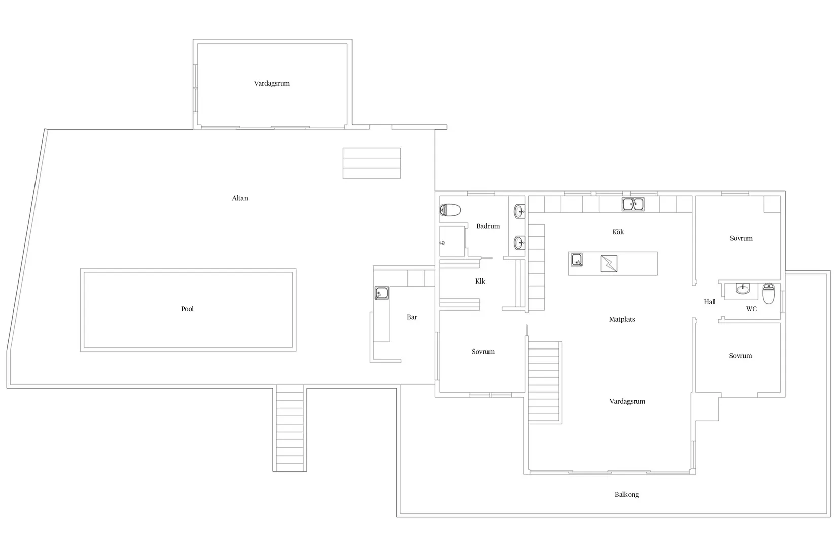
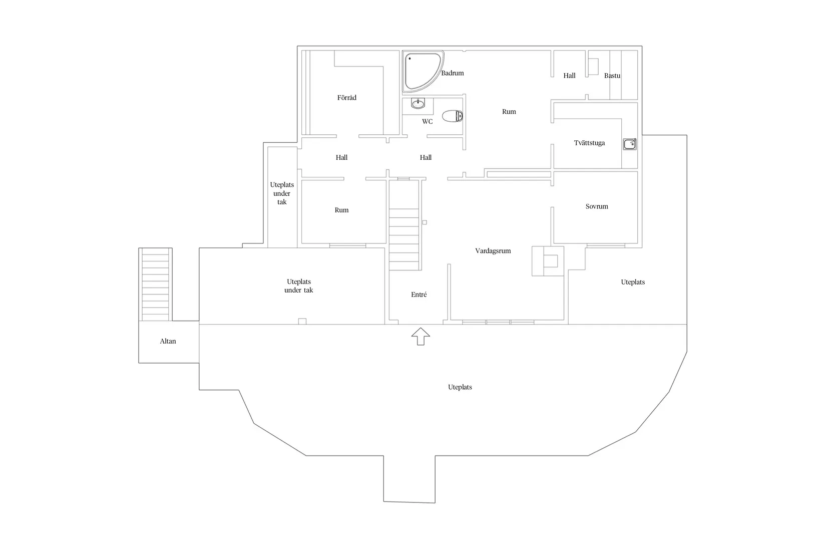
Välkommen till en stor och exklusiv familjevilla utöver det vanliga – högt belägen med en hänförande utsikt över glittrande Viaredssjön. Här kombineras ett stilrent och välrenoverat hus med generösa ytor och en genomtänkt helhet som skapar ett hem att verkligen trivas i.

Bostaden imponerar med sina öppna sällskapsytor, stora fönsterpartier och ett fantastiskt ljusinsläpp som suddar ut gränsen mellan inne och ute. Från flera rum och terrasser njuter du av den rogivande sjöutsikten – en vy som förändras vackert över årets alla säsonger.

Utomhus väntar ett påkostat och väl tilltaget pooldäck som blir hemmets naturliga samlingsplats under sommarhalvåret. Här finns gott om plats för både avkoppling och sociala tillställningar, med en inbjudande pool, generösa trädäck, utekök och flera olika uteplatser i soliga lägen. Det charmiga attefallshuset ger extra möjligheter – perfekt som gästhus, hemmakontor eller för tonåringen som önskar en egen sfär.

Villan ligger privat och insynsskyddat med ett högt och fritt läge, samtidigt som du har närhet till både service, skolor och kommunikationer. Detta är ett boende som erbjuder det bästa av två världar – lugnet vid natur och vatten, kombinerat med modern komfort och exklusiv livskvalitet.

Som boende bor man med gångavstånd till den vackra naturen och nära Björkgårdens förskola samt Melltorps förskola som ligger intill Sjömarkenskolan som har årskurs f-6. Området består till stor del av nyare bebyggelse och till största del av villor. Sjömarken präglas också starkt av närheten till Viaredssjön och de fina bad- och fiskemöjligheterna. Samhället ligger väster om Borås och granne med Sandared där man har tillgång till allmän service och högstadieskola. Nära inpå ligger även Citygross. Bor du i Sjömarken kan du arbetspendla med buss, bil och cykel. På fina cykelvägar tar du dig snabbt till vad närområdet har att erbjuda eller in till Borås. Kommunikationerna i området är ypperliga. Flera hållplatser trafikeras av linje 5 och 151.

Ett unikt tillfälle för dig som söker något utöver det vanliga – varmt välkommen att anmäla ert intresse!

Visningar

På G!
Först på Boneo
Sjömarken, Borås

Stigareliden 8

Villa6 rok153 + 571 615 m² tomt

Mäklare

Mäklare

AwardBadge
Årets Mäklarkedja 2024, 2025
Vinnare av Boneo Awards
banner

Tjänster

Bolån

Räkna på bolån för Stigareliden 8
nordeaAlltid personlig ränta på ditt bolånRäkna här
Jämför bolån från olika banker!
lanekollPersonlig hjälp hela vägen hem!Räkna direkt!
Bostaden du tittar på matchar med 74 personer i BoneoMatch™

Hur många vill köpa din bostad?

Vi matchar din bostad mot över 500 000 köpsugna personer som går på visningar just nu.

Loading...
På G!
Först på Boneo
Sjömarken, Borås

Stigareliden 8

Villa6 rok153 + 571 615 m² tomt

Mäklare

Mäklare

AwardBadge
Årets Mäklarkedja 2024, 2025
Vinnare av Boneo Awards