linkedin pixel
Tillbaka till sökresultatet
Fullskärm
Fullskärm
Tillbaka till sökresultatet
Villa5 rok126 + 71 350 m² tomt

Fakta om bostaden

  • Pris4 975 000 kr
  • BoendetypVilla
  • Antal rum5 rok
  • Boyta126
  • UpplåtelseformFriköpt
  • Biarea7
  • Tomtarea1 350 m²
  • Kvadratmeterpris (kr/m²) 39 484 kr/m²
  • Byggnadsår1995
  • Dagar på Boneo3 dagar

Beskrivning

Välkommen till en fastighet som verkligen erbjuder något utöver det vanliga. Här bor du med ett lugnt och ostört läge med havet som ständig kuliss – en plats där naturen, stillheten och ljuset samspelar på ett sätt som måste upplevas på plats. Utsikten över det öppna landskapet och havet är inget annat än magisk och skiftar vackert med årstiderna. Åk gärna dit och gå in på tomten och titta runt! Det är ingen som bor där nu.

Den generösa tomten ramas in av en artrik och omsorgsfullt anlagd trädgård, skapad med stor kunskap och kärlek. Här finns vackra stensättningar, uppvuxen grönska och många rum för både avkoppling och umgänge. Trädgården lever och utvecklas – och kommer att bli ännu mer praktfull när den grönskar fullt ut.

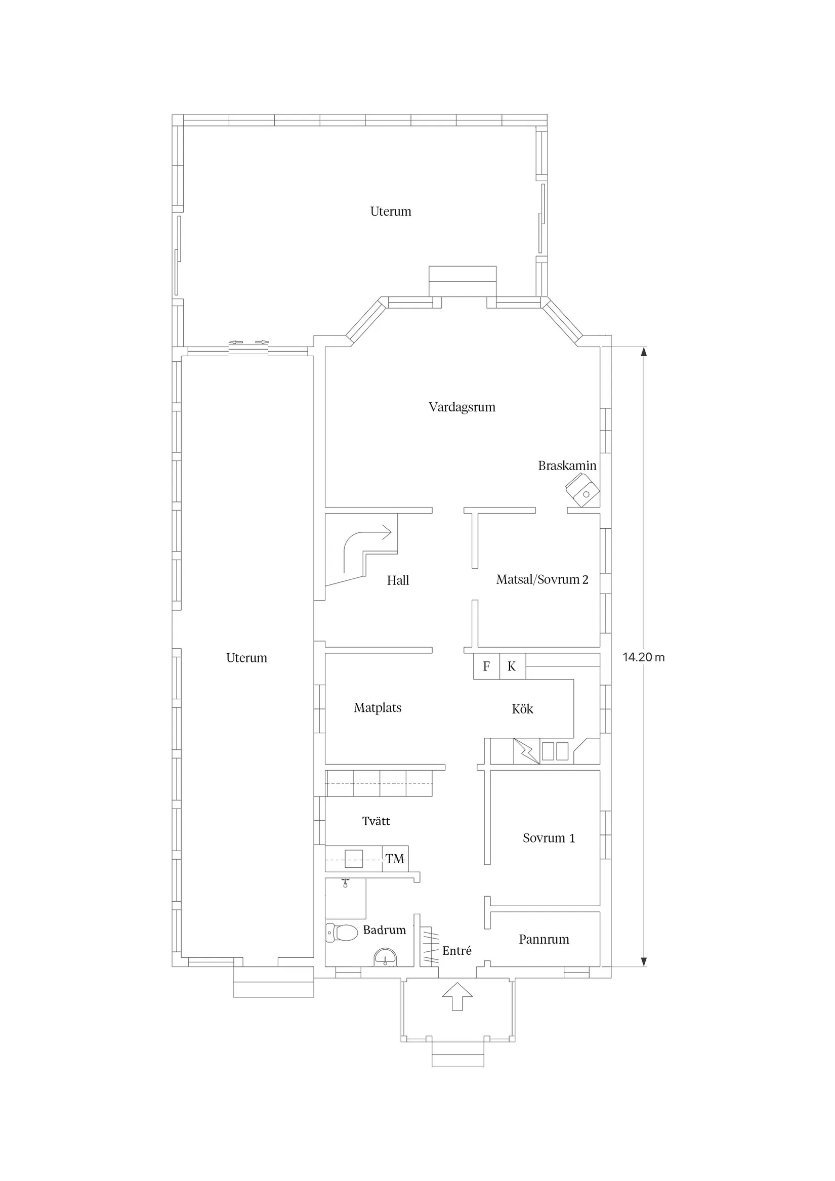
Bostadshuset, uppfört 1995 i 1½ plan, erbjuder en trivsam och välplanerad boendemiljö. Här finns två härliga uterum som förlänger säsongen och skapar naturliga samlingsplatser oavsett väder. Invändigt möts du av ljusa sällskapsytor, braskamin för extra trivsel samt flera sovrum som ger plats för både familj och gäster.

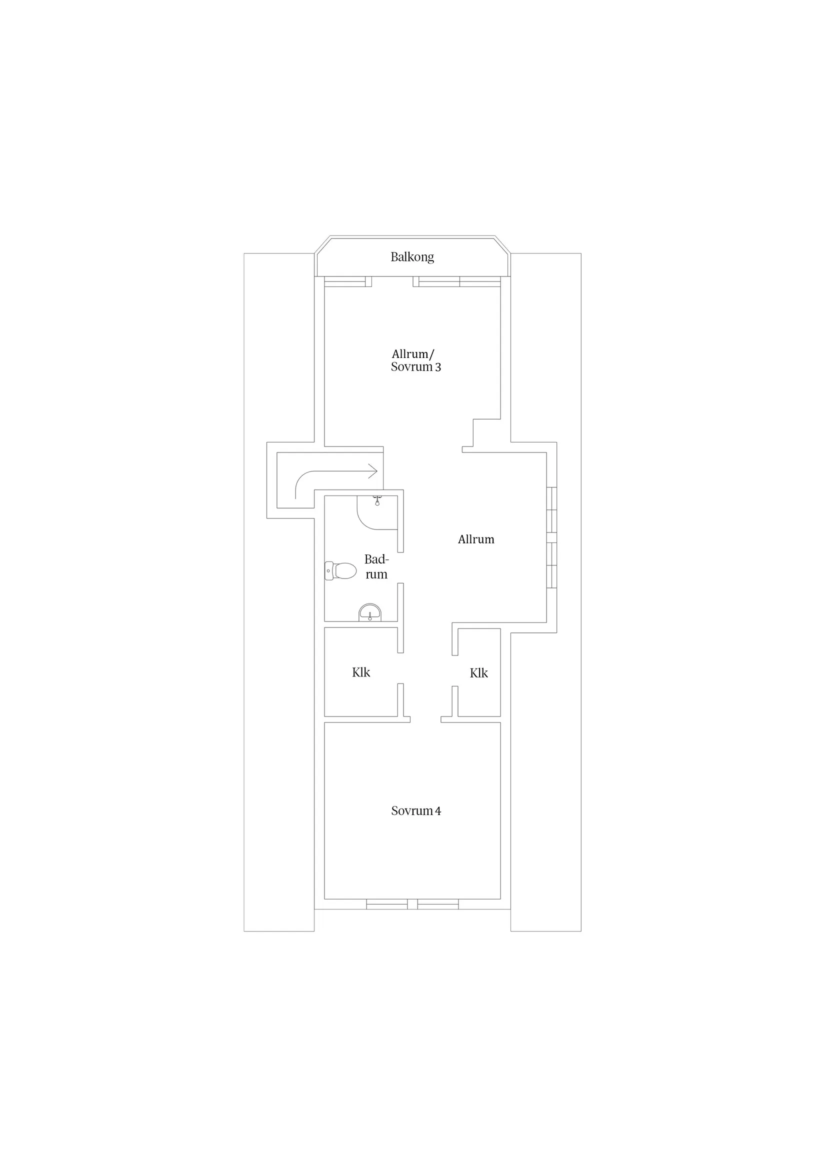
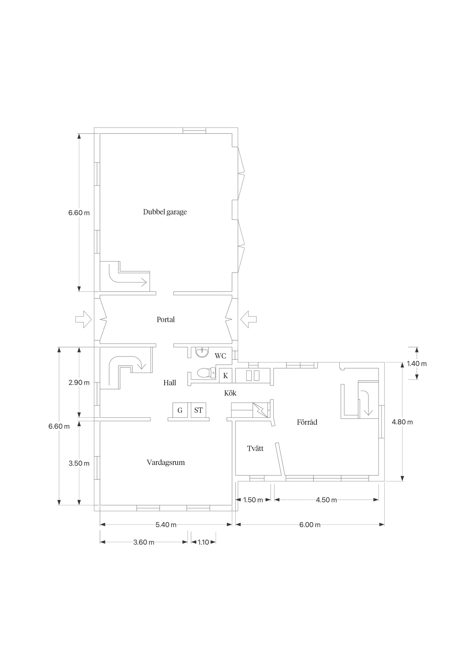
På tomten finns även ett väl tilltaget annex – en fantastisk tillgång för den som önskar flexibilitet. Här ryms gästlägenhet, dubbelgarage, förråd samt vindsutrymme. Möjlighet till uthyrning eller generationsboende gör detta till en fastighet med många användningsområden.

Läget är svårslaget – minimalt med trafik då vägen endast leder vidare till en fastighet. Här bor du med naturen runt knuten och med närhet till havets salta vindar och öppna vidder. På översiktskartan framgår det tydligt hur fint fastigheten ligger placerad.

Dessutom har fastigheten nyligen uppgraderats med en helt ny luft/vattenvärmepump installerad i april 2026 – ett stort plus för både komfort och driftsekonomi.

Både boningshuset och annexet är besiktigade av Anticimex och säljaren kommer att teckna en försäkring mot dolda fel. Protokollet finns tillgängligt på visningen. Du hittar det även här under fliken "Dokument".

Detta är ett hem för dig som söker något genuint – en plats att landa på, njuta av och låta tiden få ta lite mer plats.

Visningar

Morup, Falkenberg

Lisered 212

Villa5 rok126 + 71 350 m² tomt

Mäklare

Mäklare

AwardBadge
Årets Mäklarkedja 2024, 2025
Vinnare av Boneo Awards
banner

Tjänster

Bolån

Räkna på bolån för Lisered 212
nordeaAlltid personlig ränta på ditt bolånRäkna här
Jämför bolån från olika banker!
lanekollPersonlig hjälp hela vägen hem!Räkna direkt!
Bostaden du tittar på matchar med 245 personer i BoneoMatch™

Hur många vill köpa din bostad?

Vi matchar din bostad mot över 500 000 köpsugna personer som går på visningar just nu.

Loading...
Morup, Falkenberg

Lisered 212

Villa5 rok126 + 71 350 m² tomt

Mäklare

Mäklare

AwardBadge
Årets Mäklarkedja 2024, 2025
Vinnare av Boneo Awards