linkedin pixel
Tillbaka till sökresultatet
Fullskärm
Fullskärm
Tillbaka till sökresultatet
Budgivning pågår
Visa bud
Avstyckad gård7 rok18436 691 m² tomt

Fakta om bostaden

  • BoendetypAvstyckad gård
  • Antal rum7 rok
  • Boyta184
  • UpplåtelseformFriköpt
  • Tomtarea36 691 m²
  • Byggnadsår1850

Beskrivning

Fritt belägen gård

Otroligt vackra Munkatorps Gård belägen mitt i det vackra böljande skånska landskapet. Den lilla infartsvägen leder oss fram till denna juvel strax norr om Ystad och strax söder om Tomelilla. Inbjudande, fräsch och modern bostad i underbar harmoni med gårdens ekonomibyggnader. Välkommen till något unikt - Välkommen till Munkatorps Gård!

Gårdsbilden är bästa tänkbara. Gårdsplanen är välkomnande och generös. Det är vackra fält och ett böljande landskap som öppnar sin famn när vi tar våra första steg på fastigheten. Marken ligger i anslutning till gårdens byggnaden vilket gör att arronderingen lämpar sig väl till att ha hästar eller liknande. Maskinhallen är uppförd 2001 och omfattar ca 550 kvm. Allt i väldigt modernt och fint skick. Garaget/verkstaden med sin uppdaterade smörjgrop. Det fd stallet som omfattar knappt 300 kvm. Gårdens ekonomibyggnader håller samman gården på ett väldigt tilltalande sätt. Lägg sedan till en bostad där trivsamheten, det ombonade hemmet, det genuina och det generösa fått ta plats. Det är smakfullt vackert in i minsta detalj.

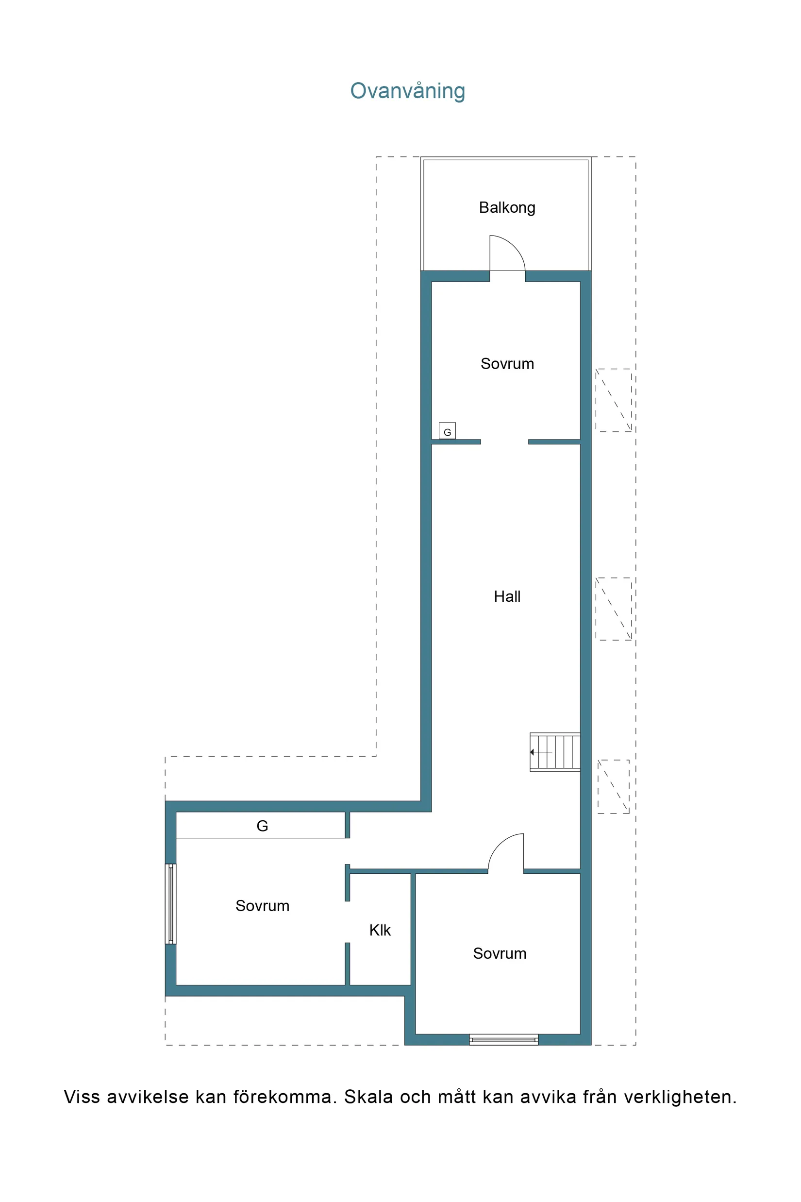
Bostadshusets charm, modernitet, planlösning och den atmosfär som finns i bostadens rum är unikt och inbjudande. Takbjälkarna, golven, köket, badrum, täljstenskamin, fönstren, verandan, värmesystemet - ja, helheten är sagolik och fantastisk.

Välkommen till Munkatorps Gård!
Budgivning pågår
Visa bud
Munka Tågarp, Tomelilla

Munka Tågarp Munkatorp 1

Avstyckad gård7 rok18436 691 m² tomt

Mäklare

Tjänster

Bolån

Räkna på bolån för Munka Tågarp Munkatorp 1
nordeaAlltid personlig ränta på ditt bolånRäkna här
Jämför bolån från olika banker!
lanekollPersonlig hjälp hela vägen hem!Räkna direkt!
Bostaden du tittar på matchar med 108 personer i BoneoMatch™

Hur många vill köpa din bostad?

Vi matchar din bostad mot över 500 000 köpsugna personer som går på visningar just nu.

Loading...
Budgivning pågår
Visa bud
Munka Tågarp, Tomelilla

Munka Tågarp Munkatorp 1

Avstyckad gård7 rok18436 691 m² tomt

Mäklare