linkedin pixel
Tillbaka till sökresultatet
Fullskärm
Fullskärm
Tillbaka till sökresultatet
På G!
Först på Boneo
Villa8 rok160 + 80861 m² tomt

Fakta om bostaden

  • Pris7 975 000 kr
  • BoendetypVilla
  • Antal rum8 rok
  • Boyta160
  • UpplåtelseformFriköpt
  • Biarea80
  • Tomtarea861 m²
  • Kvadratmeterpris (kr/m²) 49 844 kr/m²
  • Byggnadsår1938

Beskrivning

Från huset är det nära till mycket såsom skola, förskola, mataffär, kvarterskrog, fiskbil, Pizzeria och fina badplatser. Här finns dessutom Nya Varvets kulturhistoriska miljö på kort promenadavstånd. Till stan är det fina cykelvägar och busshållplatsen ligger bara någon minuts promenad från huset.
Huset har en fantastiskt potential och ligger på en trevlig tomt. Dock finns där ett stort invändigt renoveringsbehov vad gäller kök, badrum, fönster, alla ytskikt mm.

TIDPLAN: Annonsen kompletteras preliminärt med invändiga bilder senare i maj och visningar planeras till början av juni.

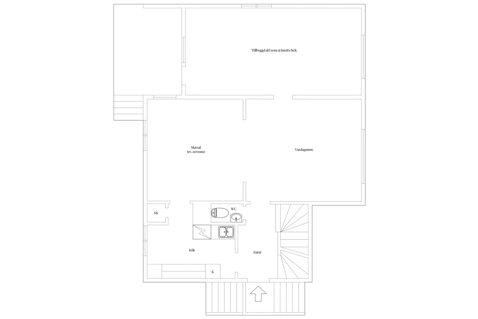
PLANLÖSNING ENTRÉPLAN: Entréplan inrymmer ett trevligt vardagsrum med parkettgolv och öppen planlösning mot ett större matrum. Här finns även ett mindre arbetskök samt en gästtoalett. Innanför vardagsrummet finns en tillbyggd del som tidigare inte varit inredd. Här finns fantastiska möjligheter att göra ett betydligt större vardagsrum eller fler sovrum. Då huset är i behov av renovering kan man med fördel ändra planlösningen genom att flytta kök, göra badrum mm i samband med renoveringen.

PLANLÖSNING ÖVRE PLAN: Stort och ljust allrum med underbar utsikt över hamninloppet och Älvsborgs fästning. Här finns dessutom 3 rejäla sovrum samt ett mindre allrum/kontor. Badrummet är lite äldre och har dusch, handfat och wc.

KÄLLARE: I den enkla källaren, som har bra takhöjd, finns en rymlig tvättstuga samt mycket goda förrådsmöjligheter, verkstad mm. Från källaren når man även det stora dubbelgaraget med plats för 2 bilar och mer därtill.
På G!
Först på Boneo
Tångudden, Göteborg

Galeasgatan 27

Villa8 rok160 + 80861 m² tomt

Mäklare

Mäklare

AwardBadge
Årets Mäklarkedja 2024, 2025
Vinnare av Boneo Awards
banner

Tjänster

Bolån

Räkna på bolån för Galeasgatan 27
nordeaAlltid personlig ränta på ditt bolånRäkna här
Jämför bolån från olika banker!
lanekollPersonlig hjälp hela vägen hem!Räkna direkt!
Bostaden du tittar på matchar med 761 personer i BoneoMatch™

Hur många vill köpa din bostad?

Vi matchar din bostad mot över 500 000 köpsugna personer som går på visningar just nu.

Loading...
På G!
Först på Boneo
Tångudden, Göteborg

Galeasgatan 27

Villa8 rok160 + 80861 m² tomt

Mäklare

Mäklare

AwardBadge
Årets Mäklarkedja 2024, 2025
Vinnare av Boneo Awards