linkedin pixel
Fullskärm
Fullskärm
På G!
Först på Boneo
Villa7 rok1801 371 m² tomt

Fakta om bostaden

  • BoendetypVilla
  • Antal rum7 rok
  • Boyta180
  • UpplåtelseformFriköpt
  • Tomtarea1 371 m²
  • Byggnadsår1962

Beskrivning

Belägen på en lugn återvändsgata finner ni denna trivsamma familjevilla med en generös, insynsskyddad tomt omgiven av lummig natur. Här råder ett påtagligt lugn och en känsla av avskildhet – samtidigt som havet finns på bekvämt avstånd. Redan på vägen hem möts du av glimtar av det glittrande havet och doften av salt och tång, vilket skapar en alldeles speciell atmosfär.

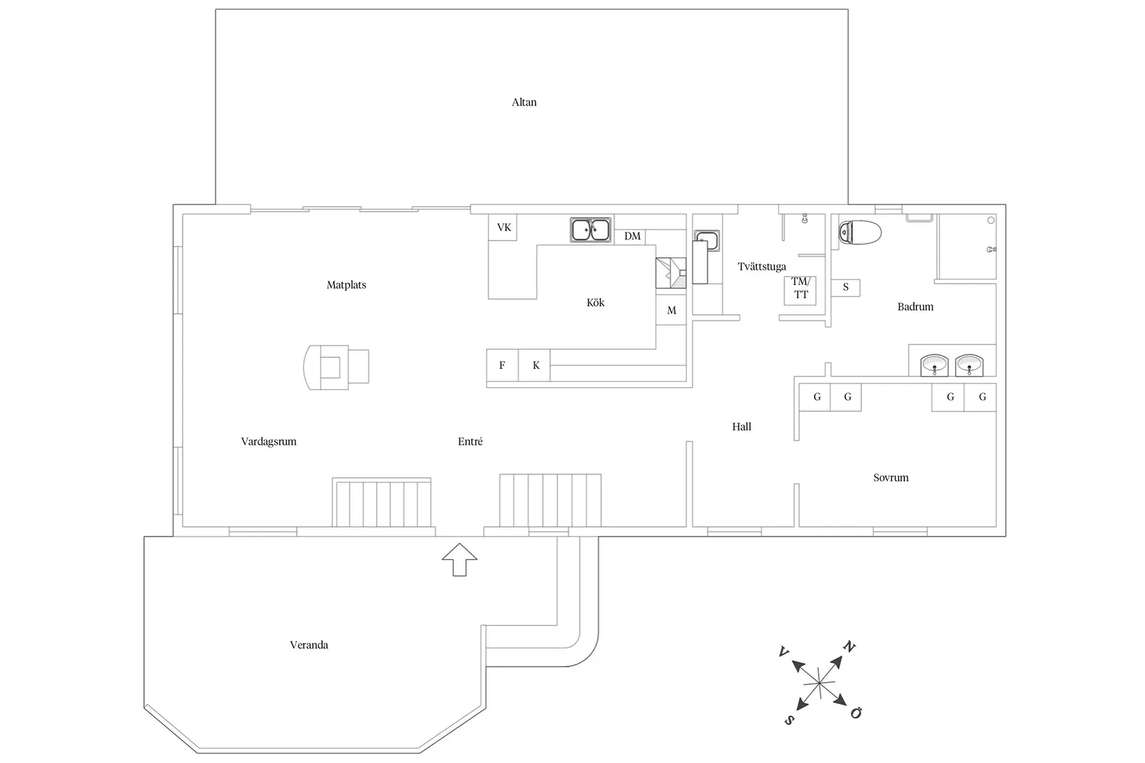
Via den stora terrassen välkomnas ni in i entréplanet, där vardagsrum och kök smälter samman i en öppen och social planlösning. Här skapas naturliga samlingspunkter för både vardagens middagar och helgens festligare tillfällen. Köket är funktionellt och inbjudande med gott om förvaring och generösa arbetsytor. Intill det stora skjutdörrspartiet finns plats för ett rejält matbord, där inne- och utemiljö enkelt möts när dörrarna öppnas mot den stora altanen och den insynsskyddade trädgården.
Vardagsrumsdelen rymmer både soffa och fåtöljer – en perfekt plats att samlas kring den värmande braskaminen under årets kallare månader.

Entréplanet erbjuder även ett smakfullt nyrenoverat badrum (2024) med kakel och klinker i stilrena grå toner, en praktisk tvättstuga med egen entré samt ett sovrum med platsbyggd förvaring och plats för både säng och skrivbord. Samtliga rum nås via en inre, möblerbar hall som förstärker bostadens generösa känsla.

Övervåningen öppnar upp i ett ljust och luftigt allrum med öppet upp till nock och fönster som släpper in härli8gt dagsljus. Här finns gott om plats för flera sittgrupper – perfekt för filmkvällar, spelstunder eller avkoppling framför ännu en braskamin. På detta plan finns tre rymliga sovrum. Det största har plats för dubbelsäng, erbjuder en separat kläddel samt en fransk balkong där sommarens ljumma vindar kan spela fritt. Via en mindre hall nås en toalett med karaktärsfullt marockanskt klinker, en klädkammare samt ytterligare två sovrum, båda med plats för en generös säng och förvaring.

Husets baksida vetter mot berg och skog och erbjuder en privat oas utan insyn. Den stora altanen rymmer både matgrupp, loungehörna och solstolar – en självklar plats för långa sommardagar och ljumma kvällar från tidig vår till sen sommar. Trädgården erbjuder dessutom gott om utrymme för egna planteringar och odlingsdrömmar.

Ett hem som kombinerar funktion, rymd och naturnära livskvalitet – perfekt för familjen som söker lugn, närhet till natur och hav samt generösa umgängesytor.
På G!
Först på Boneo
Torslanda - Tumlehed, Göteborg

Trollberget 5

Villa7 rok1801 371 m² tomt

Mäklare

Mäklare

AwardBadge
Årets Mäklarkedja 2024, 2025
Vinnare av Boneo Awards
banner

Tjänster

Bolån

Räkna på bolån för Trollberget 5
nordeaAlltid personlig ränta på ditt bolånRäkna här
Jämför bolån från olika banker!
lanekollPersonlig hjälp hela vägen hem!Räkna direkt!
Bostaden du tittar på matchar med 1 148 personer i BoneoMatch™

Hur många vill köpa din bostad?

Vi matchar din bostad mot över 500 000 köpsugna personer som går på visningar just nu.

Loading...
På G!
Först på Boneo
Torslanda - Tumlehed, Göteborg

Trollberget 5

Villa7 rok1801 371 m² tomt

Mäklare

Mäklare

AwardBadge
Årets Mäklarkedja 2024, 2025
Vinnare av Boneo Awards