linkedin pixel
Tillbaka till sökresultatet
Fullskärm
Fullskärm
Tillbaka till sökresultatet
På G!
Först på Boneo
Lägenhet99,24

Fakta om bostaden

  • BoendetypLägenhet
  • Boyta99,24
  • UpplåtelseformBostadsrätt
  • Byggnadsår1898
  • Våning 2 av 5
  • HissNej
  • Avgift till föreningen4 259 kr/mån

Beskrivning

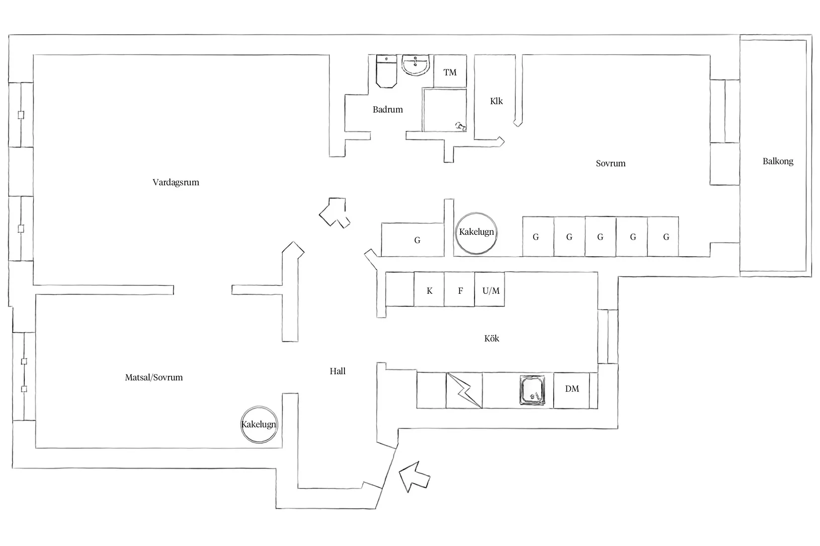
På en av Vasastadens mest omtyckta adresser, i ett vackert stenhus från 1898, väntar en sekelskiftesdröm. Här bor du med Vasaparkens grönska runt hörnet och Avenyns puls bara några steg bort – ett läge som förenar det bästa av två världar.

Redan i trapphuset anas historiens närvaro, och innanför dörren möts du av en bostad där rymden är påtaglig. Den generösa takhöjden om drygt tre meter, djupa fönsternischer, stuckaturer, takrosetter och fiskbensparkett sätter tonen – en tidlös elegans som löper genom hela hemmet. Två bevarade kakelugnar förstärker känslan ytterligare och tillför både karaktär och en tydlig sekelskiftesprägel.

Ljusinsläppet är generöst och skapar en varm, inbjudande atmosfär i varje rum. Köket är stilrent utformat med goda arbetsytor, smart förvaring och plats för matbord. Vardagsrummet imponerar med sina stora fönster och vackra originaldetaljer, där stuckaturer och takrosetter ramar in rummet på ett elegant sätt. Här finns gott om plats för både soffgrupp och matsalsdel för den som önskar. Bostadens två sovrum erbjuder rofyllda miljöer med fint ljusinsläpp. Från det ena nås den rymliga balkongen som vetter mot föreningens stillsamma innergård. Det helkaklade badrummet går i stilrena nyanser och är utrustat med tvättmaskin.

Välkommen till ett hem där historiens vackra detaljer möter modern elegans.

Visningar

På G!
Först på Boneo
Lorensberg, Göteborg

Chalmersgatan 29A

Lägenhet99,24

Mäklare

Mäklare

AwardBadge
Årets Mäklarkontor 2024Årets Mäklarkedja 2024, 2025
Vinnare av Boneo Awards
banner

Tjänster

Bolån

Räkna på bolån för Chalmersgatan 29A
nordeaAlltid personlig ränta på ditt bolånRäkna här
Jämför bolån från olika banker!
lanekollPersonlig hjälp hela vägen hem!Räkna direkt!
Bostaden du tittar på matchar med 3 333 personer i BoneoMatch™

Hur många vill köpa din bostad?

Vi matchar din bostad mot över 500 000 köpsugna personer som går på visningar just nu.

Loading...
På G!
Först på Boneo
Lorensberg, Göteborg

Chalmersgatan 29A

Lägenhet99,24

Mäklare

Mäklare

AwardBadge
Årets Mäklarkontor 2024Årets Mäklarkedja 2024, 2025
Vinnare av Boneo Awards