linkedin pixel
Fullskärm
Fullskärm
Parhus5 rok113482 m² tomt

Fakta om bostaden

  • Pris3 995 000 kr
  • BoendetypParhus
  • Antal rum5 rok
  • Boyta113
  • UpplåtelseformFriköpt
  • Tomtarea482 m²
  • Kvadratmeterpris (kr/m²) 35 354 kr/m²
  • Byggnadsår1984
  • Dagar på Boneo1 dag

Beskrivning

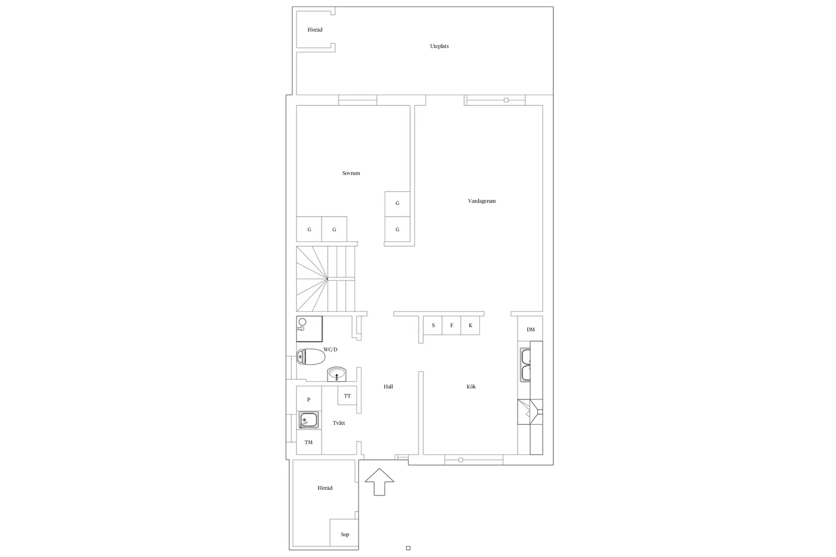
Välkommen till Ålegårdsgatan 174 – ett trivsamt parhus i populära Balltorp med en härlig trädgård och genomtänkt planlösning. Garage i länga.

Här erbjuds ett välplanerat hem om 113 kvm fördelat på 1,5 plan, där ytorna är smart disponerade för både vardagsliv och sociala tillställningar. Köket är praktiskt utformat med bra arbetsytor och har en naturlig plats för matbord intill fönstret – en trevlig plats för både frukost och vardagsmiddagar. I anslutning ligger det rymliga vardagsrummet med ett stort fönsterparti som ger fint ljusinsläpp. Här finns gott om plats för både soffgrupp och matsalsdel för den som önskar. Från vardagsrummet nås uteplatsen och vidare ut till den lummiga trädgården med plana gräsytor. Entréplanet rymmer även ett sovrum med flera garderober, ett badrum med dusch samt en praktisk tvättstuga som förenklar vardagen.

En trappa upp väntar en mer privat sovrumsdel. Här finns två bra sovrum, samt ett något mindre rum med fönster som passar utmärkt som kontor. På övre plan finns även ett badrum med takfönster som bidrar med fint dagsljus.

Trädgården på baksidan är generös och grönskande – perfekt för lek, odling eller avkoppling i solen. Den skyddade uteplatsen blir en naturlig samlingsplats under årets varmare månader.

Läget i Balltorp är lugnt och familjevänligt med närhet till natur, skolor, service och goda kommunikationer som smidigt tar dig in till både Mölndals Innerstad och Göteborg.

Ett hem med välplanerade ytor och stor trivselfaktor – varmt välkommen på visning!

Visningar

Mölndal - Balltorp, Mölndal

Ålegårdsgatan 174

Parhus5 rok113482 m² tomt

Mäklare

Mäklare

AwardBadge
Årets Bostadsrättsmäklare 2024, 2025Årets Mäklarkedja 2024, 2025
Vinnare av Boneo Awards
banner

Tjänster

Bolån

Räkna på bolån för Ålegårdsgatan 174
nordeaAlltid personlig ränta på ditt bolånRäkna här
Jämför bolån från olika banker!
lanekollPersonlig hjälp hela vägen hem!Räkna direkt!
Bostaden du tittar på matchar med 674 personer i BoneoMatch™

Hur många vill köpa din bostad?

Vi matchar din bostad mot över 500 000 köpsugna personer som går på visningar just nu.

Loading...
Mölndal - Balltorp, Mölndal

Ålegårdsgatan 174

Parhus5 rok113482 m² tomt

Mäklare

Mäklare

AwardBadge
Årets Bostadsrättsmäklare 2024, 2025Årets Mäklarkedja 2024, 2025
Vinnare av Boneo Awards