linkedin pixel
På G!
Först på Boneo
Södermalm Högalid, Stockholm

Högalidsgatan 32A

Lägenhet1 rok37

Fakta

  • BoendetypLägenhet
  • Rum1 rok
  • Boyta37
  • UpplåtelseformBostadsrätt
  • Byggnadsår1912
  • Våning 1
  • HissNej
  • Månadsavgift1 727 kr

Beskrivning

Sekelskifteslägenhet i skuldfri förening med balkong mot lummig oas! Lägenheten har en trevlig planlösning med ett rymligt och socialt kök med stilren köksö, ett rymligt allrum med plats för soffgrupp och säng, ett helkaklat badrum med tvättmaskin och eleganta glasväggar som släpper in ljuset och skapar en härlig rymd mellan rummen. God förvaring med stor klädkammare samt ett källarförråd som tillhör lägenheten. Lägenheten har renoverats och uppgraderats under föregående år, så här är det bara att flytta rakt in. Föreningen är känd för sin fina innergård och här kan man enkelt låna föreningens grill och ha grillkvällar med sina vänner. Här bor du i ett lugnt och trivsamt gårdsläge mitt i hjärtat av Hornstull med vackra Högalidsparken precis utanför porten.

Brf Muttern 12 bildades redan 1920, då som en bostadsförening. 2022 registrerades den som en bostadsrättsförening. Den långa livslängden bidrar till att föreningen idag är skuldfri! Man äger marken och har alla stora renoveringar är gjorda.

Precis utanför porten breder Högalidsparken ut sig, med den ståtliga Högalidskyrkan som en vacker siluett – en oas mitt i stan! Hornstull är en stadsdel som passar dig som gillar att bo i ett lugnt område med närhet till vatten och härlig natur med fina promenadstråk, men ändå nära till trevliga barer, restauranger och caféer. Intill Hornstull finner du vackra Långholmen med badplats, caféer och fina löprundor eller promenader längst vattnet. Hornstull Centrum ger dig shopping och Ica Kvantum på källarplanet. Trevliga restauranger och caféer som finns i området är t ex. Ramblas, Forma, Café Dello Sport, Tjoget, Hornhuset och Indian Garden. Perfekta kommunikationer finns via Tunnelbanans röda linje eller flertalet bussar som enkelt tar dig vidare genom staden. Från Hornstull går även flygbussarna till Arlanda.

Mäklare

Elsy Abou Akl
Ansvarig mäklare
AwardBadge
Årets Mäklarkedja 2024
Vinnare av Boneo Awards
Bjurfors Södermalm
Tjärhovsgatan 5, Stockholm
Agency
Agency
AwardBadge
Årets Mäklarkedja 2024
Vinnare av Boneo Awards
banner

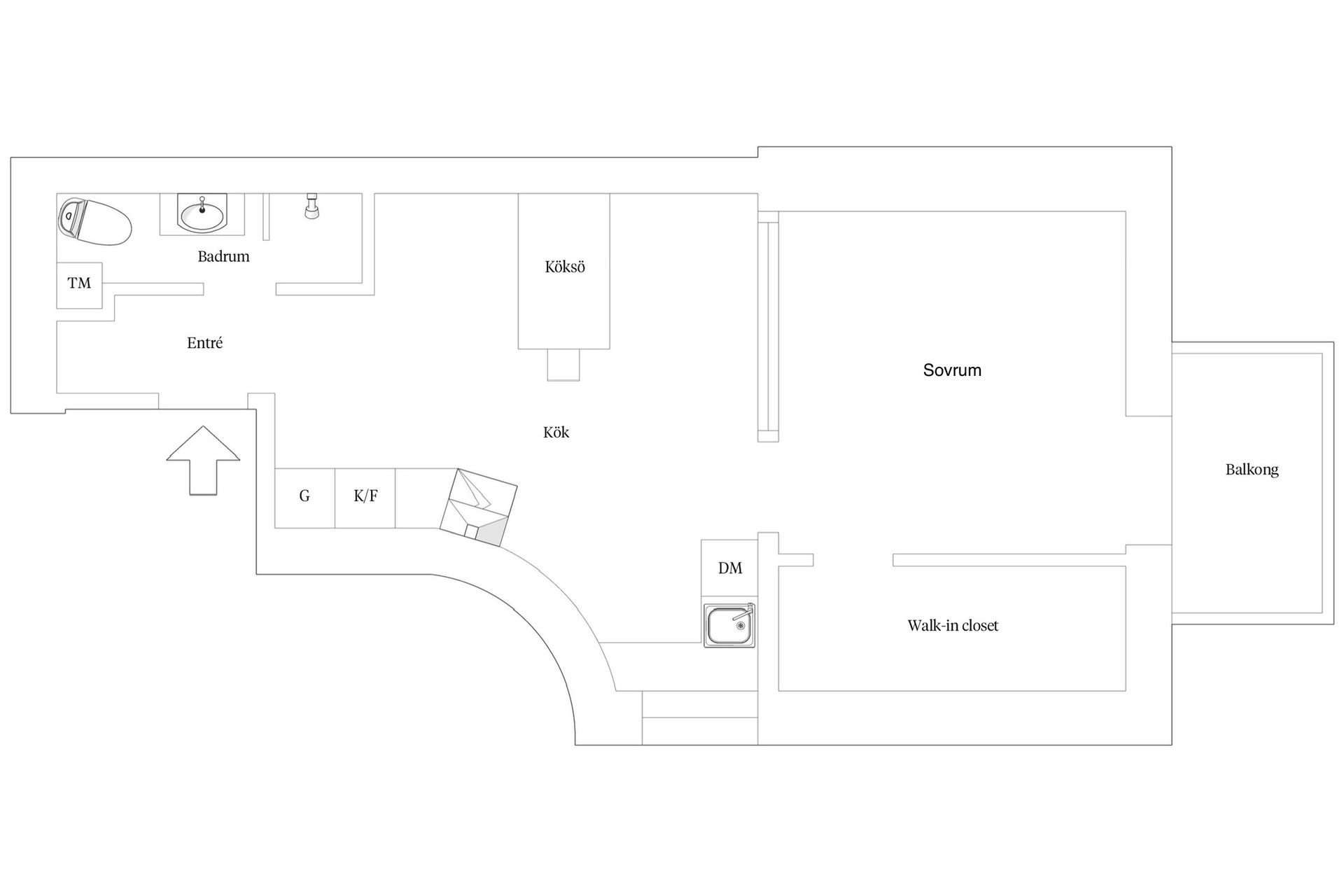
Planritning

Tjänster

Bolån

Räkna på bolån för Högalidsgatan 32A
nordeaAlltid personlig ränta på ditt bolånRäkna här
Jämför bolån från olika banker!
lanekollPersonlig hjälp hela vägen hem!Räkna direkt!
Bostaden du tittar på matchar med 2 053 personer i BoneoMatch™

Hur många vill köpa din bostad?

Vi matchar din bostad mot över 500 000 köpsugna personer som går på visningar just nu.

Loading...