linkedin pixel
På G!
Först på Boneo
Eriksberg, Göteborg

Sörhallstorget 25

Lägenhet5 rok144

Fakta

  • BoendetypLägenhet
  • Rum5 rok
  • Boyta144
  • UpplåtelseformBostadsrätt
  • Byggnadsår1992
  • Våning 3 av 6
  • HissJa
  • Månadsavgift7 244 kr

Beskrivning

Välkommen till detta unika boende på hela 144 kvm, med en generös sydvästvänd balkong om nästan 20 kvm och utsikt över Göta älv. Här möts hög standard, påkostade material och ett läge utöver det vanliga.

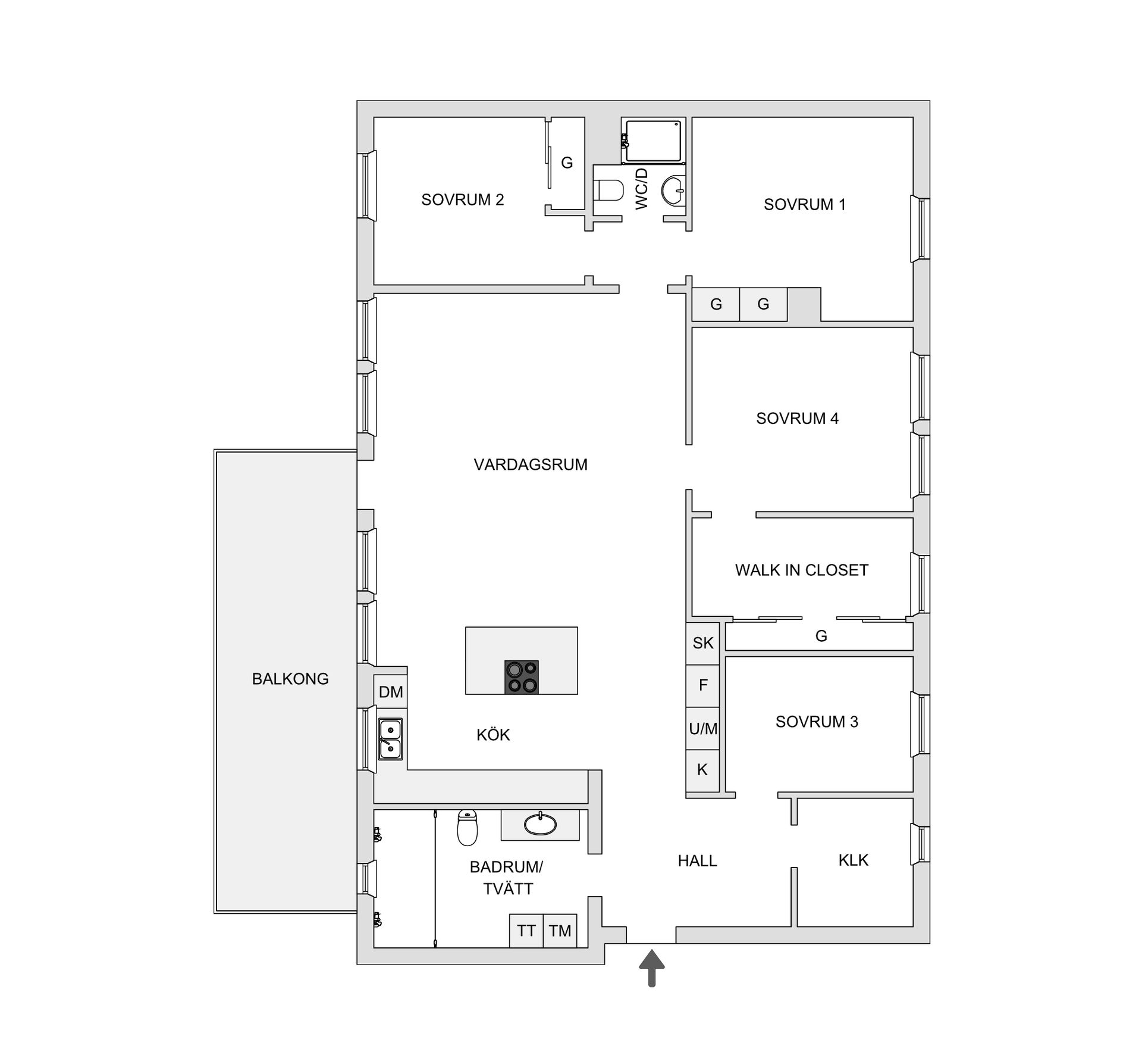
Denna bostad om hela 144 kvm är skapad för dig som värdesätter både yta och finess. Fyra välplanerade sovrum ger plats för familj, gäster eller hemmakontor. Det generösa köket och vardagsrummet i öppen planlösning bjuder in till både stora middagar och avkopplande kvällar. Två helkaklade badrum – dusch i båda varav ena har dubbeldusch och tvättavdelning – ger komfort och bekvämlighet i vardagen. Allt är genomtänkt, påkostat och redo att njutas av från första dagen.

Här bor du i hjärtat av Eriksberg, med Sörhallsberget bakom dig och älven framför. Den soliga balkongen blir en självklar samlingsplats för både frukost och sena sommarkvällar.

Brf Lalandia är en av områdets mest välmående föreningar, med låg belåning och inkluderat det mesta i avgiften inkl. snabbt bredband. Dessutom finns hyresrätter som framtida resurs, vilket gör boendet till en trygg investering.

Detta är ett boende som sällan kommer ut på marknaden – en pärla på attraktiva Eriksberg.

Varmt välkommen att kontakta oss för mer information och visning.

Mäklare

Jonas Lindquist
Ansvarig mäklare
HusmanHagberg Göteborg Hisingen
Kvarnpirsgatan 8, Göteborg
Agency
Agency
banner

Planritning

Tjänster

Bolån

Räkna på bolån för Sörhallstorget 25
nordeaAlltid personlig ränta på ditt bolånRäkna här
Jämför bolån från olika banker!
lanekollPersonlig hjälp hela vägen hem!Räkna direkt!
Bostaden du tittar på matchar med 208 personer i BoneoMatch™

Hur många vill köpa din bostad?

Vi matchar din bostad mot över 500 000 köpsugna personer som går på visningar just nu.

Loading...