linkedin pixel
På G!
Först på Boneo
Sandared, Borås

Loftvägen 2

Villa4 rok108 + 33848 m² tomt

Fakta

  • Pris3 845 000 kr
  • BoendetypVilla
  • Rum4 rok
  • Boyta108
  • UpplåtelseformFriköpt
  • Biarea33
  • Tomtarea848 m²
  • Pris/m² 35 602 kr/m²
  • Byggnadsår1989

Beskrivning

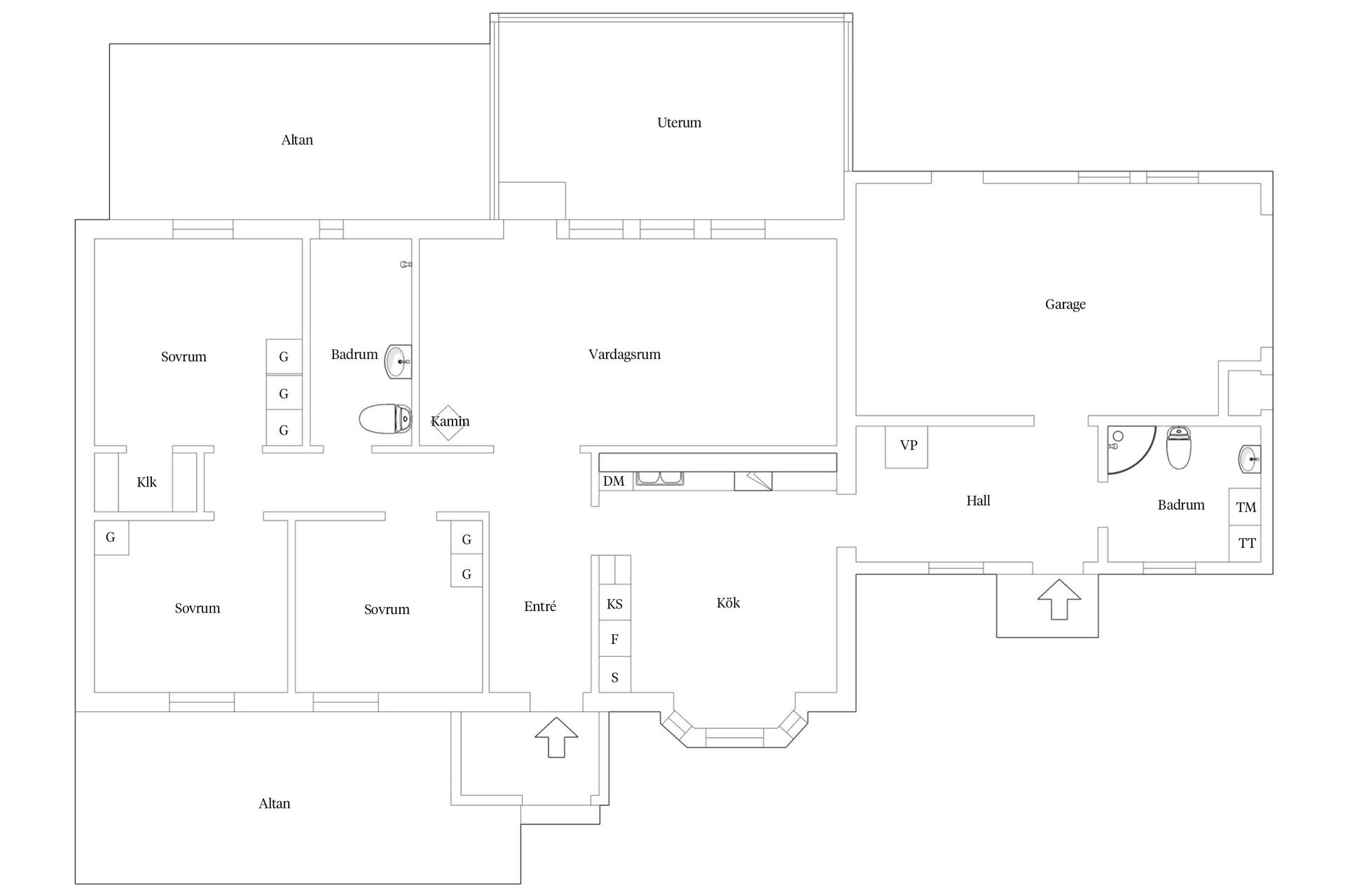
Välkommen till Loftvägen 2, en välskött och trivsam enplansvilla med ett lugnt och omtyckt läge i Sandared. Här bor du bekvämt och praktiskt på ett plan med generösa sällskapsytor, tre bra sovrum, två fina badrum och ett stort varmgarage om 33 kvm. Bostaden erbjuder 108 kvm boyta och har under åren genomgått flera viktiga renoveringar som gör att du som köpare kan flytta rakt in och njuta från första dagen.

Husets hjärta är det rymliga vardagsrummet som bjuder på ett härligt ljusinsläpp och en stämningsfull kamin som värmer skönt under årets kyligare månader. Härifrån når du det stora uterummet, uppfört 2014, som förlänger sommaren och skapar en perfekt plats för middagar och umgänge från tidig vår till sen höst. Köket är välplanerat med gott om arbetsytor och förvaring och ligger i anslutning till både vardagsrum och entré, vilket ger en naturlig och smidig vardagslogistik.

Bostaden rymmer tre trivsamma sovrum i bra storlek, vilket gör planlösningen idealisk för både barnfamiljer, par och dig som kanske vill kombinera boendet med hemmakontor. Båda badrummen renoverades 2013 med smakfulla materialval, nytt fönster och installation av vattenburen golvvärme, något som ger ett extra komfortabelt och kvalitativt boende.

Via husets hall når du även det isolerade garaget, ett mycket uppskattat utrymme som rymmer både bil, förvaring och hobbyytor. I anslutning till groventrén finns även tvättdel och pannrum där golvet renoverades 2010 i samband med installationen av en ny frånluftsvärmepump som bidrar till en energieffektiv drift.

Under 2014 lades yttertaket om och uterummet byggdes, och år 2024 fick både fasaden och fönstren en ordentlig översyn och målades om. Samma år målades även samtliga ytskikt invändigt, vilket ger huset en fräsch och modern känsla genomgående.

Den lättskötta och plana trädgården bjuder på fina gräsytor som lämpar sig perfekt för lek, odling eller avkoppling. På baksidan finner du en rymlig altan i direkt anslutning till uterummet, en självklar samlingsplats för sommarkvällar och grillstunder. På husets framsida finns ytterligare en altan i sydöstläge där man kan avnjuta morgonkaffet eller sommarfrukosten. Tomten ramas in av en skyddande häck som skapar både insynsskydd och en ombonad känsla. Här finns även en praktisk uppfart med plats för två bilar, vilket gör vardagen smidig för både familj och gäster.

Det här är en villa där det mesta redan är gjort, perfekt för dig som söker ett bekvämt och bekymmersfritt boende i ett populärt och naturnära område.

Strax väster om Borås ligger Sandared, samhället precis utanför staden där man har tillgång till både allmän service och skola. Som boende bor man med gångavstånd till den vackra naturen och Sandaredsskolan som har årskurs f-9. Området består till största del av villor. Samhället präglas också starkt av närheten till Viaredssjön och de fina bad- och fiskemöjligheterna. Nära inpå ligger välsorterad ICA Supermarket och en kortare biltur bort når ni Citygross. Bor du i Sandared kan du arbetspendla med buss, tåg, bil och cykel. På fina cykelvägar tar du dig snabbt till vad näromårdet har att erbjuda eller in till Borås. Kommunikationerna i området är ypperliga. Flera hållplatser trafikeras av linje 151.

Välkommen att anmäla ditt intresse!

Mäklare

Alexander Svensson
Ansvarig mäklare
Alexander Svensson
AwardBadge
Årets Mäklarkedja 2024
Vinnare av Boneo Awards
Bjurfors Borås
Västerlånggatan 24, Borås
Agency
Agency
AwardBadge
Årets Mäklarkedja 2024
Vinnare av Boneo Awards
banner

Planritning

Tjänster

Bolån

Räkna på bolån för Loftvägen 2
nordeaAlltid personlig ränta på ditt bolånRäkna här
Jämför bolån från olika banker!
lanekollPersonlig hjälp hela vägen hem!Räkna direkt!
Bostaden du tittar på matchar med 483 personer i BoneoMatch™

Hur många vill köpa din bostad?

Vi matchar din bostad mot över 500 000 köpsugna personer som går på visningar just nu.

Loading...