linkedin pixel
Tillbaka till sökresultatet
Fullskärm
Fullskärm
Tillbaka till sökresultatet
externalLinkIconAlla bilder
Villa158 + 291 059 m² tomt

Fakta om bostaden

  • Pris8 000 000 kr
  • BoendetypVilla
  • Boyta158
  • UpplåtelseformFriköpt
  • Biarea29
  • Tomtarea1 059 m²
  • Kvadratmeterpris (kr/m²) 50 633 kr/m²
  • Byggnadsår2022
  • Dagar på Boneodecember 2025

Beskrivning

Upplev fjällkänslan året runt i denna moderna villa från 2022, perfekt placerad med utsikt över fjällen och skidbacken runt hörnet. Här möts stilren design och funktion – 158 kvm i två plan med öppna sociala ytor, eldstad, generös altan i söderläge och balkong med magisk vy.

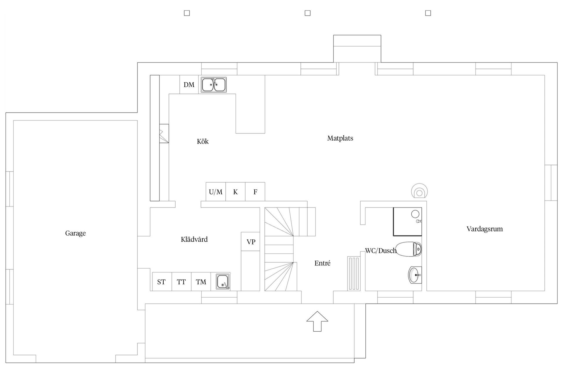
Entréplan:
Välkomnande entré under tak vidare in till generös hall, vackert helkaklat badrum med fönster, wc, handfat och dusch.
Vackert kök, fullt utrustat kök med anslutande matplats och vardagsrum i öppen planlösning där vinkeln på vardagsrummet enkelt kan bli det fjärde sovrummet om så önskas. Mellan matplats och vardagsrummet finns en eldstad samt utgången till en generös altan i söderläge men utsikt över fjällen.
I anslutning till köket ligger tvättstugan med dörr direkt till garaget som är ljust och fräscht med fjärrstyrd port samt separat dörr som groventré vilket gör livet på fjället enkelt och praktiskt.

Övervåning:
Via en rejäl trapp från entrén kliver man upp mitt i övervåningen till ett ljust vardagsrum med utgång till balkong och samma fina utsikt som från altanen. Här finns också tre fint disponerade sovrum i var sitt hörn av våningen. Master bedroom har en rejäl klädkammare och utgång till balkongen. Badrum med fönster, wc, handfat, dusch samt ett badkar att värma sig i efter en dag på fjället.

Villan är fint placerad på på Vajavägen med praktisk access snett bakifrån och med framsidan i en vacker södersluttning, tomten är delvist anlagd med gräsmatta, fruktträd och bärbuskar och några trevliga granar som avgränsning till grannarna.
Huset är levererat av BRA hus som ännu en gång har levererat ett rejält hus som ger ett gediget och mycket välbyggt intryck, snyggt inrett och trevliga materialval tillsammans med ett fint arbetsutförande gör detta hus till något utöver det vanliga.
Bergvärme och vattenburen golvvärme borgar för låga driftskostnader.

Kvalitet och komfort
Byggt av BRA Hus med gedigna materialval och hög finish – ett hem som andas kvalitet. Bergvärme med vattenburen golvvärme och radiatorer ger både komfort och låga driftskostnader.

Alpina skidbacken ligger på andra sidan av vägen och man tar sig enkelt till och från huset till skidåkningen.
Edsåsdalens längdspår blir en positiv överraskning för er som inte varit där tidigare, kända för naturupplevelsen och att vara mycket fint preparerade.
Skoteråkning är enkelt med access till VÄSEK´s leder.
Vita Renen uppe på Renfjället bjuder på en fin upplevelse med god mat, hit tar man sig antingen med skoter eller turskidor, här finns också en trevlig lite skidbacke med släplift.
Edsåsdalen, Åre

Edsåsdalen Vajavägen 5

Villa158 + 291 059 m² tomt

Mäklare

Mäklare

AwardBadge
Årets Mäklarkedja 2024, 2025
Vinnare av Boneo Awards
banner

Tjänster

Bolån

Räkna på bolån för Edsåsdalen Vajavägen 5
nordeaAlltid personlig ränta på ditt bolånRäkna här
Jämför bolån från olika banker!
lanekollPersonlig hjälp hela vägen hem!Räkna direkt!

Hur många vill köpa din bostad?

Med BoneoMatch™ ser du hur många som letar efter en liknande bostad i ditt område.

Läs mer
Loading...
Edsåsdalen, Åre

Edsåsdalen Vajavägen 5

Villa158 + 291 059 m² tomt

Mäklare

Mäklare

AwardBadge
Årets Mäklarkedja 2024, 2025
Vinnare av Boneo Awards