linkedin pixel
Fullskärm
Fullskärm
externalLinkIconAlla bilder
Villa300857 m² tomt

Fakta om bostaden

  • Pris5 600 000 kr
  • BoendetypVilla
  • Boyta300
  • UpplåtelseformFriköpt
  • Tomtarea857 m²
  • Kvadratmeterpris (kr/m²) 18 667 kr/m²
  • Dagar på Boneo1 dag

Beskrivning

Drömmer du om att äga ett eget hyreshus på attraktiv adress? Nu har du chansen att förvärva en välskött och lättförvaltad fastighet med stabila intäkter och god utvecklingspotential – belägen i hjärtat av naturnära och eftertraktade Södermalm.

Fastigheten på Grevensbäcksgatan 1 erbjuder en trygg investering med årliga hyresintäkter om 494 064 kr och låga driftkostnader på endast cirka 86 000 kr per år, vilket ger goda förutsättningar för en stark avkastning redan från dag ett.

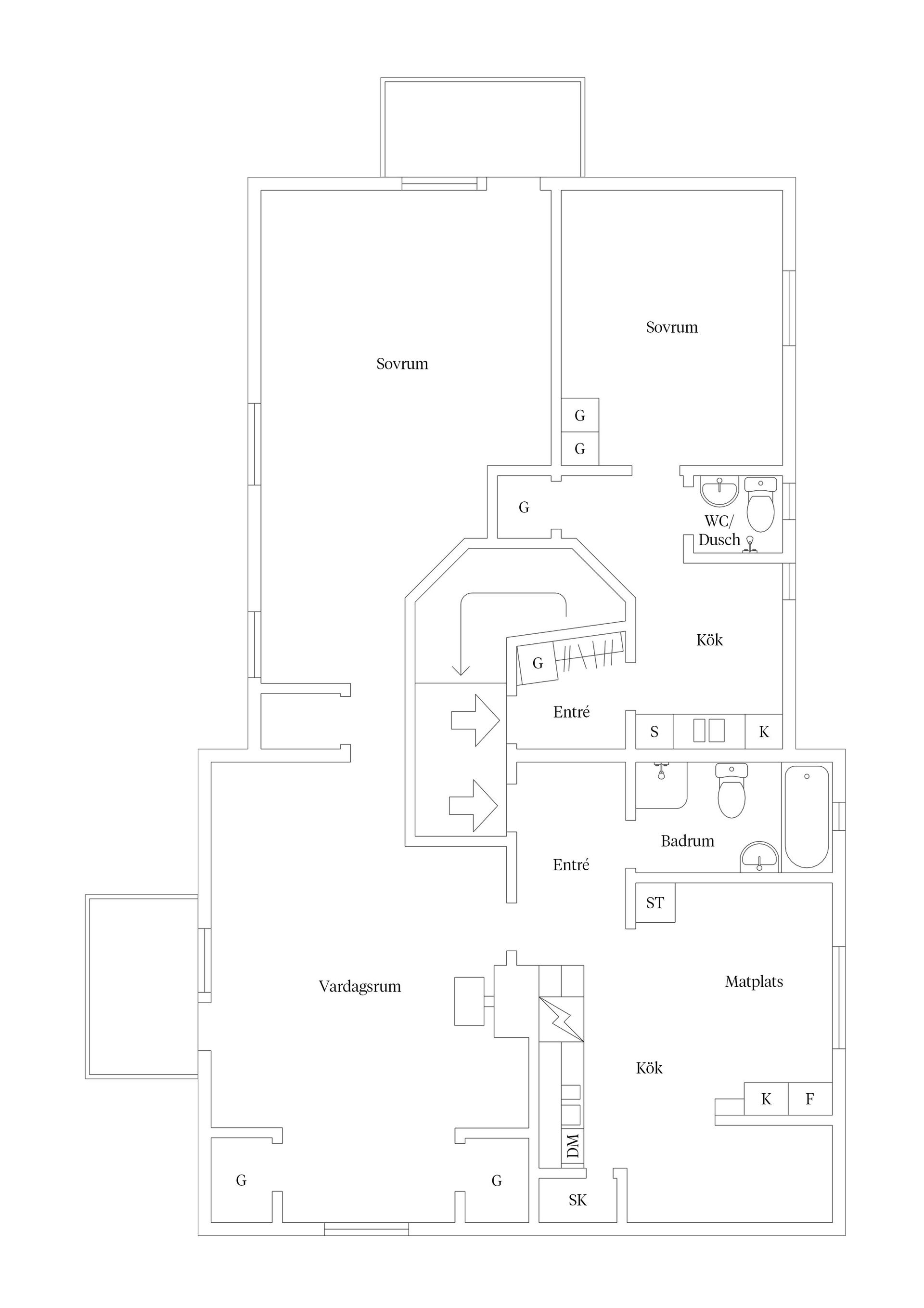
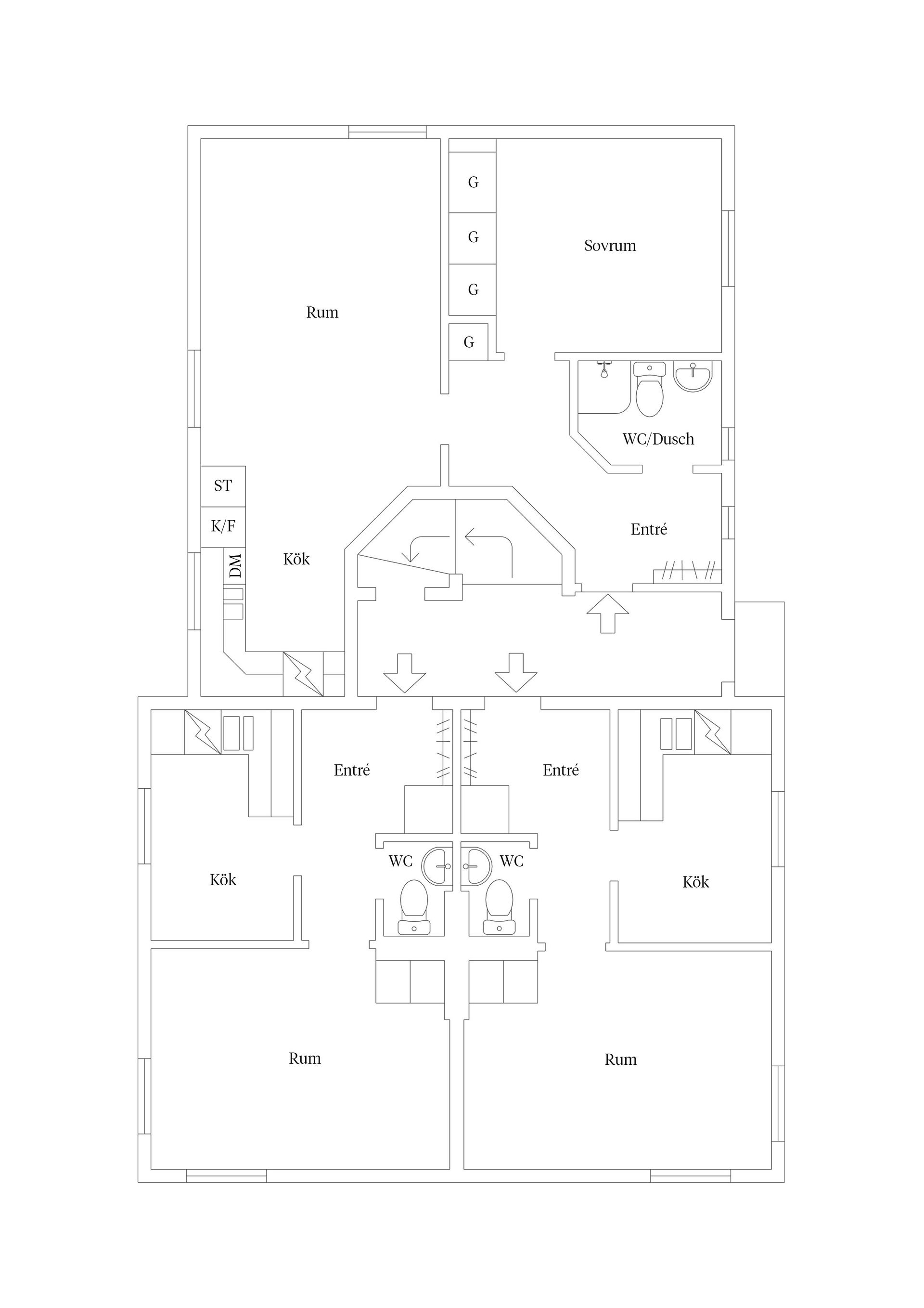
Byggnaden rymmer 5 lägenheter samt ett gårdshus. Fastigheten är väl omhändertagen med energieffektiv uppvärmning via bergvärme, ommålad fasad och renoverade trapphus. Fiber är installerat och varje lägenhet har egen elmätare.

Parkeringsplatser ingår i hyran, och trappstädning sköts av hyresgästerna – faktorer som bidrar till en smidig och kostnadseffektiv förvaltning.

Södermalm är en lugn och trivsam stadsdel med gångavstånd till centrum, goda kommunikationer samt närhet till natur, vandringsleder och friluftsliv – ett attraktivt läge för både hyresgäster och investerare.

Missade du chansen senast? Ta den nu. Fastigheter med denna kombination av attraktivt läge, stabil ekonomi och utvecklingsmöjligheter är sällsynta.

Välkommen att kontakta oss för mer information eller för att boka visning
Södermalm, Sundsvall

Grevensbäcksgatan 1

Villa300857 m² tomt

Mäklare

Mäklare

AwardBadge
Årets Mäklarkedja 2024, 2025
Vinnare av Boneo Awards
banner

Tjänster

Bolån

Räkna på bolån för Grevensbäcksgatan 1
nordeaAlltid personlig ränta på ditt bolånRäkna här
Jämför bolån från olika banker!
lanekollPersonlig hjälp hela vägen hem!Räkna direkt!

Hur många vill köpa din bostad?

Med BoneoMatch™ ser du hur många som letar efter en liknande bostad i ditt område.

Läs mer
Loading...
Södermalm, Sundsvall

Grevensbäcksgatan 1

Villa300857 m² tomt

Mäklare

Mäklare

AwardBadge
Årets Mäklarkedja 2024, 2025
Vinnare av Boneo Awards